
3 bedroom semi-detached house for sale
New Road, Brighstone, Newport

- PROPERTY TYPE
Semi-Detached
- BEDROOMS
3
- BATHROOMS
1
- SIZE
Ask agent
- TENUREDescribes how you own a property. There are different types of tenure - freehold, leasehold, and commonhold.Read more about tenure in our glossary page.
Ask agent
Key features
- Semi-Detached Three Bedroom Family Home
- Views Over Fields
- Large Rear Garden
- Recently Decorated Throughout
- Sought-After Location
- Close to Brighstone Village
- Off-Road Parking
- No Onward Chain
Description
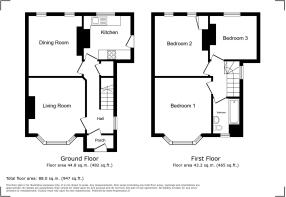
The property is approached via a spacious entrance porch leading into a welcoming hallway. To the front of the house is a light and airy living room, featuring a bay window with delightful views across the adjoining field and a characterful feature fireplace. A separate dining room, also with a feature fireplace, provides an ideal space for family meals and entertaining. The fitted kitchen is positioned to the rear of the property and enjoys a pleasant outlook over the garden.
To the first floor are two generous double bedrooms, one benefitting from a further bay window to the front with open field views, while the second overlooks the rear garden. The third bedroom is a good-sized single, ideal as a bedroom, home office or nursery. Notably, all three bedrooms retain feature fireplaces, adding charm and character. A first floor bathroom completes the accommodation.
The property benefits from oil central heating, off-road parking on the driveway for multiple vehicles, and a large enclosed rear garden, offering excellent space for families, gardening enthusiasts or those who enjoy outdoor entertaining.
Brighstone is a highly regarded and picturesque village on the south-west side of the Isle of Wight, well known for its strong community feel and traditional village charm. The village offers a range of local amenities including a primary school, village shop, doctors’ surgery, public houses, café, church and regular bus services. Surrounded by beautiful countryside and within easy reach of coastal walks and beaches, Brighstone provides an excellent balance of rural living with everyday convenience.
A wonderful opportunity to acquire a characterful village home in a desirable location - early viewing is highly recommended.
Entrance Porch
Hallway
Living Room
3.53m x 3.5m
Dining Room
3.35m x 3.78m
Kitchen
2.95m x 2.74m
First Floor Landing
Bedroom 1
3.5m x 3.5m
Bedroom 2
3.3m x 3.78m
Bedroom 3
2.84m x 2.77m
Bathroom
Outside
Driveway providing off-road parking for multiple vehicles, well sized front garden laid to lawn. Gated side access to enclosed large rear garden laid to lawn.
Heating
Central heating to a radiator system.
Council Tax
Band 'D'
Tenure
Freehold
Please note
Successful buyers will be required to complete online identity checks provided by Lifetime Legal. The cost of these checks is £80 plus VAT per purchase which is paid in advance, directly to Lifetime Legal. This charge verifies your identity in line with our obligations as agreed with HMRC and includes mover protection insurance to protect against the cost of an abortive purchase.
Brochures
Particulars- COUNCIL TAXA payment made to your local authority in order to pay for local services like schools, libraries, and refuse collection. The amount you pay depends on the value of the property.Read more about council Tax in our glossary page.
- Band: D
- PARKINGDetails of how and where vehicles can be parked, and any associated costs.Read more about parking in our glossary page.
- Yes
- GARDENA property has access to an outdoor space, which could be private or shared.
- Yes
- ACCESSIBILITYHow a property has been adapted to meet the needs of vulnerable or disabled individuals.Read more about accessibility in our glossary page.
- Ask agent
New Road, Brighstone, Newport
Add an important place to see how long it'd take to get there from our property listings.
__mins driving to your place
Get an instant, personalised result:
- Show sellers you’re serious
- Secure viewings faster with agents
- No impact on your credit score
Your mortgage
Notes
Staying secure when looking for property
Ensure you're up to date with our latest advice on how to avoid fraud or scams when looking for property online.
Visit our security centre to find out moreDisclaimer - Property reference NPT250390. The information displayed about this property comprises a property advertisement. Rightmove.co.uk makes no warranty as to the accuracy or completeness of the advertisement or any linked or associated information, and Rightmove has no control over the content. This property advertisement does not constitute property particulars. The information is provided and maintained by Hose Rhodes Dickson, Newport. Please contact the selling agent or developer directly to obtain any information which may be available under the terms of The Energy Performance of Buildings (Certificates and Inspections) (England and Wales) Regulations 2007 or the Home Report if in relation to a residential property in Scotland.
*This is the average speed from the provider with the fastest broadband package available at this postcode. The average speed displayed is based on the download speeds of at least 50% of customers at peak time (8pm to 10pm). Fibre/cable services at the postcode are subject to availability and may differ between properties within a postcode. Speeds can be affected by a range of technical and environmental factors. The speed at the property may be lower than that listed above. You can check the estimated speed and confirm availability to a property prior to purchasing on the broadband provider's website. Providers may increase charges. The information is provided and maintained by Decision Technologies Limited. **This is indicative only and based on a 2-person household with multiple devices and simultaneous usage. Broadband performance is affected by multiple factors including number of occupants and devices, simultaneous usage, router range etc. For more information speak to your broadband provider.
Map data ©OpenStreetMap contributors.








