
Land for sale
Marston Road, Stafford
- PROPERTY TYPE
Land
- SIZE
11,162 sq ft
1,037 sq m
Description
Full Planning Consent for 9 x 2 Bed Apartments
Located in close proximity to Stafford Town Centre
Available Via Informal Tender on a date to be determined
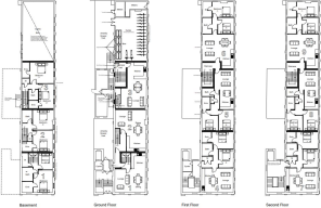
Description - The property comprises a Victorian, 4-storey former manufacturing building which measures approximately 1,037 sq.m (11,162 sq.ft). The premises has full planning consent for residential conversion into 9 apartments.
Location - The property occupies a prominent position on Marston Road within a well-established mixed residential and commercial area, just a short distance from Stafford town centre. The property benefits from excellent accessibility, with strong pedestrian links to local amenities, convenient access to Stafford railway station and regular bus services, with wider regional connectivity via the A34 and M6 motorway network. The surrounding area is characterised by traditional terraced housing, independent businesses and commercial uses, reflecting Stafford’s historic urban fabric. The highly accessible and well-connected location presents an ideal proposition suitable for a range of commercial or redevelopment opportunities.
Planning & Supporting Information. - The property benefits from planning consent for 'Change of use of existing building to create nine apartments' dated 18 December 2024 (Ref; 21/33706/COU). A full info pack is available on request which includes the following:
- Decision Notice
- Supplementary Reports
- Plans
- BJB Comparable Evidence
- Photos
NB: Whilst BJB will try and supply as much information as we can about the planning status of the land / property, please be mindful that we are not planning consultants and accordingly it is important that prospective purchasers ensure they have inspected the land / property and rely upon their own enquiries, assessments and due diligence with regards to the planning status and current or potential uses. All information is supplied in good faith and BJB cannot be held liable for any errors or omissions.
Accommodation. - The proposed scheme comprises the following:
Unit 1 - 2 Bed Duplex Apartment
Est. £190,000 & £1,000 pcm.
Unit 2 - 2 Bed Duplex Apartment
Est. £190,000 & £1,000 pcm.
Unit 3 - 2 Bed Duplex Apartment
Est. £190,000 & £1,000 pcm.
Unit 4 - 2 Bed Apartment
Est. £175,000 & £950 pcm.
Unit 5 - 2 Bed Apartment
Est. £175,000 & £950 pcm.
Unit 6 - 2 Bed Apartment
Est. £175,000 & £950 pcm.
Unit 7 - 2 Bed Apartment
Est. £175,000 & £950 pcm.
Unit 8 - 2 Bed Apartment
Est. £175,000 & £950 pcm.
Unit 9 - 2 Bed Apartment
Est. £175,000 & £950 pcm.
Estimated GDV: £1,620,000
Estimated Annual Income: £104,400 per annum
Any values / measurements quoted by BJB are correct to the best of our knowledge, however we would recommended all interest parties carry out their own checks before relying on any information provided.
Local Council - The property is located in the Council district of Stafford Borough Council
Tenure. - Freehold with vacant possession upon completion.
Proof Of Identity - To comply with Money Laundering Regulations, on acceptance of an offer for purchase or letting, the buyer or prospective tenant will be required to provide identification to Butters John Bee. Where a property is due to go to auction, all bidders will be required to register prior to the auction.
Legal Costs - Each party is to be responsible for their own legal costs incurred in connection with the sale / purchase of the property.
Informal Tender - Initial Expressions of Interest are invited. The site will be offered via Informal Tender on a date to be agreed. Please register you interest for further details.
Viewing - Strictly By Appointment with the BJB Land & New Homes Team - the site cannot be properly viewed from the highway – please make an appointment by e-mailing residential- or .
Business Rates - The VOA website advises the rateable value for the premises is £9,000 per annum. The standard non-domestic business rates multiplier is 55.5p. The small business multiplier is 49.9p up to a rateable value of £50,999. Small Business may benefit for up to 100% on premises with a rateable value of up to £12,000 and a tapered relief for rateable values between £12,000 and £15,000.
Bjb recommends interested parties make their own enquiries into the business rate payable any further business rate relief which may be available.
Services - It is our understanding that the property has all major services connected.
All Enquiries - Alex Djukic BSc MSc
Regional Land Manager
Land & New Homes Team
residential-
Looking For Land & Development Opportunities? - Please note that not all land & development opportunities will appear on our website. To ensure that you do not miss out on these opportunities please e-mail: residential- or call the Land & New Homes team to discuss your requirements.
Spicerhaart - Butters John Bee are part of the Spicerhaart Group which is one of the leading estate agency groups in the UK. Our independent residential sales and lettings network, which is the biggest in the UK, is made up of our seven established estate agencies in England & Wales which also includes: Haart, Chewton Rose, Felicity J Lord, Haybrook, Howards and Darlows.
Brochures
Marston Road, StaffordBrochureMarston Road, Stafford
NEAREST STATIONS
Distances are straight line measurements from the centre of the postcode- Stafford Station0.8 miles
Notes
Disclaimer - Property reference 34409570. The information displayed about this property comprises a property advertisement. Rightmove.co.uk makes no warranty as to the accuracy or completeness of the advertisement or any linked or associated information, and Rightmove has no control over the content. This property advertisement does not constitute property particulars. The information is provided and maintained by Butters John Bee Land, Stoke-on-Trent. Please contact the selling agent or developer directly to obtain any information which may be available under the terms of The Energy Performance of Buildings (Certificates and Inspections) (England and Wales) Regulations 2007 or the Home Report if in relation to a residential property in Scotland.
Auction Fees: The purchase of this property may include associated fees not listed here, as it is to be sold via auction. To find out more about the fees associated with this property please call Butters John Bee Land, Stoke-on-Trent on 01782 493945.
*Guide Price: An indication of a seller's minimum expectation at auction and given as a Guide Price or a range of Guide Prices. This is not necessarily the figure a property will sell for and is subject to change prior to the auction.
Reserve Price: Each auction property will be subject to a Reserve Price below which the property cannot be sold at auction. Normally the Reserve Price will be set within the range of Guide Prices or no more than 10% above a single Guide Price.
Map data ©OpenStreetMap contributors.






