7 bedroom farm house for sale
Umbria, Terni, Orvieto, Italy
- PROPERTY TYPE
Farm House
- BEDROOMS
7
- BATHROOMS
7
- SIZE
6,760 sq ft
628 sq m
Key features
- Farm House
- Swimming pool
- arable
- Land
- bushy grazing
- wooded arable land
- orchard
Description
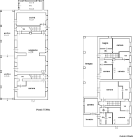
The main farmhouse, of approximately 350 sqm of usable space, is arranged over two levels and is laid out as follows: on the ground floor there is a spacious living room with dining area, the kitchen, a technical room, one bedroom and two bathrooms. Access to the first floor is provided by two staircases, each serving a different sleeping area. In total, there are six bedrooms, five bathrooms and two large panoramic terraces. The property is completed by an outbuilding with a grotto, a second outbuilding used as a storage room, a swimming pool measuring 12x5 meters, and approximately 10 hectares of agricultural land.
The interiors are characterized by traditional features, such as the beautiful vaulted ceilings and terracotta arches on the ground floor, combined with a modern renovation that has enhanced the charm of La Renara. The external park is enriched by tall trees and shaded areas, evocative views and versatile spaces ideal for welcoming guests, enjoying sunsets and preparing excellent meals. The pool area offers unique panoramas and ample space dedicated to relaxation.
State of repair
The property, dating back to 1930, was renovated and completed in 2025, incorporating modern living comforts. The windows and doors are wooden with double glazing, complete with mosquito screens. The flooring features handcrafted terracotta on the lower level and parquet on the upper floor. The area surrounding the farmhouse is fully fenced and includes two gates, one of which is automatic.
Utilities
The main utilities are active and fully operational. Water supply is ensured through connection to the municipal aqueduct. Heating is powered by LPG. The electrical system has a capacity of 17 kW. There are also 3 wood-burning fireplaces. Internet connection via satellite dish is available. Air conditioning is installed in the rooms. The property is also equipped with an alarm system and smoke detectors.
Use and Potential Uses
A perfect country home to enjoy with family and friends, thanks to its generous living spaces. Given its strategic location and high level of finishes, it is also ideally suited as an investment for the tourist rental sector.
Location
Casale La Renara is located just a few kilometers from Orvieto and a short distance from Lake Bolsena, on the hills overlooking the City of Tufa. It is approximately 14 km from the Orvieto A1 motorway exit and the railway station. Set on the border between Tuscany and Lazio, the property enjoys a strategic location, ideal for exploring magnificent landscapes, from the Val d’Orcia to the charm of Civita di Bagnoregio, from the Viterbo thermal baths to those of San Casciano dei Bagni, all reachable within less than an hour.
Land registry details
The Great Estate group conducts, through the seller client's technician, a technical due diligence on each acquired property that allows us to thoroughly understand the urban and cadastral status of each asset. This due diligence can be requested by the client upon genuine interest in the property.
Umbria, Terni, Orvieto, Italy
NEAREST AIRPORTS
Distances are straight line measurements- Leonardo da Vinci(International)63.3 miles
- Ciampino(International)67.8 miles
- Florence(International)88.3 miles
- Marina di Campo(International)95.1 miles
Advice on buying Italian property
Learn everything you need to know to successfully find and buy a property in Italy.
Notes
This is a property advertisement provided and maintained by Great Estate Immobiliare, Italy (reference 10128) and does not constitute property particulars. Whilst we require advertisers to act with best practice and provide accurate information, we can only publish advertisements in good faith and have not verified any claims or statements or inspected any of the properties, locations or opportunities promoted. Rightmove does not own or control and is not responsible for the properties, opportunities, website content, products or services provided or promoted by third parties and makes no warranties or representations as to the accuracy, completeness, legality, performance or suitability of any of the foregoing. We therefore accept no liability arising from any reliance made by any reader or person to whom this information is made available to. You must perform your own research and seek independent professional advice before making any decision to purchase or invest in overseas property.





