
2 bedroom semi-detached house for sale
Church Street, WS15 2BG, Rugeley, WS15 2BB

- PROPERTY TYPE
Semi-Detached
- BEDROOMS
2
- BATHROOMS
2
- SIZE
763 sq ft
71 sq m
- TENUREDescribes how you own a property. There are different types of tenure - freehold, leasehold, and commonhold.Read more about tenure in our glossary page.
Freehold
Key features
- ** £99 RESERVATION FEE + £7,680 TO SPEND YOUR WAY**
- Energy Efficient Home.
- Kitchen/ diner.
- Lounge with French doors onto garden.
- Master bedroom with ensuite.
- Large double second bedroom
- Built-in storage across both floors.
- Driveway & EV charger.
- Solar Panels & Air Sourced Heat Pump.
- 5* Builder & 10 Years NHBC Warranty.
Description
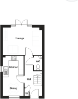
On the ground floor, a welcoming hallway leads into a spacious lounge with double doors opening directly onto the rear garden, perfect for relaxing or entertaining. At the front of the home, a contemporary open-plan kitchen/dining area provides a stylish and functional space for everyday living. A convenient downstairs WC and built-in storage cupboard further enhance the practicality of this well-designed home.
Upstairs, you'll find two generous double bedrooms. The main bedroom benefits from its own private en-suite, while a well-appointed family bathroom serves the second bedroom. Additional landing storage helps keep the home organised and clutter-free.
Designed with sustainability in mind, this home comes complete with solar panels, an air source heat pump, and an EV charging point, making it not only future proof but also cost-effective to run. Outside, you'll also benefit from a private driveway for off road parking.
With its combination of smart design, energy-saving features, and a peaceful garden outlook, this is a home not to be missed.
Enquire today to make this stunning new home yours.
PLEASE NOTE. Computer Generated Images are taken from an artist's impression. All images and videos used in this listing are showhome images taken from other Lovell development's, therefore, there may be slight differences to window and door layout's. This is clearly shown on the floorplan's. For Farriers Fold plot specifications please speak to our sale team.
About the area:
Rugeley is a historic market town located in Staffordshire, UK, nestled on the edge of Cannock Chase Area of Outstanding Natural Beauty.
With a rich industrial heritage, particularly in coal mining and power generation, the town has transformed in recent years into a desirable place to live, blending countryside charm with modern convenience.
Rugeley offers excellent transport links via rail and road, making it ideal for commuters to nearby cities like Birmingham, Stafford, and Lichfield.
The town centre features a mix of independent shops, supermarkets, cafes, and essential amenities, while families benefit from local schools and green open spaces. With riverside walks, outdoor activities in Cannock Chase, and ongoing regeneration plans, Rugeley continues to grow as a vibrant and well-connected community.
*£99 Reservation Fee and £7,680 to spend your way. T&C Apply
- COUNCIL TAXA payment made to your local authority in order to pay for local services like schools, libraries, and refuse collection. The amount you pay depends on the value of the property.Read more about council Tax in our glossary page.
- Ask developer
- PARKINGDetails of how and where vehicles can be parked, and any associated costs.Read more about parking in our glossary page.
- Driveway,EV charging
- GARDENA property has access to an outdoor space, which could be private or shared.
- Patio,Rear garden
- ACCESSIBILITYHow a property has been adapted to meet the needs of vulnerable or disabled individuals.Read more about accessibility in our glossary page.
- Ask developer
Energy performance certificate - ask developer
Church Street, WS15 2BG, Rugeley, WS15 2BB
Add an important place to see how long it'd take to get there from our property listings.
__mins driving to your place
Get an instant, personalised result:
- Show sellers you’re serious
- Secure viewings faster with agents
- No impact on your credit score
About Lovell
Farriers Fold is an exciting new development offering an exclusive selection of beautifully designed 2, 3, and 4-bedroom homes, tailored to suit families, first-time buyers, and those looking to downsize. Whether you're looking for your first home, a more spacious family property, or something more manageable in your next chapter, Farriers Fold offers a perfect option for all.
📍 Perfectly Situated in Rugeley, Staffordshire
Located in the charming market town of Rugeley, Farriers Fold offers easy access to local amenities, schools, and transport links. Enjoy the balance of a peaceful setting and proximity to town life, making it an ideal place to call home.
🚶♂️ A Community to Call Home
The development is designed with community at its heart and will be a place where families can grow and make lasting memories.
🌸 NOW SELLING FROM CHASE OWL ESTATE AGENTS
Find us located in Chase Owl Estate Agents Thursday to Monday 10am - 5pm
10 Anson Street, Rugeley, Staffordshire, WS15 2BB
Interest is high, and our new homes are selling fast, with a limited number of homes on this exclusive development, don't miss your chance to be part of this exciting new community.
Your mortgage
Notes
Staying secure when looking for property
Ensure you're up to date with our latest advice on how to avoid fraud or scams when looking for property online.
Visit our security centre to find out moreDisclaimer - Property reference Gove_41. The information displayed about this property comprises a property advertisement. Rightmove.co.uk makes no warranty as to the accuracy or completeness of the advertisement or any linked or associated information, and Rightmove has no control over the content. This property advertisement does not constitute property particulars. The information is provided and maintained by Lovell. Please contact the selling agent or developer directly to obtain any information which may be available under the terms of The Energy Performance of Buildings (Certificates and Inspections) (England and Wales) Regulations 2007 or the Home Report if in relation to a residential property in Scotland.
*This is the average speed from the provider with the fastest broadband package available at this postcode. The average speed displayed is based on the download speeds of at least 50% of customers at peak time (8pm to 10pm). Fibre/cable services at the postcode are subject to availability and may differ between properties within a postcode. Speeds can be affected by a range of technical and environmental factors. The speed at the property may be lower than that listed above. You can check the estimated speed and confirm availability to a property prior to purchasing on the broadband provider's website. Providers may increase charges. The information is provided and maintained by Decision Technologies Limited. **This is indicative only and based on a 2-person household with multiple devices and simultaneous usage. Broadband performance is affected by multiple factors including number of occupants and devices, simultaneous usage, router range etc. For more information speak to your broadband provider.
Map data ©OpenStreetMap contributors.






