
4 bedroom detached house for sale
The Paddocks, Harrow Drive, Higher Bartle, Lancashire, PR4

- PROPERTY TYPE
Detached
- BEDROOMS
4
- BATHROOMS
3
- SIZE
1,449 sq ft
135 sq m
- TENUREDescribes how you own a property. There are different types of tenure - freehold, leasehold, and commonhold.Read more about tenure in our glossary page.
Freehold
Key features
- 4 bedroom detached home with detached garage
- All-inclusive specification
- Integrated appliances, flooring, turf, fencing and more included
- South west facing garden
- 3 floors of living space
- Spacious lounge with bay window
- Open-plan kitchen/dining/family area
- En-suite from bedroom 1
- Storage space from bedrooms 2 & 3
- Air Source Heat Pump in rear garden
Description
On the ground floor, a generous lounge sits alongside an open-plan kitchen and dining area - the perfect spot for family meals or weekend gatherings. A handy downstairs WC adds to the home's practicality.
Upstairs, the first floor features the primary bedroom with an en-suite and fitted wardrobe, plus a further bedroom and family bathroom. Two additional double bedrooms and a shower room on the top floor offer privacy and flexibility for guests or a home office setup.
This home on our exciting new development, comes complete with an all-inclusive specification which includes a fitted kitchen in a choice of colours and styles, integrated appliances, carpets and flooring throughout, oak veneer doors, turfed gardens, an air source heat pump, EV charging point and a garage.
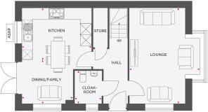
Ground Floor
Lounge- 3813 (max) x 5310 12'6" (max) x 17'5"
Kitchen- 3850 (max) x 2870 12'8" (max) x 9'5"
Dining/Family- 2831 x 2440 9'3" x 8'0"
Cloakroom- 1464 x 1807 4'10" x 5'11"
First Floor
Bedroom 1- 3088 x 5310 10'2" x 17'5"
En-Suite- 2240 x 1889 7'4" x 6'2"
Bedroom 4- 3832 x 2175 12'7" x 7'2"
Bathroom- 3502 x 1871 11'6" x 6'2"
Second Floor
Bedroom 2- 3850 (max) x 3649 12'8" (max) x 12'0"
Bedroom 3- 3088 (max) x 3649 10'2" (max) x 12'0"
Shower Room- 2372 x 1631 (max) 7'9" x 5'4" (max)
Find your kind of perfect in Higher Bartle
The Paddocks is an popular development from Wain Homes situated in the semi-rural location of Higher Bartle, offering a stunning collection of 2, 3, 4 & 5 bedroom freehold, energy-efficient family homes, located just three miles from the centre of Preston.
Phase 3 at The Paddocks features homes from our NEW house type range, perfectly suited for first-time buyers, growing families, and those looking to find their forever home. All homes will feature our premium, all-inclusive specification and air-source heat pumps.
The Paddocks is built to the highest level of quality and craftsmanship. The Wain Homes' Site Management Team have won numerous awards, including the prestigious NHBC Health & Safety National Award to go alongside a Commended Best Site Award and a Pride in the Job Quality Award.
The Surrounding Area
The Paddocks is located in Higher Bartle, just a stone's throw from Cottam. Located two miles from the town of Fulwood and four miles from the city of Preston, Higher Bartle is a semi-rural location with plenty of green space and walking routes on the doorstep.
Located just 3.7 miles from the Royal Preston Hospital The Paddocks is ideal for those working in the NHS and medical professions, as well as commuters with the M55/M6 interchange just 3.8 miles away. There is also a new East West link road adjacent to The Paddocks which makes commuting even easier.
The nearest railway station at Preston is on the West Coast Mainline, with regular services to London, Glasgow and Edinburgh.
Cottam Primary School and Ashbridge Nursery are both within a short walk and Broughton High School, rated 'outstanding' by Ofsted, is 2.8 miles away.
The location benefits from plenty of family things to do from Ribble Steam Railway, go-karting, Odeon cinema and the Lancashire Infantry Museum to a trampoline park, Bartle Hall, Brockholes and Hills and Hollows nature reserve - you won't run out of ways to keep busy!
Please note: As the properties at this development are new build, the images shown are typical Show Home photography or CGI's for illustrative purposes only and not necessarily the advertised property. Furthermore, internal photography may show an upgraded specification. Please ask the Sales Advisor for details
Brochures
brochureSite Plan- COUNCIL TAXA payment made to your local authority in order to pay for local services like schools, libraries, and refuse collection. The amount you pay depends on the value of the property.Read more about council Tax in our glossary page.
- Ask agent
- PARKINGDetails of how and where vehicles can be parked, and any associated costs.Read more about parking in our glossary page.
- Yes
- GARDENA property has access to an outdoor space, which could be private or shared.
- Yes
- ACCESSIBILITYHow a property has been adapted to meet the needs of vulnerable or disabled individuals.Read more about accessibility in our glossary page.
- Ask agent
Energy performance certificate - ask agent
The Paddocks, Harrow Drive, Higher Bartle, Lancashire, PR4
Add an important place to see how long it'd take to get there from our property listings.
__mins driving to your place
Get an instant, personalised result:
- Show sellers you’re serious
- Secure viewings faster with agents
- No impact on your credit score

Your mortgage
Notes
Staying secure when looking for property
Ensure you're up to date with our latest advice on how to avoid fraud or scams when looking for property online.
Visit our security centre to find out moreDisclaimer - Property reference Wain-Paddocks-Hillgrove. The information displayed about this property comprises a property advertisement. Rightmove.co.uk makes no warranty as to the accuracy or completeness of the advertisement or any linked or associated information, and Rightmove has no control over the content. This property advertisement does not constitute property particulars. The information is provided and maintained by Consulta Home Group, Covering The North West. Please contact the selling agent or developer directly to obtain any information which may be available under the terms of The Energy Performance of Buildings (Certificates and Inspections) (England and Wales) Regulations 2007 or the Home Report if in relation to a residential property in Scotland.
*This is the average speed from the provider with the fastest broadband package available at this postcode. The average speed displayed is based on the download speeds of at least 50% of customers at peak time (8pm to 10pm). Fibre/cable services at the postcode are subject to availability and may differ between properties within a postcode. Speeds can be affected by a range of technical and environmental factors. The speed at the property may be lower than that listed above. You can check the estimated speed and confirm availability to a property prior to purchasing on the broadband provider's website. Providers may increase charges. The information is provided and maintained by Decision Technologies Limited. **This is indicative only and based on a 2-person household with multiple devices and simultaneous usage. Broadband performance is affected by multiple factors including number of occupants and devices, simultaneous usage, router range etc. For more information speak to your broadband provider.
Map data ©OpenStreetMap contributors.






