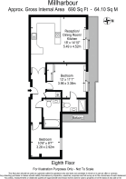
2 bedroom flat for sale
Millharbour, Canary Wharf, E14

- PROPERTY TYPE
Flat
- BEDROOMS
2
- BATHROOMS
2
- SIZE
690 sq ft
64 sq m
Key features
- 690 sq ft two-bedroom, two-bathroom apartment on the 8th floor
- Large private balcony with excellent entertaining space
- Spacious open-plan living area with breakfast bar
- 24-hour concierge and onsite supermarket
- Service charge includes communal heating, hot & cold water
- Short walk to Canary Wharf, DLR & Elizabeth Line
Description
The property features a spacious open-plan kitchen and reception room with breakfast bar—perfect for entertaining—two well-proportioned double bedrooms, including a principal with en-suite, a contemporary family bathroom, and a generous private balcony ideal for relaxing or dining outdoors.
Residents benefit from 24-hour concierge service and the added convenience of an onsite supermarket for everyday essentials. The surrounding area offers an excellent choice of shops, cafés, restaurants, and bars, while the nearby Mudchute Farm and Park provides a welcome slice of green space for weekend walks and outdoor living.
The building currently holds a B2-rated EWS1 certificate. The developer, Weston Homes, has committed to funding the required remediation works to achieve a B1 rating, with lending options already available through a number of high-street lenders.
A further advantage is that the service charge includes communal heating, hot and cold water, helping to simplify monthly outgoings.
An ideal home or investment in one of E14’s most convenient locations—early viewing is highly recommended.
- COUNCIL TAXA payment made to your local authority in order to pay for local services like schools, libraries, and refuse collection. The amount you pay depends on the value of the property.Read more about council Tax in our glossary page.
- Ask agent
- PARKINGDetails of how and where vehicles can be parked, and any associated costs.Read more about parking in our glossary page.
- Ask agent
- GARDENA property has access to an outdoor space, which could be private or shared.
- Ask agent
- ACCESSIBILITYHow a property has been adapted to meet the needs of vulnerable or disabled individuals.Read more about accessibility in our glossary page.
- Ask agent
Millharbour, Canary Wharf, E14
Add an important place to see how long it'd take to get there from our property listings.
__mins driving to your place
Get an instant, personalised result:
- Show sellers you’re serious
- Secure viewings faster with agents
- No impact on your credit score


Your mortgage
Notes
Staying secure when looking for property
Ensure you're up to date with our latest advice on how to avoid fraud or scams when looking for property online.
Visit our security centre to find out moreDisclaimer - Property reference HLO-84659333. The information displayed about this property comprises a property advertisement. Rightmove.co.uk makes no warranty as to the accuracy or completeness of the advertisement or any linked or associated information, and Rightmove has no control over the content. This property advertisement does not constitute property particulars. The information is provided and maintained by Huttons & Partners, London. Please contact the selling agent or developer directly to obtain any information which may be available under the terms of The Energy Performance of Buildings (Certificates and Inspections) (England and Wales) Regulations 2007 or the Home Report if in relation to a residential property in Scotland.
*This is the average speed from the provider with the fastest broadband package available at this postcode. The average speed displayed is based on the download speeds of at least 50% of customers at peak time (8pm to 10pm). Fibre/cable services at the postcode are subject to availability and may differ between properties within a postcode. Speeds can be affected by a range of technical and environmental factors. The speed at the property may be lower than that listed above. You can check the estimated speed and confirm availability to a property prior to purchasing on the broadband provider's website. Providers may increase charges. The information is provided and maintained by Decision Technologies Limited. **This is indicative only and based on a 2-person household with multiple devices and simultaneous usage. Broadband performance is affected by multiple factors including number of occupants and devices, simultaneous usage, router range etc. For more information speak to your broadband provider.
Map data ©OpenStreetMap contributors.




