
Mill Green Gardens, The Cawsey, Penwortham, Preston, Lancashire, PR1 9LF

- PROPERTY TYPE
Detached
- BEDROOMS
3
- SIZE
Ask developer
- TENUREDescribes how you own a property. There are different types of tenure - freehold, leasehold, and commonhold.Read more about tenure in our glossary page.
Freehold
Key features
- Open plan kitchen/dining room
- Utility room
- Spacious living room with French doors to garden
- Downstairs WC
- En suite to bedroom one
- Family bathroom
- Storage space
- Energy efficient
Description
A thoughtfully-designed three-bedroom family home with much to offer, the Barndale has a bright and modern open plan kitchen/dining room leading to a handy utility room. The spacious living room has French doors leading into the garden. The inner hallway, downstairs WC and cupboards take care of everyday storage. Plus there’s an en suite to bedroom one and a family bathroom.
Additional Information
- Tenure: Freehold
- Council tax band: Not made available by local authority until post-occupation
Parking - Allocated Parking
Room Dimensions
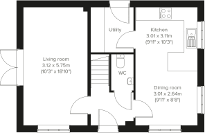
- Kitchen - 3.01 x 3.11 metre
- Dining room - 3.01 x 2.64 metre
- Living room - 3.12 x 5.75 metre
- Bedroom 1 - 2.88 x 3.75 metre
- Bedroom 2 - 4.19 x 2.96 metre
- Bedroom 3 - 3.14 x 2.7 metre
- COUNCIL TAXA payment made to your local authority in order to pay for local services like schools, libraries, and refuse collection. The amount you pay depends on the value of the property.Read more about council Tax in our glossary page.
- Ask developer
- PARKINGDetails of how and where vehicles can be parked, and any associated costs.Read more about parking in our glossary page.
- Yes
- GARDENA property has access to an outdoor space, which could be private or shared.
- Yes
- ACCESSIBILITYHow a property has been adapted to meet the needs of vulnerable or disabled individuals.Read more about accessibility in our glossary page.
- Ask developer
Energy performance certificate - ask developer
Mill Green Gardens, The Cawsey, Penwortham, Preston, Lancashire, PR1 9LF
Add an important place to see how long it'd take to get there from our property listings.
__mins driving to your place
Get an instant, personalised result:
- Show sellers you’re serious
- Secure viewings faster with agents
- No impact on your credit score
About the development
About Persimmon Homes
Welcome to Mill Green Gardens – a vibrant town with a semi-rural feel
Discover our energy-efficient new homes in Penwortham Preston, just minutes from Preston city centre. Offering a choice of two, three, four and five-bedroom homes, close to the beautiful countryside of Lancashire, this exciting new development is ideal for first-time buyers, growing families and downsizers alike – and with excellent amenities nearby, Mill Green Gardens combines easy access to Preston City Centre with the space and calm of a semi-rural setting.
Stylish new houses in Penwortham
Mill Green Gardens sits just minutes from Preston City Centre while putting you close to the countryside of Lancashire. Local amenities are within easy reach, from supermarkets and independent stores to sports clubs and parks. With all this on your doorstep, you'll be part of a welcoming community in one of Preston’s most popular areas.
Well connected for commuting and travel to Preston, Wigan and beyond
Whether you're heading into Preston, Leyland or further afield, you’ll have excellent links by road, rail and bus. The development is served by new bus routes connecting Preston and Wigan via The Cawsey. Plus, nearby train stations include Lostock Hall and Preston, which give you fast journeys across the North West.
Close to everything you need
Penwortham offers fantastic local shopping with a Lidl just a minute away, and the Capitol Centre, Booths, Sainsbury’s and Holme Farm Dairies all a short drive away. You’ll also find well-regarded schools like Penwortham Girls’ High School, Lostock Hall Academy and Hutton Grammar close by.
Ready for your next move?
To explore our new build houses for sale in Penwortham and start your journey, speak to one of our sales advisors today.
This development offers the following schemes:
- Deposit Boost: 5% Deposit Contribution Scheme
- Part Exchange your home
- Own New Rate Reducer Scheme
- Home Change
Schemes are available on selected plots only, subject to status, terms and conditions apply. Contact the development for latest information.
Affordability
Notes
Staying secure when looking for property
Ensure you're up to date with our latest advice on how to avoid fraud or scams when looking for property online.
Visit our security centre to find out moreDisclaimer - Property reference 3_15. The information displayed about this property comprises a property advertisement. Rightmove.co.uk makes no warranty as to the accuracy or completeness of the advertisement or any linked or associated information, and Rightmove has no control over the content. This property advertisement does not constitute property particulars. The information is provided and maintained by Persimmon Homes. Please contact the selling agent or developer directly to obtain any information which may be available under the terms of The Energy Performance of Buildings (Certificates and Inspections) (England and Wales) Regulations 2007 or the Home Report if in relation to a residential property in Scotland.
*This is the average speed from the provider with the fastest broadband package available at this postcode. The average speed displayed is based on the download speeds of at least 50% of customers at peak time (8pm to 10pm). Fibre/cable services at the postcode are subject to availability and may differ between properties within a postcode. Speeds can be affected by a range of technical and environmental factors. The speed at the property may be lower than that listed above. You can check the estimated speed and confirm availability to a property prior to purchasing on the broadband provider's website. Providers may increase charges. The information is provided and maintained by Decision Technologies Limited. **This is indicative only and based on a 2-person household with multiple devices and simultaneous usage. Broadband performance is affected by multiple factors including number of occupants and devices, simultaneous usage, router range etc. For more information speak to your broadband provider.
Map data ©OpenStreetMap contributors.






