
2 bedroom terraced house for sale
Inkerman Road, Knaphill, Woking, Surrey, GU21

- PROPERTY TYPE
Terraced
- BEDROOMS
2
- BATHROOMS
1
- SIZE
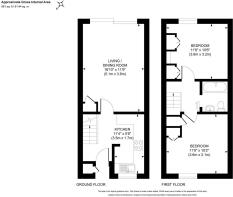
661 sq ft
61 sq m
- TENUREDescribes how you own a property. There are different types of tenure - freehold, leasehold, and commonhold.Read more about tenure in our glossary page.
Freehold
Key features
- Two Double Bedrooms
- Bathroom
- Sitting/Dining Room
- Kitchen
- Front And Rear Gardens
- Garage
- Gas Central Heating
- UPVC Double Glazing
Description
The property features two generously sized double bedrooms, both served by a modern and well presented family bathroom fitted with a three-piece suite comprising a wash hand basin set within a vanity unit, a WC and a bath with a wall-mounted shower.
On the ground floor, there is a stylish front facing kitchen that has been recently updated and fitted with a range of base and eye level units, an integrated oven with gas hob and an integrated fridge/freezer. To the rear, the spacious lounge/dining room provides a bright and airy living space, with a door opening onto a private, landscaped garden extending to over 30ft in length. The garden is laid mainly to lawn and features separate decking and patio areas, ideal for outdoor entertaining.
Further benefits include a detached garage located in a nearby block, with a recently extended lease of 121 years remaining.
Location
Knaphill village offers a vibrant selection of shops, pubs, restaurants and a Post Office, while more comprehensive shopping facilities are available at the nearby Sainsbury’s superstore, approximately a quarter of a mile away. For commuters, Brookwood station provides regular direct services to Waterloo, Woking and Guildford. Outdoor enthusiasts will also enjoy Stafford Lake, ideal for dog walking, and the nearby Brookwood Country Park.
N.B Service Charges Apply £400.00 pa
Brochures
Particulars- COUNCIL TAXA payment made to your local authority in order to pay for local services like schools, libraries, and refuse collection. The amount you pay depends on the value of the property.Read more about council Tax in our glossary page.
- Band: C
- PARKINGDetails of how and where vehicles can be parked, and any associated costs.Read more about parking in our glossary page.
- Yes
- GARDENA property has access to an outdoor space, which could be private or shared.
- Yes
- ACCESSIBILITYHow a property has been adapted to meet the needs of vulnerable or disabled individuals.Read more about accessibility in our glossary page.
- Ask agent
Inkerman Road, Knaphill, Woking, Surrey, GU21
Add an important place to see how long it'd take to get there from our property listings.
__mins driving to your place
Get an instant, personalised result:
- Show sellers you’re serious
- Secure viewings faster with agents
- No impact on your credit score
Your mortgage
Notes
Staying secure when looking for property
Ensure you're up to date with our latest advice on how to avoid fraud or scams when looking for property online.
Visit our security centre to find out moreDisclaimer - Property reference KNA250450. The information displayed about this property comprises a property advertisement. Rightmove.co.uk makes no warranty as to the accuracy or completeness of the advertisement or any linked or associated information, and Rightmove has no control over the content. This property advertisement does not constitute property particulars. The information is provided and maintained by Seymours Estate Agents, Knaphill. Please contact the selling agent or developer directly to obtain any information which may be available under the terms of The Energy Performance of Buildings (Certificates and Inspections) (England and Wales) Regulations 2007 or the Home Report if in relation to a residential property in Scotland.
*This is the average speed from the provider with the fastest broadband package available at this postcode. The average speed displayed is based on the download speeds of at least 50% of customers at peak time (8pm to 10pm). Fibre/cable services at the postcode are subject to availability and may differ between properties within a postcode. Speeds can be affected by a range of technical and environmental factors. The speed at the property may be lower than that listed above. You can check the estimated speed and confirm availability to a property prior to purchasing on the broadband provider's website. Providers may increase charges. The information is provided and maintained by Decision Technologies Limited. **This is indicative only and based on a 2-person household with multiple devices and simultaneous usage. Broadband performance is affected by multiple factors including number of occupants and devices, simultaneous usage, router range etc. For more information speak to your broadband provider.
Map data ©OpenStreetMap contributors.





