Kyrenia/Girne, Alsancak, north of Cyprus
- PROPERTY TYPE
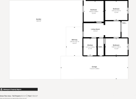
Semi-Detached
- BEDROOMS
2
- BATHROOMS
1
- SIZE
1,076 sq ft
100 sq m
Key features
- Sea View
- Mountain View
- Water
- Electricity
Description
The property comprises two bedrooms, one bathroom, a separate living room or third bedroom, and a kitchen. Adding to the convenience is a gated driveway with parking for two cars. The garden also offers potential for the addition of a swimming pool.
This property has excellent potential, whether for a first-time buyer or as an ideal investment opportunity, thanks to its prime location within walking distance of Alsancak’s main village road, with shops, restaurants, bus stops, and just a short drive to sandy beaches.
Full individual title deeds in the owner’s name. VAT paid.
Kyrenia/Girne, Alsancak, north of Cyprus
NEAREST AIRPORTS
Distances are straight line measurements- Ercan(Local)21.4 miles
Notes
This is a property advertisement provided and maintained by North Cove Property, Alsancak (reference 1347) and does not constitute property particulars. Whilst we require advertisers to act with best practice and provide accurate information, we can only publish advertisements in good faith and have not verified any claims or statements or inspected any of the properties, locations or opportunities promoted. Rightmove does not own or control and is not responsible for the properties, opportunities, website content, products or services provided or promoted by third parties and makes no warranties or representations as to the accuracy, completeness, legality, performance or suitability of any of the foregoing. We therefore accept no liability arising from any reliance made by any reader or person to whom this information is made available to. You must perform your own research and seek independent professional advice before making any decision to purchase or invest in overseas property.




