Plot for sale
Abbeydawn Rise, Plot 2, Cholesbury Road, HP23
- PROPERTY TYPE
Plot
- BEDROOMS
4
- BATHROOMS
3
- SIZE
2,647 sq ft
246 sq m
Key features
- Plot Size: 2205 m² / 23734 sq ft
- Max House GIA: 246 m² / 2647 sq ft
- Parking: 3 spaces
- Customise your layouts before construction
- Price shown is for the serviced building plot. Building costs are additional.
Description
Plot Two at Abbeydawn Rise is the final opportunity to secure a serviced plot within this exceptionally limited, two-plot development, set in a peaceful and private countryside location on the edge of Wiggington.
With the first plot already secured, this is a now-or-never chance to create a bespoke family home in a setting where such opportunities rarely come to market.
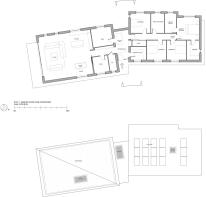
The plot benefits from services to the boundary and approved planning consent for a striking four-bedroom detached home, featuring generous garden space, a substantial terrace, and three private parking bays. Purchasers have the flexibility to personalise the approved plans, including internal layout and material choices, to create a home that truly reflects their lifestyle.
Please note: The price shown relates to the serviced plot only. The construction of the home is arranged separately under a bespoke build contract, allowing full control over design, specification, and budget.
Custom Build - Design It Your Way
Abbeydawn Rise offers the rare opportunity to work closely with experienced design and build professionals to deliver a home tailored entirely to you. From early concept through to completion, expert support is available at every stage, making the custom-build process clear, structured, and rewarding.
Mortgages
Abbeydawn Rise is supported by BuildStore Mortgage Services, the UK's leading self-build and custom-build mortgage provider. Specialist advice is available to help buyers explore funding solutions specifically designed for serviced plot and custom build projects.
Location
Situated on Cholesbury Road, Wiggington, Abbeydawn Rise enjoys a tranquil rural setting just outside the historic market town of Tring. Residents benefit from the best of both worlds - countryside living with easy access to local amenities, well-regarded schools, and transport links.
Tring station provides direct services to London Euston in under 40 minutes, while the surrounding Chiltern Hills offer outstanding walking, cycling, and outdoor leisure opportunities.
A Boutique, Private Setting
Thoughtfully designed to sit harmoniously within its natural surroundings, Abbeydawn Rise features mature trees, generous plot sizes, and a layout that prioritises privacy, outlook, and space. With only two plots in total - and now just one remaining - this development delivers a level of exclusivity that simply cannot be replicated.
Investment & Value
Purchasing a serviced plot at Abbeydawn Rise offers compelling long-term value. Stamp Duty Land Tax is payable only on the plot, not the build cost, providing meaningful savings and the opportunity to create immediate equity through a high-quality bespoke home.
Viewings & Enquiries
Opportunities of this nature - a single remaining plot in a private, countryside development - are increasingly rare.
For further information or to arrange a private site visit, contact our sales team today.
Brochures
Brochure 1Abbeydawn Rise, Plot 2, Cholesbury Road, HP23
NEAREST STATIONS
Distances are straight line measurements from the centre of the postcode- Tring Station2.6 miles
- Berkhamsted Station3.3 miles
- Chesham Station4.3 miles
Notes
Disclaimer - Property reference ADR_Plot2. The information displayed about this property comprises a property advertisement. Rightmove.co.uk makes no warranty as to the accuracy or completeness of the advertisement or any linked or associated information, and Rightmove has no control over the content. This property advertisement does not constitute property particulars. The information is provided and maintained by Custom Build Homes, Covering Nationwide. Please contact the selling agent or developer directly to obtain any information which may be available under the terms of The Energy Performance of Buildings (Certificates and Inspections) (England and Wales) Regulations 2007 or the Home Report if in relation to a residential property in Scotland.
Map data ©OpenStreetMap contributors.





