
Plot for sale
Trenchard Avenue, Calne
- PROPERTY TYPE
Plot
- SIZE
Ask agent
Key features
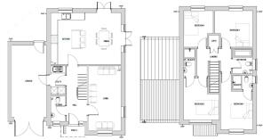
- Building Plot - Circa 600 sq m Plot
- Planning Permission Granted - SELF BUILD
- Four Bedroom Detached House - Circa 1450 sq ft
- Two En-Suites & Family Bathroom
- Cloakroom & Utility Room
- Integral Single Garage
- Driveway for Two Vehicles
- Wrap Around Gardens to Front, Side & Rear
- Village Location
- Rare Opportunity
Description
The proposed dwelling would benefit from two parking spaces, and generous corner plot with a rear garden that would wrap-around to both south and westerly aspects.
Situation - Lower Compton is a small village located just off the A4 within a couple of miles of Calne. It is well located with the nearby towns of Calne, Devizes, Chippenham and Marlborough each providing comprehensive shopping facilities and amenities. North Wiltshire is very commutable with excellent road and rail links; The M4 motorway provides fast road access to the major employment centres of Bristol and Swindon together with London and the West Country. Main line rail services are available from Chippenham (Paddington about 75 mins). There is a good choice of both state and private schooling in the area and those with an interest in country and leisure pursuits are well catered for in the region.
Brochures
Trenchard Avenue, CalneTrenchard Avenue, Calne
NEAREST STATIONS
Distances are straight line measurements from the centre of the postcode- Chippenham Station6.5 miles
Notes
Disclaimer - Property reference 34411335. The information displayed about this property comprises a property advertisement. Rightmove.co.uk makes no warranty as to the accuracy or completeness of the advertisement or any linked or associated information, and Rightmove has no control over the content. This property advertisement does not constitute property particulars. The information is provided and maintained by Strakers, Chippenham. Please contact the selling agent or developer directly to obtain any information which may be available under the terms of The Energy Performance of Buildings (Certificates and Inspections) (England and Wales) Regulations 2007 or the Home Report if in relation to a residential property in Scotland.
Map data ©OpenStreetMap contributors.






