
3 bedroom semi-detached house for rent
Lawley, Telford, TF4

Letting details
- Let available date:
- 06/02/2026
- Deposit:
- £1,430A deposit provides security for a landlord against damage, or unpaid rent by a tenant.Read more about deposit in our glossary page.
- Min. Tenancy:
- Ask agent How long the landlord offers to let the property for.Read more about tenancy length in our glossary page.
- Let type:
- Long term
- Furnish type:
- Unfurnished
- Council Tax:
- Ask agent
This property is Built For Renters.
- PROPERTY TYPE
Semi-Detached
- BEDROOMS
3
- BATHROOMS
1
- SIZE
828 sq ft
77 sq m
Key features
- *Two Month's Rent Free & Deposit Free Option Available*
- Semi-Detached Property
- Dedicated property management & maintenance team
- Pet friendly
- Modern kitchen with a stylish finish
- Appliances included
- Great local transport links
Description
*Move into your new home before 31st Jan 2026 to enjoy 2 MONTHS’ FREE RENT and a £250 eGift Card that can be used across hundreds of retailers & brands. And start the new year with a bit more money in your pocket!
Telford was heavily developed in the 1970s and was built with all the amenities needed for modern living. Against the backdrop of the beautiful Shropshire Hills, a new home here allows you to benefit from easy access to nearby cities. A Persimmon home means you’re ideally placed to benefit from country and city living.
Telford is situated just to the north of the Shropshire Hills Area of Outstanding Natural Beauty and within easy reach of the cities of Wolverhampton and Birmingham. As a modern town, it has all the infrastructure and amenities you could need.
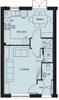
The Archford provides a spacious 3 bedroom home which features a large window to the front of the lounge, allowing for lots of natural light to flood in and open up the space. The open-plan kitchen with dining area includes French doors that lead out to the rear garden and provides a great space for entertaining by allowing for the indoors and out to flow simultaneously.
Each of the 3 bedrooms offer a space for wardrobes, ensuring everyone has a place for their belongings which helps with clutter-free living. The main bedroom features an en suite and there is a family bathroom.
THINGS TO NOTE
Images, videos, floorplans and descriptions are demonstrative of this property type - these are not plot or site specific and therefore spec and fixtures may vary. Properties are let unfurnished.
We understand the significant role your beloved furry family members play in your life, which is why this property is pet friendly. However, we do require you to fill out a Pet Application Form should you wish to have a pet reside in your property, which you can request from a member of the team. Please note – submitting an application does not guarantee acceptance, and we reserve the right to refuse pets at any time.
Deposit Free Option - this is offered via Reposit, a deposit alternative. Residents opting for Reposit will pay a non-refundable service fee instead of a traditional deposit. This fee is not a deposit, and residents remain fully liable at the end of the tenancy as per usual. Eligibility criteria, terms and conditions apply. For more information, please visit
Two Months Rent Free & £250 Voucher
*Terms apply: Offer available for applications made from 5th December 2025 with a move-in date before 31st January 2026. Only available on selected homes. This offer is subject to applicants agreeing to our standard tenancy length of 12 months and passing all standard referencing checks. The eGift Card will be issued electronically and cannot be exchanged for cash. Please note - this promotion is not available to applicants who have previously redeemed an offer with us and are in the process of applying or have completed an application. For any questions regarding this incentive, please contact the Ascend Living team.
Brochures
Brochure- COUNCIL TAXA payment made to your local authority in order to pay for local services like schools, libraries, and refuse collection. The amount you pay depends on the value of the property.Read more about council Tax in our glossary page.
- Band: TBC
- PARKINGDetails of how and where vehicles can be parked, and any associated costs.Read more about parking in our glossary page.
- Ask agent
- GARDENA property has access to an outdoor space, which could be private or shared.
- Yes
- ACCESSIBILITYHow a property has been adapted to meet the needs of vulnerable or disabled individuals.Read more about accessibility in our glossary page.
- Ask agent
On-site perks of living at this Built for Renters development
Additional costs may apply for some services – please check the full property description above.
Lawley, Telford, TF4
Add an important place to see how long it'd take to get there from our property listings.
__mins driving to your place
Notes
Staying secure when looking for property
Ensure you're up to date with our latest advice on how to avoid fraud or scams when looking for property online.
Visit our security centre to find out moreDisclaimer - Property reference 34411697. The information displayed about this property comprises a property advertisement. Rightmove.co.uk makes no warranty as to the accuracy or completeness of the advertisement or any linked or associated information, and Rightmove has no control over the content. This property advertisement does not constitute property particulars. The information is provided and maintained by Ascend Living, UK, Ascend. Please contact the selling agent or developer directly to obtain any information which may be available under the terms of The Energy Performance of Buildings (Certificates and Inspections) (England and Wales) Regulations 2007 or the Home Report if in relation to a residential property in Scotland.
*This is the average speed from the provider with the fastest broadband package available at this postcode. The average speed displayed is based on the download speeds of at least 50% of customers at peak time (8pm to 10pm). Fibre/cable services at the postcode are subject to availability and may differ between properties within a postcode. Speeds can be affected by a range of technical and environmental factors. The speed at the property may be lower than that listed above. You can check the estimated speed and confirm availability to a property prior to purchasing on the broadband provider's website. Providers may increase charges. The information is provided and maintained by Decision Technologies Limited. **This is indicative only and based on a 2-person household with multiple devices and simultaneous usage. Broadband performance is affected by multiple factors including number of occupants and devices, simultaneous usage, router range etc. For more information speak to your broadband provider.
Map data ©OpenStreetMap contributors.






