5 bedroom detached house for sale
Woodlands Road, Aylesford, Kent

- PROPERTY TYPE
Detached
- BEDROOMS
5
- BATHROOMS
3
- SIZE
Ask agent
- TENUREDescribes how you own a property. There are different types of tenure - freehold, leasehold, and commonhold.Read more about tenure in our glossary page.
Freehold
Key features
- ONLY OVER 60s are eligible for the Home for Life from Homewise (incorporating a Lifetime Lease)
- SAVINGS against the full price of this property typically range from 20% to 50% for a Lifetime Lease
- Actual price paid depends on individuals' age and personal circumstances (and property criteria)
- Plan allows customers to purchase a % share of the property value (UP TO 50%) to safeguard for the future
- CALL for a PERSONALISED QUOTE, or use the CALCULATOR on the HOMEWISE website for an indicative saving
- The full listed price of this property is £1,000,000
- Located alongside the Holtwood Conservation area - this beautiful home is a must see
- The en-suite bathroom adds a touch of luxury
- Work from home with ease in the study
- Bright conservatory - a great place to relax
Description
SECURING THIS PROPERTY WITH A LIFETIME LEASE
OVER 60s can secure this property with a HOME FOR LIFE from HOMEWISEThrough the Home for Life Plan from Homewise, those AGED 60 or over can purchase a Lifetime Lease and a share of the property value to safeguard for the future. The cost to purchase the Lifetime Lease is always less than the full market value.
OVER 60s customers typically save between from 20% to 50%*.
Home for Life Plan guide price for OVERS 60s: The Lifetime Lease price for this property is £660,500 based on an average saving of 33%.
Market Value Price: £1,000,000
The price you pay will vary according to your age, personal circumstances and requirements and will be adjusted to include any percentage of the property you wish to safeguard. The plan allows customers to purchase a share of the property value (UP TO 50%) to safeguard for the future.
For an indication of what you could save, please use our CALCULATOR on the HOMEWISE website.
Please CALL for more information or a PERSONALISED QUOTE.
Please note: Homewise DO NOT own this property and it is not exclusively for sale for the over-60s.
It is being marketed by Homewise as an example of a property that is currently for sale which could be purchased using a Home For Life Lifetime Lease.
If you are not OVER 60 or would like to purchase this property at the full market value of £1,000,000, please contact the estate agent Wards.
PROPERTY DESCRIPTION
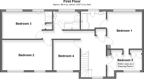
Hugely extended detached house with extensive parking and a large garage. Part of the garage has a utility and a wet room facility offering great potential for an annexe. Perfect for the largest of families, it really needs to be viewed to appreciate the wonderful space and plot size 0.3639 acres that's offered with this home.Room sizes:
- Entrance Hall
- Cloakroom
- Lounge: 20'7 x 11'9 (6.28m x 3.58m)
- Conservatory: 13'0 x 9'9 (3.97m x 2.97m)
- Study: 9'2 x 7'10 (2.80m x 2.39m)
- Dining Room: 14'0 x 9'2 (4.27m x 2.80m)
- Family Room: 17'9 x 17'5 (5.41m x 5.31m)
- Kitchen: 17'5 x 9'0 (5.31m x 2.75m)
- Breakfast Area: 13'5 to French Doors (4.09m) narrowing to 8'7 (2.62m) x 9'2 (2.80m)
- Utility Area: 8'7 x 8'2 (2.62m x 2.49m)
- Wet Room
- Landing
- Bedroom 1: 12'5 x 12'2 (3.79m x 3.71m)
- En-Suite Bathroom
- Bedroom 5 (Dressing Room): 12'3 x 7'10 (3.74m x 2.39m)
- Bedroom 2: 17'6 x 10'7 (5.34m x 3.23m)
- Bedroom 3: 14'11 x 9'9 (4.55m x 2.97m)
- Bedroom 4: 10'7 x 9'3 (3.23m x 2.82m)
- Bathroom
- Driveway
- Double Garage: 17'1 x 14'1 (5.21m x 4.30m)
- Front, Side & Rear Gardens
- Summerhouse
The information provided about this property does not constitute or form part of an offer or contract, nor may it be regarded as representations. All interested parties must verify accuracy and your solicitor must verify tenure/lease information, fixtures & fittings and, where the property has been extended/converted, planning/building regulation consents. All dimensions are approximate and quoted for guidance only as are floor plans which are not to scale and their accuracy cannot be confirmed. Reference to appliances and/or services does not imply that they are necessarily in working order or fit for the purpose.
We are pleased to offer our customers a range of additional services to help them with moving home. None of these services are obligatory and you are free to use service providers of your choice. Current regulations require all estate agents to inform their customers of the fees they earn for recommending third party services. If you choose to use a service provider recommended by Homewise, details of all referral fees can be found at the link below. If you decide to use any of our services, please be assured that this will not increase the fees you pay to our service providers, which remain as quoted directly to you.
Suitable as a retirement home.
Brochures
Full PDF brochureExplore this property in 3D Virtual RealityReferral feesPrivacy policyHomewise Over 60s saving calculator- COUNCIL TAXA payment made to your local authority in order to pay for local services like schools, libraries, and refuse collection. The amount you pay depends on the value of the property.Read more about council Tax in our glossary page.
- Band: G
- PARKINGDetails of how and where vehicles can be parked, and any associated costs.Read more about parking in our glossary page.
- Garage,Off street
- GARDENA property has access to an outdoor space, which could be private or shared.
- Front garden,Back garden
- ACCESSIBILITYHow a property has been adapted to meet the needs of vulnerable or disabled individuals.Read more about accessibility in our glossary page.
- Ask agent
Woodlands Road, Aylesford, Kent
Add an important place to see how long it'd take to get there from our property listings.
__mins driving to your place
Get an instant, personalised result:
- Show sellers you’re serious
- Secure viewings faster with agents
- No impact on your credit score
Your mortgage
Notes
Staying secure when looking for property
Ensure you're up to date with our latest advice on how to avoid fraud or scams when looking for property online.
Visit our security centre to find out moreDisclaimer - Property reference 12935674. The information displayed about this property comprises a property advertisement. Rightmove.co.uk makes no warranty as to the accuracy or completeness of the advertisement or any linked or associated information, and Rightmove has no control over the content. This property advertisement does not constitute property particulars. The information is provided and maintained by Homewise, South East. Please contact the selling agent or developer directly to obtain any information which may be available under the terms of The Energy Performance of Buildings (Certificates and Inspections) (England and Wales) Regulations 2007 or the Home Report if in relation to a residential property in Scotland.
*This is the average speed from the provider with the fastest broadband package available at this postcode. The average speed displayed is based on the download speeds of at least 50% of customers at peak time (8pm to 10pm). Fibre/cable services at the postcode are subject to availability and may differ between properties within a postcode. Speeds can be affected by a range of technical and environmental factors. The speed at the property may be lower than that listed above. You can check the estimated speed and confirm availability to a property prior to purchasing on the broadband provider's website. Providers may increase charges. The information is provided and maintained by Decision Technologies Limited. **This is indicative only and based on a 2-person household with multiple devices and simultaneous usage. Broadband performance is affected by multiple factors including number of occupants and devices, simultaneous usage, router range etc. For more information speak to your broadband provider.
Map data ©OpenStreetMap contributors.





