
4 bedroom detached house for sale
Bark Lane, Addingham, Ilkley, West Yorkshire, LS29

- PROPERTY TYPE
Detached
- BEDROOMS
4
- BATHROOMS
2
- SIZE
2,381 sq ft
221 sq m
- TENUREDescribes how you own a property. There are different types of tenure - freehold, leasehold, and commonhold.Read more about tenure in our glossary page.
Freehold
Key features
- Impressive detached four bedroom family home with study and garden room
- Fabulous living dining kitchen with garden access
- High specification kitchen and bathrooms
- Principal bedroom with luxury ensuite
- Southerly facing rear garden
- Extensive off street parking and garage
- Sought after location close to village centre and open countryside
- Views of Beamsley Beacon and Addingham Moorside
Description
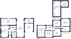
A very well presented and extended detached family home offering generous and well-planned accommodation arranged principally over two floors but with the added benefit of a good sized loft room.
The accommodation briefly includes a welcoming and spacious entrance hall with cloakroom WC, home office or play room, impressive through dining living kitchen with garden access and utility off, a fabulously light garden room enjoying the southerly aspect and formal sitting room with feature fireplace and woodburning stove. To the first floor there is a generous master bedroom with luxury ensuite, three further good sized bedrooms and a modern fitted house bathroom. From the landing there is drop down ladder providing access to the attic room.
To the outside there is an attractive foregarden featuring a lawned area and mature planted beds, and a gated driveway providing extensive off street parking and access to the garage. To the rear of the property are very pleasant and enclosed gardens that enjoy a good degree of privacy and a southerly aspect, and include lawn and paved seating areas as well as a raised deck seating area which opens to the living kitchen ideal for outdoor entertaining.
Addingham itself enjoys a beautiful setting in the heart of Wharfedale, a short drive from both the Yorkshire Dales National Park and the Victorian spa town of Ilkley. The village is home to a comprehensive range of everyday amenities including healthcare, local shops and a choice of popular pubs and restaurants. There are a number of sports clubs as well as a primary school and churches of a number of denominations. Countless footpaths provide an opportunity to explore the lovely surrounding countryside and the delightful river Wharfe.
Public transport connects Addingham with Ilkley, from where there are frequent rail services throughout the day into the local cities of Leeds and Bradford, with regular onwards connections from the former to London Kings Cross. The town is well known for its highly regarded shopping and comprehensive range of sporting and social amenities. Leeds Bradford International Airport is around 13 miles away.
Agent's Notes:
Tenure
Freehold
Local Authority & Coucil Tax Band
The City of Bradford Metropolitan District Council, Council Tax Band G.
Services
Mains electricity, water, drainage and gas are installed.
Parking
Garage and driveway parking with EV charging point.
Internet and Mobile Coverage
The Ofcom website shows internet available from at least 1 provider. Outdoor mobile coverage (excl 5G) likely from at least 1 of the UK’s 4 main providers. Results are predictions not a guarantee & may differ subject to circumstances, exact location & network outages
Flooding
Check for flooding in England - GOV.UK indicate the long term flood risks for this property are: - Surface Water - Very low; Rivers & the Sea - Very low; Groundwater - Flooding from groundwater is unlikely in this area; Reservoir - Flooding from reservoirs is unlikely in this area.
From Ilkley proceed to the foot of Addingham bypass and turn right towards the village, Turn right again, signposted towards Bolton Abbey and Burnsall. Proceed for ¾ of a mile and the property will be seen on the left hand side.
Brochures
Particulars- COUNCIL TAXA payment made to your local authority in order to pay for local services like schools, libraries, and refuse collection. The amount you pay depends on the value of the property.Read more about council Tax in our glossary page.
- Band: G
- PARKINGDetails of how and where vehicles can be parked, and any associated costs.Read more about parking in our glossary page.
- Garage,Driveway,EV charging
- GARDENA property has access to an outdoor space, which could be private or shared.
- Yes
- ACCESSIBILITYHow a property has been adapted to meet the needs of vulnerable or disabled individuals.Read more about accessibility in our glossary page.
- Ask agent
Bark Lane, Addingham, Ilkley, West Yorkshire, LS29
Add an important place to see how long it'd take to get there from our property listings.
__mins driving to your place
Get an instant, personalised result:
- Show sellers you’re serious
- Secure viewings faster with agents
- No impact on your credit score
Your mortgage
Notes
Staying secure when looking for property
Ensure you're up to date with our latest advice on how to avoid fraud or scams when looking for property online.
Visit our security centre to find out moreDisclaimer - Property reference CSC201470. The information displayed about this property comprises a property advertisement. Rightmove.co.uk makes no warranty as to the accuracy or completeness of the advertisement or any linked or associated information, and Rightmove has no control over the content. This property advertisement does not constitute property particulars. The information is provided and maintained by Dacre Son & Hartley, Ilkley. Please contact the selling agent or developer directly to obtain any information which may be available under the terms of The Energy Performance of Buildings (Certificates and Inspections) (England and Wales) Regulations 2007 or the Home Report if in relation to a residential property in Scotland.
*This is the average speed from the provider with the fastest broadband package available at this postcode. The average speed displayed is based on the download speeds of at least 50% of customers at peak time (8pm to 10pm). Fibre/cable services at the postcode are subject to availability and may differ between properties within a postcode. Speeds can be affected by a range of technical and environmental factors. The speed at the property may be lower than that listed above. You can check the estimated speed and confirm availability to a property prior to purchasing on the broadband provider's website. Providers may increase charges. The information is provided and maintained by Decision Technologies Limited. **This is indicative only and based on a 2-person household with multiple devices and simultaneous usage. Broadband performance is affected by multiple factors including number of occupants and devices, simultaneous usage, router range etc. For more information speak to your broadband provider.
Map data ©OpenStreetMap contributors.






