2 bedroom park home for sale
Manifold Road, Scunthorpe, DN16

- PROPERTY TYPE
Park Home
- BEDROOMS
2
- BATHROOMS
1
- SIZE
Ask agent
Key features
- Park Home
- Over 45's Only
- Virtual Freehold
- No Forward Chain
- 2 Bedrooms
Description
Bettermove are proud to present this 2 bedroom Park Home in Scunthorpe, welcoming over 45's only and available with no forward chain.
This property benefits from double glazing and LPG gas heating, with off road parking available next to the property.
This council tax band is A.
This is a Virtual Freehold property; with a monthly site fee of £189.00.
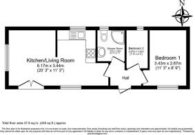
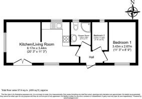
The interior of this beautifully presented property comprises a spacious, open plan living/kitchen area, shower room and two bedrooms. The exterior boasts a separate storage shed, and a small, raised patio, perfect for enjoying the summer months.
Located in the popular town of Scunthorpe, the property is close to a range of amenities, including shops, supermarkets, restaurants and pubs. Excellent transport links can be found from Scunthorpe Railway Station, a variety of local bus routes, and quick access to the M180.
This exciting opportunity should not be missed! All enquiries can be made through Bettermove.
-------------------------------------------------------------------------------------
Reserve It Now
Secure your property with a £1,000 exclusivity deposit.
It’s taken off the market, locked in for you, and returned to you on completion.
No risk of being gazumped. No wasted costs.
Talk to our team today about Exclusivity Deposits
-------------------------------------------------------------------------------------
Part Exchange Available
We can take your property in as part exchange, giving you a guaranteed buyer and a quicker, chain-free move.
Ask our team today about how our Part Exchange option can help you move with confidence.
Part Exchange subject to terms, valuation, and eligibility.
Building Safety
None
Mobile Signal
Very good
Construction Type
Brick, metal frame, windows, tiled roof, insulation, outer resin surface ?
Existing Planning Permission
None
Coalfield or Mining
None
Brochures
Brochure 1- COUNCIL TAXA payment made to your local authority in order to pay for local services like schools, libraries, and refuse collection. The amount you pay depends on the value of the property.Read more about council Tax in our glossary page.
- Band: A
- PARKINGDetails of how and where vehicles can be parked, and any associated costs.Read more about parking in our glossary page.
- Driveway
- GARDENA property has access to an outdoor space, which could be private or shared.
- Yes
- ACCESSIBILITYHow a property has been adapted to meet the needs of vulnerable or disabled individuals.Read more about accessibility in our glossary page.
- No wheelchair access
Energy performance certificate - ask agent
Manifold Road, Scunthorpe, DN16
Add an important place to see how long it'd take to get there from our property listings.
__mins driving to your place
Notes
Staying secure when looking for property
Ensure you're up to date with our latest advice on how to avoid fraud or scams when looking for property online.
Visit our security centre to find out moreDisclaimer - Property reference 29549535. The information displayed about this property comprises a property advertisement. Rightmove.co.uk makes no warranty as to the accuracy or completeness of the advertisement or any linked or associated information, and Rightmove has no control over the content. This property advertisement does not constitute property particulars. The information is provided and maintained by Bettermove, Nationwide. Please contact the selling agent or developer directly to obtain any information which may be available under the terms of The Energy Performance of Buildings (Certificates and Inspections) (England and Wales) Regulations 2007 or the Home Report if in relation to a residential property in Scotland.
*This is the average speed from the provider with the fastest broadband package available at this postcode. The average speed displayed is based on the download speeds of at least 50% of customers at peak time (8pm to 10pm). Fibre/cable services at the postcode are subject to availability and may differ between properties within a postcode. Speeds can be affected by a range of technical and environmental factors. The speed at the property may be lower than that listed above. You can check the estimated speed and confirm availability to a property prior to purchasing on the broadband provider's website. Providers may increase charges. The information is provided and maintained by Decision Technologies Limited. **This is indicative only and based on a 2-person household with multiple devices and simultaneous usage. Broadband performance is affected by multiple factors including number of occupants and devices, simultaneous usage, router range etc. For more information speak to your broadband provider.
Map data ©OpenStreetMap contributors.




