
Hobbs Square, Petersfield, Hampshire

- PROPERTY TYPE
Semi-Detached
- BEDROOMS
3
- BATHROOMS
2
- SIZE
797 sq ft
74 sq m
- TENUREDescribes how you own a property. There are different types of tenure - freehold, leasehold, and commonhold.Read more about tenure in our glossary page.
Freehold
Key features
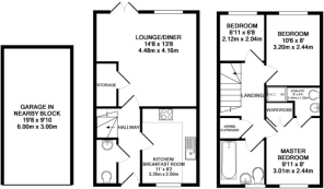
- Three bedroom semi-detached home located in Ramshill
- Kitchen/breakfast room
- Sitting/dining room
- Master bedroom with built-in wardrobe and ensuite shower room
- Two further bedrooms
- Enclosed garden mainly lawned with terrace
- Garage in block and parking to front of property
- Gas central heating & Double glazed windows
- No onward chain
Description
The area offers beautiful, open countryside and is popular with dog walkers, ramblers and cyclists and is in the centre of the South Downs National Park.
The house offers entrance hallway with cloakroom and stairs to first floor.
Modern fitted kitchen/breakfast room with integrated gas hob, electric oven and extractor hood. Space for washing machine, dishwasher and fridge/freezer. Space for table and chairs.
Large sitting room, large understairs storage cupboard, with French doors leading to enclosed garden with large lawned area and full width patio and gate leading to garage block.
On the first floor there is a good size master bedroom with built in wardrobe and three piece ensuite shower room. A further double bedroom with the third being a single room.
Three piece family bathroom suite.
Gas central heating - double glazed windows.
Garage in a nearby block with additional parking space in front. There is also two car parking spaces to the front of the property.
No onward chain.
Council Tax Band D - £2232pa. mains water, sewage, electricity and gas.
Viewings through the Landlords sole agent, Jacobs & Hunt, Petersfield.
WE ARE OPEN 7 DAYS A WEEK FOR YOUR VIEWING CONVENIENCE!
OFFER CHECK PROCEDURE
If you are considering making an offer on this or any other property, we are marketing at Jacobs & Hunt, please make early contact with the office so we are able to verify your buying position. Our sellers expect us to report on a buyer's proceedability whenever we submit an offer.
SOLICITOR
Choosing the right conveyancing solicitor is an important part of the buying process. At Jacobs & Hunt we have trusted solicitors we regularly refer our clients to, so if you'd like a recommendation just have a chat with one of the team and we'll be happy to help!
REMOVALS
At Jacobs & Hunt we want to make your move as stress-free as possible, which is why we can put you in touch with a reputable removal company. Just ask a member of the team for further details and a quotation.
ANTI-MONEY LAUNDERING (AML)
At Jacobs & Hunt we have a legal obligation to carry out Anti-Money Laundering checks on all prospective purchasers. It's a straightforward process that needs to be completed in branch, so just give the office a call and we'll get you booked in before putting your offer forward. We'll need two forms of ID from each purchaser - one to confirm your name and one to confirm your address. Please be aware that we aren't able to submit any offers until this has been done, but we'll make it as quick and easy as possible for you!
DISCLOSURE STATEMENT
These particulars are provided in good faith for general guidance purposes only and do not constitute statements of fact, nor do they form part of any offer or contract. Jacobs & Hunt strongly advise all prospective purchasers to carry out their own independent investigations and verifications in relation to all matters referred to within these details.
Brochures
(S2) 4-Page Lands...- COUNCIL TAXA payment made to your local authority in order to pay for local services like schools, libraries, and refuse collection. The amount you pay depends on the value of the property.Read more about council Tax in our glossary page.
- Band: D
- PARKINGDetails of how and where vehicles can be parked, and any associated costs.Read more about parking in our glossary page.
- Yes
- GARDENA property has access to an outdoor space, which could be private or shared.
- Yes
- ACCESSIBILITYHow a property has been adapted to meet the needs of vulnerable or disabled individuals.Read more about accessibility in our glossary page.
- Ask agent
Hobbs Square, Petersfield, Hampshire
Add an important place to see how long it'd take to get there from our property listings.
__mins driving to your place
Get an instant, personalised result:
- Show sellers you’re serious
- Secure viewings faster with agents
- No impact on your credit score



Your mortgage
Notes
Staying secure when looking for property
Ensure you're up to date with our latest advice on how to avoid fraud or scams when looking for property online.
Visit our security centre to find out moreDisclaimer - Property reference 103546001432. The information displayed about this property comprises a property advertisement. Rightmove.co.uk makes no warranty as to the accuracy or completeness of the advertisement or any linked or associated information, and Rightmove has no control over the content. This property advertisement does not constitute property particulars. The information is provided and maintained by Jacobs & Hunt Estate Agents, Petersfield. Please contact the selling agent or developer directly to obtain any information which may be available under the terms of The Energy Performance of Buildings (Certificates and Inspections) (England and Wales) Regulations 2007 or the Home Report if in relation to a residential property in Scotland.
*This is the average speed from the provider with the fastest broadband package available at this postcode. The average speed displayed is based on the download speeds of at least 50% of customers at peak time (8pm to 10pm). Fibre/cable services at the postcode are subject to availability and may differ between properties within a postcode. Speeds can be affected by a range of technical and environmental factors. The speed at the property may be lower than that listed above. You can check the estimated speed and confirm availability to a property prior to purchasing on the broadband provider's website. Providers may increase charges. The information is provided and maintained by Decision Technologies Limited. **This is indicative only and based on a 2-person household with multiple devices and simultaneous usage. Broadband performance is affected by multiple factors including number of occupants and devices, simultaneous usage, router range etc. For more information speak to your broadband provider.
Map data ©OpenStreetMap contributors.





