High street retail property for sale
43-45 High Street, Bromsgrove, Worcestershire, B61 8AJ
- SIZE
Ask agent
- SECTOR
High street retail property for sale
Description
**For Sale By Public Auction 12th February 2026 09:30 AM To inspect the legal documents for this property go to our website to download the legal pack**
A Freehold Mid Terrace Commercial Building Arranged to Provide A Ground Floor Retail Unit and Ancillary Space Above Part Let Producing £12,500 Per Annum. Potential for Development (Subject to Obtaining all Relevant Consents)
Location
The property is situated on a pedestrianised road close to local shops and amenities. The open spaces of Sanders Park are within easy reach. Transport links are provided by Bromsgrove rail station.
Description
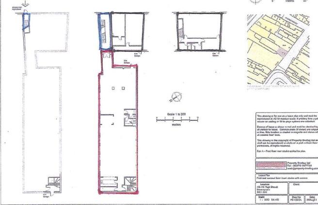
The property comprises a mid terrace building arranged to provide ground floor retail unit and ancillary space above.
Accommodation & Tenancy Schedule
| Floor | Accommodation | Tenancy | Current Annual Rent |
| Ground | Retail Unit G.I.A Approx 370 sq m | Vacant | N/A |
| First and Second Floor Front 43-45 High Street | Ancillary Space G.I.A Approx 130 sq m | Vacant | N/A |
| First Floor Rear 43/45 High Street | Ancillary Space G.I.A Approx 254 sq m | Periodic Tenancy in Occupation for circa 10 years | £12,500 |
Viewing Schedule (No Booking Required)
Thursday 5 February 11:00 - 11:30
Tuesday 10 February 11:00 - 11:30
Brochures
43-45 High Street, Bromsgrove, Worcestershire, B61 8AJ
NEAREST STATIONS
Distances are straight line measurements from the centre of the postcode- Bromsgrove Station1.0 miles
- Barnt Green Station3.4 miles
- Alvechurch Station4.0 miles
Notes
Disclaimer - Property reference 320602. The information displayed about this property comprises a property advertisement. Rightmove.co.uk makes no warranty as to the accuracy or completeness of the advertisement or any linked or associated information, and Rightmove has no control over the content. This property advertisement does not constitute property particulars. The information is provided and maintained by Auction House London, London. Please contact the selling agent or developer directly to obtain any information which may be available under the terms of The Energy Performance of Buildings (Certificates and Inspections) (England and Wales) Regulations 2007 or the Home Report if in relation to a residential property in Scotland.
Auction Fees: The purchase of this property may include associated fees not listed here, as it is to be sold via auction. To find out more about the fees associated with this property please call Auction House London, London on 020 7870 6217.
*Guide Price: An indication of a seller's minimum expectation at auction and given as a Guide Price or a range of Guide Prices. This is not necessarily the figure a property will sell for and is subject to change prior to the auction.
Reserve Price: Each auction property will be subject to a Reserve Price below which the property cannot be sold at auction. Normally the Reserve Price will be set within the range of Guide Prices or no more than 10% above a single Guide Price.
Map data ©OpenStreetMap contributors.




