Beaufort Road, Tredegar

- PROPERTY TYPE
Semi-Detached
- BEDROOMS
4
- BATHROOMS
2
- SIZE
Ask agent
- TENUREDescribes how you own a property. There are different types of tenure - freehold, leasehold, and commonhold.Read more about tenure in our glossary page.
Freehold
Key features
- Beautifully Presented Four Bedroom Family Home
- Impressive Open Plan Kitchen / Dining / Family Area
- High Specification With A Quality Finish
- Master Bedroom With Ensuite And Juliette Balcony
- Two Reception Rooms, One With Feature Log-Burner
- South-East Facing Landscaped Garden
- First Floor Family Bathroom | Ground Floor W/C
- Good Transport Links | Close To All Amenities
- Off-Road Parking Available
- EPC: C | Tenure: Freehold | Council Tax: C
Description
Step inside to discover an impressive open plan kitchen/diner/family area - the true heart of the home. Featuring a sleek central island perfect for casual dining and socialising, this bright contemporary kitchen is fitted with granite worktops and a range of integrated appliances. The ground floor further benefits from a cloakroom and two separate reception rooms, offering flexible living options - whether you prefer a formal lounge, cosy snug, home office, or playroom.
Ascend to the upper levels, where the master bedroom awaits on the top floor, providing a peaceful retreat with a luxurious en-suite bathroom and a beautiful Juliette balcony overlooking the garden. The remaining three well-proportioned bedrooms offer ample space for family, guests, or a growing household, all complemented by a contemporary family bathroom suite.
Outside, the front garden is neatly laid to lawn with a paved side access adding practicality. The highlight is the rear south-east facing garden, beautifully landscaped for year-round enjoyment; an artificial lawn ensures evergreen appeal with minimum upkeep, leading to a raised patio ideal for al-fresco dining and soaking up the sun. Completing the garden is a wooden garden room. Beyond the fence lies convenient off-road parking available on a first-come, first-served basis.
SITUATION
Step outside, and you are ideally located in a popular residential area between the towns of Tredegar and Ebbw Vale, yet within close proximity to Sirhowy Woodlands; popular with walkers and nature lovers alike. Tredegar is located in the Upper Sirhowy Valley in the heart of South East Wales. Steeped in natural history and surrounded by natural beauty, it offers great outdoor spaces to discover and enjoy. The popular Bedwellty Park and Bryn Bach Park are a short distance away and the famous Brecon Beacons (Bannau Brycheiniog) and all the beauty this has to offer is within half hour drive. It is well served by schools for all ages at both primary and secondary level.
For commuters, Tredegar is conveniently situated just off the A465 Heads of the Valley link road, providing easy access to Cardiff (approx. 23 miles), Swansea (approx. 40 miles) and beyond. The nearby train stations in Ebbw Vale and Rhymney offer regular direct routes to the city of Cardiff within an hour.
ADDITIONAL INFORMATION
EPC Rating | C
Council Tax Band | C (at the date the property was listed)
Tenure | We are informed that the property is Freehold. Intending purchasers should make their own enquiries via their solicitors.
Local Authority | Blaenau Gwent County Council
Services | We understand that the property is connected to mains gas, electricity, water, and drainage.
AGENTS NOTE
Consumer Protection from Unfair Trading Regulations 2008
Whilst every effort has been made to ensure accuracy, these sales particulars must not be relied upon. Please note that we have not tested any apparatus, fixtures, fittings, or services. Interested parties must undertake their own investigation into the working order of these items. All measurements are approximate and photographs provided for guidance only and it must not be inferred that any item shown is included with the property.
Viewing | Strictly by appointment with the agents - Greg Roberts and Co
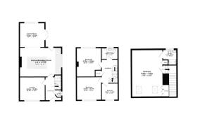
Entrance
Composite and obscured double-glazed door into Entrance Hall.
Entrance Hall
3.10m Max x 1.20m Max (10' 2" Max x 3' 11" Max)
Porcelain tiled flooring, smooth ceiling, radiator, white gloss door to WC, white gloss and glazed door to Lounge, white gloss and glazed door to Kitchen/Diner, white gloss door to useful under stairs storage cupboard, carpeted stairs to first floor.
WC
1.00m x 0.90m (3' 3" x 2' 11")
Tiled flooring, part tiled walls, smooth ceiling with spotlights, WC, wash hand basin with vanity unit, uPVC and obscured double-glazed window to side.
Lounge
3.61m x 3.38m (11' 10" x 11' 1")
Carpet as laid, smooth ceiling, radiator, uPVC and double-glazed window to front.
Kitchen / Diner
6.19m x 4.18m (20' 4" x 13' 9")
Porcelain tiled flooring, smooth ceiling with spotlights, range of dark blue base and wall units, large central island with seating for 6+, plus storage and wine fridge, space for range cooker, integrated dishwasher, integrated washing machine, integrated microwave, space for American fridge-freezer, radiator, uPVC and obscured double-glazed door to rear, uPVC and double-glazed window to side.
Family Room
3.51m x 3.45m (11' 6" x 11' 4")
Porcelain tiled flooring, smooth ceiling, log burner, radiator, uPVC and double-glazed window to rear, uPVC and double-glazed patio doors to side.
Landing
Carpet as laid, smooth ceiling with spotlights, radiator, white gloss door to Bathroom, white gloss door to Bedrooms, white gloss door to storage cupboard, carpeted stairs to second floor.
Family Bathroom
3.60m x 1.60m (11' 10" x 5' 3")
Porcelain tiled flooring, porcelain tiled walls, smooth ceiling with spotlights, extractor fan, panel-enclosed bath with mains shower over, wash hand basin with vanity unit, WC, radiator, chrome vertical towel radiator. uPVC and obscured double glazed window to rear.
Bedroom 1
3.72m x 3.65m (12' 2" x 12' 0")
Carpet as laid, smooth ceiling, radiator, uPVC and double-glazed window to rear.
Bedroom 2
3.62m x 3.37m (11' 11" x 11' 1")
Carpet as laid, smooth ceiling, radiator, uPVC and double-glazed window to front.
Bedroom 3
2.45m x 2.40m (8' 0" x 7' 10")
Carpet as laid, smooth ceiling, radiator, uPVC and double-glazed window to front.
Master Bedroom
5.39m x 3.56m (17' 8" x 11' 8")
Carpet as laid, smooth ceiling with spotlights, 2x Velux windows to front, built-in storage cupboard plus under-eaves storage, white vertical radiator, white gloss door to Ensuite, 2x uPVC and double-glazed doors to Juliette Balcony.
En Suite
2.20m x 1.80m (7' 3" x 5' 11")
Porcelain tiled flooring, porcelain tiled walls, smooth ceiling, extractor fan, double shower enclosure with mains shower over, wash hand basin with vanity unit beneath, WC, white vertical radiator, uPVC and obscured double-glazed window to rear.
Rear Garden
Paved patio seating area with steps leading to artificial lawn and further porcelain tiled seating area. Garden Room. Gated access to rear lane.
Front of property
Patio steps leading to front entrance flanked with lawn, all within boundary fencing and mature hedges.
Brochures
Brochure- COUNCIL TAXA payment made to your local authority in order to pay for local services like schools, libraries, and refuse collection. The amount you pay depends on the value of the property.Read more about council Tax in our glossary page.
- Band: C
- PARKINGDetails of how and where vehicles can be parked, and any associated costs.Read more about parking in our glossary page.
- Yes
- GARDENA property has access to an outdoor space, which could be private or shared.
- Yes
- ACCESSIBILITYHow a property has been adapted to meet the needs of vulnerable or disabled individuals.Read more about accessibility in our glossary page.
- Ask agent
Beaufort Road, Tredegar
Add an important place to see how long it'd take to get there from our property listings.
__mins driving to your place
Get an instant, personalised result:
- Show sellers you’re serious
- Secure viewings faster with agents
- No impact on your credit score
Your mortgage
Notes
Staying secure when looking for property
Ensure you're up to date with our latest advice on how to avoid fraud or scams when looking for property online.
Visit our security centre to find out moreDisclaimer - Property reference PRA11098. The information displayed about this property comprises a property advertisement. Rightmove.co.uk makes no warranty as to the accuracy or completeness of the advertisement or any linked or associated information, and Rightmove has no control over the content. This property advertisement does not constitute property particulars. The information is provided and maintained by Greg Roberts and Co, Tredegar. Please contact the selling agent or developer directly to obtain any information which may be available under the terms of The Energy Performance of Buildings (Certificates and Inspections) (England and Wales) Regulations 2007 or the Home Report if in relation to a residential property in Scotland.
*This is the average speed from the provider with the fastest broadband package available at this postcode. The average speed displayed is based on the download speeds of at least 50% of customers at peak time (8pm to 10pm). Fibre/cable services at the postcode are subject to availability and may differ between properties within a postcode. Speeds can be affected by a range of technical and environmental factors. The speed at the property may be lower than that listed above. You can check the estimated speed and confirm availability to a property prior to purchasing on the broadband provider's website. Providers may increase charges. The information is provided and maintained by Decision Technologies Limited. **This is indicative only and based on a 2-person household with multiple devices and simultaneous usage. Broadband performance is affected by multiple factors including number of occupants and devices, simultaneous usage, router range etc. For more information speak to your broadband provider.
Map data ©OpenStreetMap contributors.





