Plot for sale
Plymouth, Plymbridge Road, PL6 7LF - Prime Residential Development Site For 4 Large Detached Dwellings
- SIZE
Ask agent
- SECTOR
Plot for sale
Key features
- Full Planning Permission Ref: 25/00158/FUL - dated 14 October 2025
- Approximately 2 acres / 0.8 hectares
- Urban fringe location, woodland setting with amenity land
- Offers Invited in Excess of £550,000
Description
KLP are delighted to offer this urban fringe site in a woodland setting with full planning permission for four new large detached dwellings, located on the north side of Plymbridge Road B3432), just west of Darklake View.
The site area for sale (red and blue outlined areas on the Site Location Plan below), extends to approximately 2 acres/0.8 hectares and comprises two distinct parcels; the approximate southern half forms the planning application area including the existing access road (shared with the property known as Holtwood) serving the proposed four detached dwelling plots, whilst the approximate northern half is amenity woodland. The land slopes from south down to north and abuts existing residential dwellings to the west, further woodland beyond the north boundary, low rise commercial offices to the east beyond the established wooded boundary, whilst to the south is Plymbridge Road. A Tree Preservation Order covers trees both on the site and we understand adjacent trees.
The existing single garage inside the site area immediately north of Holtwood is not included in the sale, rights to access it will be retained.
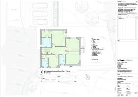
The approved dwellings are all 4 bedroom contemporary designed units ranging in size from 1900sqft to 2255sqft (including garages for Plots 1,2 & 3).
PLYMOUTH - PL6 7LF
Located in the Derriford and Estover area of northern Plymouth, approx. 6 miles from the city centre, the PL6 7LF area offers a range of amenities include the Derriford Retail Park including an Aldi, M&S Food, and Pure Gym. Nearby major supermarkets include Asda at Estover and Tesco Superstore at Transit Way. Local schools include Thornbury Primary School and Tor Bridge High School. The area is a major healthcare centre, with Derriford Hospital nearby.
A regular bus service serves the local area and Plymouth city centre.
PLANNING & TECHNICAL
Plymouth City Council (PCC) granted planning permission under application 25/00158/FUL dated 14 October 2025, proposed 4 new dwellings, land adjacent Holtwood, Plymbridge Road, Plymouth, PL6 7LF.
No S.106 Agreement is applicable to this planning permission.
PCC advise on the Planning Decision Notice that this development will attract an obligation to pay a financial levy under the Community Infrastructure Levy Regulations 2010 (as amended).
A Planning & Technical information pack is available from KLP on request, supplied via a Drop Box link.
METHOD OF SALE
The land is owned by Turnkey Developments SW Ltd (Company number: 13247416). Our clients are selling Turnkey Developments SW Ltd.
Offers Invited in Excess of £550,000
VIEWING
what3words: beats.slices.crab
Viewing by appointment - Please contact the sole agents KLP to arrange
Brochures
Plymouth, Plymbridge Road, PL6 7LF - Prime Residential Development Site For 4 Large Detached Dwellings
NEAREST STATIONS
Distances are straight line measurements from the centre of the postcode- Plymouth Station3.6 miles
- Bere Ferrers Station4.1 miles
- St. Budeaux Ferry Road Station4.0 miles
Notes
Disclaimer - Property reference 783DH. The information displayed about this property comprises a property advertisement. Rightmove.co.uk makes no warranty as to the accuracy or completeness of the advertisement or any linked or associated information, and Rightmove has no control over the content. This property advertisement does not constitute property particulars. The information is provided and maintained by KLP, Exeter. Please contact the selling agent or developer directly to obtain any information which may be available under the terms of The Energy Performance of Buildings (Certificates and Inspections) (England and Wales) Regulations 2007 or the Home Report if in relation to a residential property in Scotland.
Map data ©OpenStreetMap contributors.





