
Nova Scotia Farm, Jack Chase Way, Caister-On-Sea, NR30 5SH

- PROPERTY TYPE
Detached
- BEDROOMS
3
- SIZE
Ask developer
- TENUREDescribes how you own a property. There are different types of tenure - freehold, leasehold, and commonhold.Read more about tenure in our glossary page.
Freehold
Key features
- Modern open plan kitchen/dining room
- Spacious living room
- French doors leading from the living room into garden
- Downstairs WC
- Separate utility room with outside access
- Bedroom 1 with en suite
- Energy efficient
Description
The Barnwood is a good-looking double-fronted detached home that will catch your eye if you are looking for more space for your growing family. Or maybe you want to downsize, but still have room for friends and family to stay. Either way, this could be the ideal place to call home. Two sociable living spaces, three bedrooms and two bathrooms will certainly help you to do that.
Additional Information
- Tenure: Freehold
- Council tax band: Not made available by local authority until post-occupation
Parking - Single Garage
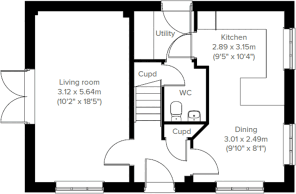
Room Dimensions
- Living room - 3.12 x 5.64 metre
- Kitchen - 2.89 x 3.15 metre
- Dining - 3.01 x 2.49 metre
- Bedroom One - 3.17 x 3.69 metre
- Bedroom Two - 4.01 x 2.91 metre
- Bedroom Three - 2.97 x 2.64 metre
- COUNCIL TAXA payment made to your local authority in order to pay for local services like schools, libraries, and refuse collection. The amount you pay depends on the value of the property.Read more about council Tax in our glossary page.
- Ask developer
- PARKINGDetails of how and where vehicles can be parked, and any associated costs.Read more about parking in our glossary page.
- Yes
- GARDENA property has access to an outdoor space, which could be private or shared.
- Yes
- ACCESSIBILITYHow a property has been adapted to meet the needs of vulnerable or disabled individuals.Read more about accessibility in our glossary page.
- Ask developer
Energy performance certificate - ask developer
Nova Scotia Farm, Jack Chase Way, Caister-On-Sea, NR30 5SH
Add an important place to see how long it'd take to get there from our property listings.
__mins driving to your place
Get an instant, personalised result:
- Show sellers you’re serious
- Secure viewings faster with agents
- No impact on your credit score
About Persimmon Homes Anglia
Welcome to Caister-on-Sea – modern new houses for sale, Caister-on-Sea
Discover Mulberry Park on the edge of Caister-on-Sea, a beautiful collection of three and four-bedroom homes in the much-loved coastal village of Caister-on-Sea. Designed for comfort and energy efficiency, these modern homes sit close to golden sands and the open Norfolk landscape, offering the perfect blend of sun, sea and style.
Stylish new build homes in Caister-on-Sea
Mulberry Park mixes generous green spaces, play areas, and wide-open skies into everyday life. Its fantastic location is within walking distance of the beach, ideal for families seeking space to grow in a place that feels magical all year round.
New build homes with excellent transport links to Great Yarmouth and Norwich
Great Yarmouth is just a short trip from Mulberry Park, giving you quick access to its bustling centre and train station. There are main road connections along the Norfolk coastline giving easy access throughout the region and into Norwich.
Everything you need on your doorstep
Caister-on-Sea is a welcoming, well-established community with local shops, cosy cafés, everyday essentials and schools all close by. With Great Yarmouth Retail Park and supermarkets just minutes away, day‑to‑day living feels simple and connected.
Explore the outdoors in Caister-on-Sea
From shoreline strolls to bracing coastal paths, Mulberry Park places nature right at your feet. Enjoy uplifting sea air, panoramic views and moments of calm, an easy, everyday escape from the rush of modern life.
Ready to make your move?
To explore our new houses for sale in Caister-on-Sea and start your new build journey, speak to one of our friendly sales advisors today.
This development offers the following schemes:
- New Build Boost
- Deposit Boost: 5% Deposit Contribution Scheme
- Part Exchange your home
- Own New Rate Reducer Scheme
- Home Change
- Armed Forces, Key Workers & NHS Discount Scheme
Schemes are available on selected plots only, subject to status, terms and conditions apply. Contact the development for latest information.
Affordability
Notes
Staying secure when looking for property
Ensure you're up to date with our latest advice on how to avoid fraud or scams when looking for property online.
Visit our security centre to find out moreDisclaimer - Property reference 3_112. The information displayed about this property comprises a property advertisement. Rightmove.co.uk makes no warranty as to the accuracy or completeness of the advertisement or any linked or associated information, and Rightmove has no control over the content. This property advertisement does not constitute property particulars. The information is provided and maintained by Persimmon Homes Anglia. Please contact the selling agent or developer directly to obtain any information which may be available under the terms of The Energy Performance of Buildings (Certificates and Inspections) (England and Wales) Regulations 2007 or the Home Report if in relation to a residential property in Scotland.
*This is the average speed from the provider with the fastest broadband package available at this postcode. The average speed displayed is based on the download speeds of at least 50% of customers at peak time (8pm to 10pm). Fibre/cable services at the postcode are subject to availability and may differ between properties within a postcode. Speeds can be affected by a range of technical and environmental factors. The speed at the property may be lower than that listed above. You can check the estimated speed and confirm availability to a property prior to purchasing on the broadband provider's website. Providers may increase charges. The information is provided and maintained by Decision Technologies Limited. **This is indicative only and based on a 2-person household with multiple devices and simultaneous usage. Broadband performance is affected by multiple factors including number of occupants and devices, simultaneous usage, router range etc. For more information speak to your broadband provider.
Map data ©OpenStreetMap contributors.






