
Land for sale
Slaney Street, Oakengates, Telford
- PROPERTY TYPE
Land
- SIZE
6,534 sq ft
607 sq m
Description
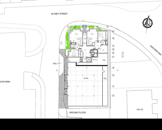
Full planning consent for 10 Apartments & 1 Retail Unit
For Sale By Auction at 6.30 pm on Monday 9th March 2026
at the Double Tree By Hilton Hotel, Festival Park, Stoke-on-Trent, ST1 5BQ
Contact the Auction Team to Register: or
Description - This site comprises of 2 x 2 bedroom semi- detached houses that sit on a parcel of land measuring 0.15 acre.
The land has full planning permission for "Demolition of existing 2no. dwellings and erection of 10no. apartments and 1no. retail unit".
There may be potential for alternative uses subject to the necessary planning permission and consents. It is important that prospective purchasers ensure they have inspected the site and rely upon their own enquiries, assessments and due diligence with regards to its current and potential uses.
Location - The land & property is conveniently positioned within a well-established residential area of Telford, offering excellent access to local amenities and transport links. The property is within easy reach of a range of everyday amenities including local shops, supermarkets, schools and leisure facilities, with Telford Town Centre providing a wider selection of retail, dining and entertainment options just a short drive away. Road connectivity is strong, with the A442 and A5 nearby, providing direct routes to the M54 motorway and onward links to the M6, making the location ideal for commuters travelling across the Midlands. Rail services are easily accessible from Telford Central and Wellington stations, both offering regular services to Birmingham, Wolverhampton and Shrewsbury.
Planning & Supporting Information. - The site benefits from full planning consent for "Demolition of existing 2no. dwellings and erection of 10no. apartments and 1no. retail unit" dated 20 August 2024 which was granted on appeal (Ref; APP/C3240/W/24/3341621). A full info pack is available on request which includes the following:
- Approved plans
- Appeal Documents
- Photos
- Comparable Evidence
NB: Whilst BJB will try and supply as much information as we can about the planning status of the land / property, please be mindful that we are not planning consultants and accordingly it is important that prospective purchasers ensure they have inspected the land / property and rely upon their own enquiries, assessments and due diligence with regards to the planning status and current or potential uses. All information is supplied in good faith and BJB cannot be held liable for any errors or omissions.
Accommodation & Gdv - The proposed scheme comprises the following:
Apartment 1 - 1b2p - 67 sq.m / 717 sq.ft
Est. £120,000 & £750 pcm
Apartment 2 - 1b2p - 52 sq.m / 559 sq.ft
Est. £120,000 & £750 pcm
Apartment 3 - 2b4p - 77 sq.m / 830 sq.ft
Est. £150,000 & £900 pcm
Apartment 4 - 1b2p - 52 sq.m / 559 sq.ft
Est. £120,000 & £750 pcm
Apartment 5 - 1b2p - 59 sq.m / 637 sq.ft
Est. £120,000 & £750 pcm
Apartment 6 - 2b4p - 75 sq.m / 808 sq.ft
Est. £150,000 & £900 pcm
Apartment 7 - 2b4p - 77 sq.m / 830 sq.ft
Est. £150,000 & £900 pcm
Apartment 8 - 1b2p - 48 sq.m / 517 sq.ft
Est. £120,000 & £750 pcm
Apartment 9 - 1b2p - 59 sq.m / 637 sq.ft
Est. £120,000 & £750 pcm
Apartment 10 - 2b4p - 75 sq.m / 808 sq.ft
Est. £150,000 & £900 pcm
Retail - 309 sq.m / 3834 sq.ft
Amenity - 168 sq.m / 1813 sq.ft
Any sizes / values quoted by BJB are correct to the best of our knowledge, however we would recommended all interest parties carry out their own checks before relying on any information provided.
Local Council - The site is located in the Council district of Telford and Wrekin
Tenure. - Freehold with vacant possession upon completion.
Vat - All prices quoted by Butters John Bee are exclusive of VAT unless otherwise stated. All interested parties should make their own enquiries to satisfy themselves with the VAT position.
Common Auction Conditions. - This property is sold subject to our Common Auction Conditions (a copy is available on request).
Buyers Admin Fee. - A buyers administration fee of £1,800 including VAT is applicable to this lot. The purchaser will pay the fee whether the property is bought before, at or following the auction date.
Legal Pack. - Purchasing a property at auction is a firm commitment that carries the same legal implications as a signed contract by private treaty. It is important that you consult with your legal adviser before bidding and also your accountant regarding the impact of VAT, if applicable, on the sale price. The legal pack can be viewed online via our website Legal packs can also be viewed at the selling office. These documents should be passed to your legal adviser as they will help you make an informed decision about the lot. If you need further legal information please contact the vendor's solicitor whose details will be in the auction catalogue. Remember that you buy subject to all documentation and terms of contract whether or not you have read them.
Addendum. - Check the latest addendum at buttersjohnbee.com for any alterations or changes to the catalogue.
Internet, Telephone And Proxy Bidding - We are pleased to announce that we are now back in the Auction room at the Double Tree Hilton Hotel (Moat House). However, we also have the other bidding options available: On-Line / Telephone / By-Proxy. You will need to register in advance and provide two forms of ID. Register at or contact the Auction Team on or .
Legal Costs - Please refer to the auction pack in respect of any legal fees or search fees which may be due upon exchange or completion.
Deposit - Please note that a deposit of 10% of the purchase price (Min £3,000) will be due on Exchange of Contracts, whether the land / property is sold prior to Auction, in the Auction room or after the Auction.
Viewings - The site can be inspected from the Public Highway – no appointment is necessary.
All Enquiries - Alex Djukic BSc MSc
Regional Land Manager
Land & New Homes Team
residential-
Joe Boulton
Assistant Land Manager
Land & New Homes Team
residential-
Looking For Land & Development Opportunities? - Please note that not all land & development opportunities will appear on our website. To ensure that you do not miss out on these opportunities please e-mail: residential- or call the Land & New Homes team to discuss your requirements.
Brochures
Slaney Street, Oakengates, TelfordBrochureSlaney Street, Oakengates, Telford
NEAREST STATIONS
Distances are straight line measurements from the centre of the postcode- Oakengates Station0.3 miles
- Telford Central Station1.2 miles
- Wellington Station2.8 miles
Notes
Disclaimer - Property reference 34419571. The information displayed about this property comprises a property advertisement. Rightmove.co.uk makes no warranty as to the accuracy or completeness of the advertisement or any linked or associated information, and Rightmove has no control over the content. This property advertisement does not constitute property particulars. The information is provided and maintained by Butters John Bee Land, Stoke-on-Trent. Please contact the selling agent or developer directly to obtain any information which may be available under the terms of The Energy Performance of Buildings (Certificates and Inspections) (England and Wales) Regulations 2007 or the Home Report if in relation to a residential property in Scotland.
Auction Fees: The purchase of this property may include associated fees not listed here, as it is to be sold via auction. To find out more about the fees associated with this property please call Butters John Bee Land, Stoke-on-Trent on 01782 493945.
*Guide Price: An indication of a seller's minimum expectation at auction and given as a Guide Price or a range of Guide Prices. This is not necessarily the figure a property will sell for and is subject to change prior to the auction.
Reserve Price: Each auction property will be subject to a Reserve Price below which the property cannot be sold at auction. Normally the Reserve Price will be set within the range of Guide Prices or no more than 10% above a single Guide Price.
Map data ©OpenStreetMap contributors.






