
1 bedroom flat for rent
The Pollards, Bourne

Letting details
- Let available date:
- 09/03/2026
- Deposit:
- £865A deposit provides security for a landlord against damage, or unpaid rent by a tenant.Read more about deposit in our glossary page.
- Min. Tenancy:
- Ask agent How long the landlord offers to let the property for.Read more about tenancy length in our glossary page.
- Let type:
- Long term
- Furnish type:
- Unfurnished
- Council Tax:
- Ask agent
- PROPERTY TYPE
Flat
- BEDROOMS
1
- BATHROOMS
1
- SIZE
Ask agent
Key features
- Top Floor purpose built flat
- Kitchen/Diner opening into Living Room Beyond
- Double Bedroom
- Separate Shower Room
- Allocated Parking to Rear for 1 Car
- Modern Electric Heating System
- Please see Key Facts for Tenants for Material Information Disclosures
Description
Entering this modern property to the front, via a communal entrance, the stairways lead to the private front door to the property itself. Inside there is a good sized hallway, with large storage cupboards, a kitchen/dining room opening into the living room beyond, a double bedroom and separate shower room. The property also benefits from electric heating and double glazing.
The Pollards forms part of the ever popular Elsea Park development on the outskirts of the thriving market Town of Bourne. Offering easy access to all the Towns local amenities as well as onward transport links in nearby Peterborough this property really is ideally situated. Single Allocated parking space.
Agents Note:
Holding Deposit - £173
Security Deposit – £865
Local Authority – South Kesteven District Council
Council Tax Band – A
EPC Rating - D
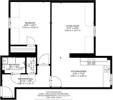
Entrance Hall -
Kitchen/Diner - 15' 9'' x 7' 10'' (4.80m x 2.39m) -
Living Room - 11' 4'' x 14' 8'' (3.45m x 4.47m) -
Bedroom - 10' 8'' x 16' 7'' (3.25m x 5.05m) max -
Shower Room -
Sizes and dimensions are calculated using a laser measuring modelling device and as such whilst representative it must be noted that they are all approximate, actual sizes may vary.
Brochures
The Pollards, BourneKey Facts for Tenants (Material Information DiscloBrochure- COUNCIL TAXA payment made to your local authority in order to pay for local services like schools, libraries, and refuse collection. The amount you pay depends on the value of the property.Read more about council Tax in our glossary page.
- Band: A
- LISTED PROPERTYA property designated as being of architectural or historical interest, with additional obligations imposed upon the owner.Read more about listed properties in our glossary page.
- Listed
- PARKINGDetails of how and where vehicles can be parked, and any associated costs.Read more about parking in our glossary page.
- Yes
- GARDENA property has access to an outdoor space, which could be private or shared.
- Ask agent
- ACCESSIBILITYHow a property has been adapted to meet the needs of vulnerable or disabled individuals.Read more about accessibility in our glossary page.
- Ask agent
The Pollards, Bourne
Add an important place to see how long it'd take to get there from our property listings.
__mins driving to your place



Notes
Staying secure when looking for property
Ensure you're up to date with our latest advice on how to avoid fraud or scams when looking for property online.
Visit our security centre to find out moreDisclaimer - Property reference 34419870. The information displayed about this property comprises a property advertisement. Rightmove.co.uk makes no warranty as to the accuracy or completeness of the advertisement or any linked or associated information, and Rightmove has no control over the content. This property advertisement does not constitute property particulars. The information is provided and maintained by Goodwin Property Services, Stamford. Please contact the selling agent or developer directly to obtain any information which may be available under the terms of The Energy Performance of Buildings (Certificates and Inspections) (England and Wales) Regulations 2007 or the Home Report if in relation to a residential property in Scotland.
*This is the average speed from the provider with the fastest broadband package available at this postcode. The average speed displayed is based on the download speeds of at least 50% of customers at peak time (8pm to 10pm). Fibre/cable services at the postcode are subject to availability and may differ between properties within a postcode. Speeds can be affected by a range of technical and environmental factors. The speed at the property may be lower than that listed above. You can check the estimated speed and confirm availability to a property prior to purchasing on the broadband provider's website. Providers may increase charges. The information is provided and maintained by Decision Technologies Limited. **This is indicative only and based on a 2-person household with multiple devices and simultaneous usage. Broadband performance is affected by multiple factors including number of occupants and devices, simultaneous usage, router range etc. For more information speak to your broadband provider.
Map data ©OpenStreetMap contributors.





