
Land for sale
Cotterells, Hemel Hempstead, HP1
- PROPERTY TYPE
Land
- SIZE
Ask agent
Description
Property description
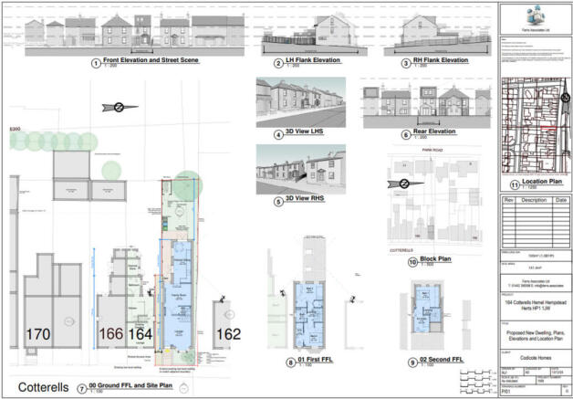
A rectangular site between two residential properties with planning permission for a detached three storey three bedroom property of approximately 1,056 sq.ft
Location
Hemel Hempstead is a popular Hertfordshire town with excellent rail and road links to London and the surrounding area. Accessed via the A414 and benefitting from being on junction 8 of the M1 motorway, the A41 also runs alongside the west side of town giving easy access to the M25 motorway. There is a mainline station giving direct access to London Euston (c.28 minutes). Cotterells runs parrallel with Leighton Buzzard Road close to the junction with Station Road. Shopping amenities are at the nearby The Marlowe's Shopping Centre.
Planning
Plans have been submitted to Dacorum Borough Council under ref 25/01093/FUL and approved on 26th November 2025for a three floor three bedroom property. Copies of the plans are available in the legal documents. Prospective purchasers must rely on their own enquiries with Dacorum Borough Council.
Auction link -
*Terms & Conditions
Buyers are strongly advised to read these terms and conditions, and check the Special Conditions and any applicable Addendum, prior to bidding on a Lot. Additional costs, charges and encumbrances may apply for Buyers once they have made a successful bid in relation to a property.
The reserve price is the minimum price at which the property can be sold at auction.
Where a guide price (or range of prices) is given, that guide is the minimum price at which, or range of prices within which, the seller may be prepared to sell on the date on which the guide price, or range of prices, is published. The sale price, whether prior to or at the auction, can be above or below the guide price depending upon market activity. BidX1 and the seller accept no responsibility for any losses, costs or damages incurred by a buyer as a result of relying on any guide price. The buyer must decide how much they should bid for any Lot. All guide prices are quoted subject to contract. Guide prices given by BidX1 or the seller cannot be accepted by the buyer as being a professional valuation for any purpose in accordance with the requirements or guidance notes of relevant professional bodies or other authorities.
Both the guide price and the reserve price may be subject to change up to and including the day of the auction. Whilst every effort is made to ensure that these guides are not misleading, it is possible that the reserve price set for any Lot may exceed the previously quoted guide price (as the seller may fix the final reserve price just before bidding commences).
The guide price for the Lot does not include the buyer’s fee of £1,295 (inclusive of VAT) for all properties up to £49,999, and £2,400 (inclusive of VAT) for all properties £50,000 and above charged by BidX1. In the case of a joint agent this buyer’s fee will be £2,700 (inclusive of VAT). In addition, the guide price does not include VAT on the sale price, or any additional costs, charges or encumbrances that might apply to some Lots and/or some buyers. The Special Conditions of Sale of the seller, and any applicable Addendum, will state if there are other costs, charges or encumbrances and whether the seller has elected to charge VAT on the sale price.
To participate in the sale BidX1 must hold a minimum amount from all bidders. This participation amount and buyer’s fee is fully refundable in the event that you are not the successful purchaser. For example, a participation fee of £4,795 comprises £3,500 relating to your bidder security (partial deposit payment) and a buyer’s fee payable directly to BidX1. A higher participation amount may be payable depending on the reserve price of the Lot.
Please note that Lots may be sold or withdrawn prior to auction.
All Lots sold “Subject to Vendor Confirmation” will be subject to acceptance and confirmation by the Vendor. The highest bid will be presented to the Vendor, the Vendor will have to either accept, decline or make a counteroffer, within the confirmation period. Should the Vendor decide to make a counteroffer, then a private link will be sent to the Highest Bidder advising of the offer the Vendor is willing to accept. The Highest Bidder will be obliged to accept or reject the Vendor's counteroffer. The Vendor reserves the ultimate right, apart from the auctioneer, to accept and to decline to sell to the highest or any bidder, without giving any reasons.
No information, statement, description, quantity or measurement contained in any sales particulars or given orally or contained in any webpage, brochure, catalogue, email, letter, report, docket or hand out issued by or on behalf of BidX1 or the seller in respect of the property shall constitute a representation or a condition or a warranty on behalf of BidX1 or the seller. Any information, statement, description, quantity or measurement so given or contained in any such sales particulars, webpage, brochure, catalogue, email, letter, report or hand out issued by or on behalf of BidX1 or the seller are for illustration purposes only and are not to be taken as matters of fact. Any mistake, omission, inaccuracy or mis-description given orally or contained in any sales particulars, webpage, brochure, catalogue, email, letter, report or hand out issued by or on behalf of BidX1 or the seller shall not give rise to any right of action, claim, entitlement or compensation against BidX1 or the seller. All bidders must satisfy themselves by carrying out their own independent due diligence, inspections or otherwise as to the correctness of any and all of the information, statements, descriptions, quantity or measurements contained in any such sales particulars, webpage, brochure, catalogue, email, letter, report or hand out issued by or on behalf of BidX1 or the seller.
Please note that under section 21 of the Estate Agents Act of 1991, we are obligated to disclose that the owner of this property is an employee of David Doyle Estate Agents
Disclaimer
David Doyle Estate Agents (DD), for themselves and the vendors, give notice that: These particulars and floorplans are for general guidance only and do not form part of any offer or contract. All descriptions, dimensions, permissions, and other details are given in good faith but must be independently verified. Fixtures, fittings, services, plant and equipment noted were present at first inspection but have not been tested, and no warranty is given as to condition or suitability. Information on council tax, rates, or planning use is informal; purchasers or tenants must confirm with the Local Authority. No employee of DD has authority to make or give any representation or contract. DD accept no liability for loss arising from use of these particulars or from viewing the property. Prices are exclusive of VAT unless stated and are subject to contract. Some developments may have management charges; solicitors to confirm any liabilities.
Cotterells, Hemel Hempstead, HP1
NEAREST STATIONS
Distances are straight line measurements from the centre of the postcode- Hemel Hempstead Station0.8 miles
- Apsley Station1.2 miles
- Kings Langley Station3.3 miles


Notes
Disclaimer - Property reference RX700437. The information displayed about this property comprises a property advertisement. Rightmove.co.uk makes no warranty as to the accuracy or completeness of the advertisement or any linked or associated information, and Rightmove has no control over the content. This property advertisement does not constitute property particulars. The information is provided and maintained by David Doyle Estate Agents, Boxmoor. Please contact the selling agent or developer directly to obtain any information which may be available under the terms of The Energy Performance of Buildings (Certificates and Inspections) (England and Wales) Regulations 2007 or the Home Report if in relation to a residential property in Scotland.
Auction Fees: The purchase of this property may include associated fees not listed here, as it is to be sold via auction. To find out more about the fees associated with this property please call David Doyle Estate Agents, Boxmoor on 01442 949959.
*Guide Price: An indication of a seller's minimum expectation at auction and given as a Guide Price or a range of Guide Prices. This is not necessarily the figure a property will sell for and is subject to change prior to the auction.
Reserve Price: Each auction property will be subject to a Reserve Price below which the property cannot be sold at auction. Normally the Reserve Price will be set within the range of Guide Prices or no more than 10% above a single Guide Price.
Map data ©OpenStreetMap contributors.






