
2 bedroom flat for sale
Walker Street, Cowdenbeath, KY4

- PROPERTY TYPE
Flat
- BEDROOMS
2
- BATHROOMS
1
- SIZE
Ask agent
- TENUREDescribes how you own a property. There are different types of tenure - freehold, leasehold, and commonhold.Read more about tenure in our glossary page.
Ask agent
Key features
- First Floor Flat
- 2 bedrooms
- Chain free
- Off street parking
- Enclosed garden
Description
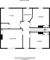
50 Walker Street, Cowdenbeath is a bright & spacious two-bedroom first floor flat. This well-proportioned first floor flat offers comfortable and practical living space, ideal for first-time buyers, professionals or buy-to-let investors. Cowdenbeath has a great range of amenities including shopping, schooling, and leisure facilities. There is a train station and close links to the A92 for any commuters. The property is accessed via a private stairwell, the property opens into a staircase leading to the central hallway providing access to all accommodation. The living room is positioned to the front of the property and benefits from excellent natural light. The kitchen is well-sized and laid out to accommodate a range of wall and base units, free standing electric cooker, with ample space for appliances. There are two good-sized bedrooms. The centrally located shower room is fitted with a modern suite comprising a shower enclosure, WC and wash hand basin. The flat benefits from a sensible layout, good storage potential and a bright, airy feel throughout, gas central heating and double glazing. There is enclosed garden ground to the side with off street parking. The rear garden is fenced in, laid to grass, slabbed area and has a wooden shed. Early viewing is highly recommended.
Entrance hallway
Lounge
4.03m x 4.25m (13' 3" x 13' 11")
Kitchen
4.03m x 4.12m (13' 3" x 13' 6")
Bedroom 1
3.58m x 4.13m (11' 9" x 13' 7")
Bedroom 2
3.58m x 3.02m (11' 9" x 9' 11")
Shower room
1.71m x 2.98m (5' 7" x 9' 9")
Gardens
Extras
All floor coverings. Electric cooker.
Brochures
Brochure 1- COUNCIL TAXA payment made to your local authority in order to pay for local services like schools, libraries, and refuse collection. The amount you pay depends on the value of the property.Read more about council Tax in our glossary page.
- Ask agent
- PARKINGDetails of how and where vehicles can be parked, and any associated costs.Read more about parking in our glossary page.
- Yes
- GARDENA property has access to an outdoor space, which could be private or shared.
- Yes
- ACCESSIBILITYHow a property has been adapted to meet the needs of vulnerable or disabled individuals.Read more about accessibility in our glossary page.
- Ask agent
Walker Street, Cowdenbeath, KY4
Add an important place to see how long it'd take to get there from our property listings.
__mins driving to your place
Get an instant, personalised result:
- Show sellers you’re serious
- Secure viewings faster with agents
- No impact on your credit score
Your mortgage
Notes
Staying secure when looking for property
Ensure you're up to date with our latest advice on how to avoid fraud or scams when looking for property online.
Visit our security centre to find out moreDisclaimer - Property reference 17762012. The information displayed about this property comprises a property advertisement. Rightmove.co.uk makes no warranty as to the accuracy or completeness of the advertisement or any linked or associated information, and Rightmove has no control over the content. This property advertisement does not constitute property particulars. The information is provided and maintained by Delmor, Cowdenbeath. Please contact the selling agent or developer directly to obtain any information which may be available under the terms of The Energy Performance of Buildings (Certificates and Inspections) (England and Wales) Regulations 2007 or the Home Report if in relation to a residential property in Scotland.
*This is the average speed from the provider with the fastest broadband package available at this postcode. The average speed displayed is based on the download speeds of at least 50% of customers at peak time (8pm to 10pm). Fibre/cable services at the postcode are subject to availability and may differ between properties within a postcode. Speeds can be affected by a range of technical and environmental factors. The speed at the property may be lower than that listed above. You can check the estimated speed and confirm availability to a property prior to purchasing on the broadband provider's website. Providers may increase charges. The information is provided and maintained by Decision Technologies Limited. **This is indicative only and based on a 2-person household with multiple devices and simultaneous usage. Broadband performance is affected by multiple factors including number of occupants and devices, simultaneous usage, router range etc. For more information speak to your broadband provider.
Map data ©OpenStreetMap contributors.







