
3 bedroom end of terrace house for sale
Granger Crescent, Wymondham, NR18

- PROPERTY TYPE
End of Terrace
- BEDROOMS
3
- BATHROOMS
1
- SIZE
Ask agent
Key features
- Well-presented three bedroom end of terrace house
- 40% shared ownership opportunity with Flagship housing, remaining 60% rent £483.36
- Modern kitchen/breakfast room
- Spacious living room/diner with french doors leading to the garden
- Three well-proportioned bedrooms
- Located on a popular residential development
- Within ease of access to local amenities, bus routes and the A11
- Allocated off-road parking for x2 cars
- Opportunity to staircase and buy a higher percentage share with Flagship Housing
- See our full online listing for further details including flood risk, broadband speed and other material information
Description
Moneyproperties bring to market this well-presented three-bedroom, end of terrace house offering 40% shared ownership. With modern interior throughout and bought from new the property comprises of an entrance hall, kitchen/breakfast room, spacious living room/diner and downstairs wc. To the upstairs comes three well-proportioned bedrooms and a family bathroom off the landing. Outside the property enjoys an enclosed rear garden with a patio area and allocated parking for x2 cars to the front. The 40% ownership share reflects a full market value of £280,000 following an RICS valuation.
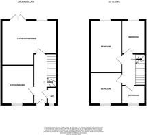
Living Room/Diner - 5.08m x 4.17m (16'8" x 13'8")
Kitchen/Breakfast Room - 3.56m x 2.95m (11'8" x 9'8")
WC
Bedroom One - 4.83m x 2.9m (15'10" x 9'6")
Bedroom Two - 2.95m x 2.9m (9'8" x 9'6")
Bedroom Three - 3.1m x 2.06m (10'2" x 6'9")
Bathroom - 2.06m x 1.73m (6'9" x 5'8")
AGENT’S NOTES -
Planning : Details, if any, can be found on the South Norfolk Council Planning website.
Covenants, Rights and Restrictions: Please enquire with the selling agents for any information.
Broadband : Ultrafast FTTP. See Ofcom checker and Openreach website for more details.
Mobile phone : See Ofcom checker for coverage details.
Flood risk : Very low risk surface, rivers and seas according to Gov.uk website
Services : Mains Services connected.
Local Authority : Norfolk County Council and South Norfolk Council
Council Tax Band : C
Tenure : Leasehold
EPC : B
Rent payable on remaining 60% share £483.36 Flagship Housing. Leasehold 990 years from and including 14 April 2023 (987 remaining)
Brochures
Brochure 1- COUNCIL TAXA payment made to your local authority in order to pay for local services like schools, libraries, and refuse collection. The amount you pay depends on the value of the property.Read more about council Tax in our glossary page.
- Band: C
- PARKINGDetails of how and where vehicles can be parked, and any associated costs.Read more about parking in our glossary page.
- Driveway,Allocated
- GARDENA property has access to an outdoor space, which could be private or shared.
- Patio,Private garden
- ACCESSIBILITYHow a property has been adapted to meet the needs of vulnerable or disabled individuals.Read more about accessibility in our glossary page.
- Ask agent
Granger Crescent, Wymondham, NR18
Add an important place to see how long it'd take to get there from our property listings.
__mins driving to your place
Get an instant, personalised result:
- Show sellers you’re serious
- Secure viewings faster with agents
- No impact on your credit score



Your mortgage
Notes
Staying secure when looking for property
Ensure you're up to date with our latest advice on how to avoid fraud or scams when looking for property online.
Visit our security centre to find out moreDisclaimer - Property reference S1569982. The information displayed about this property comprises a property advertisement. Rightmove.co.uk makes no warranty as to the accuracy or completeness of the advertisement or any linked or associated information, and Rightmove has no control over the content. This property advertisement does not constitute property particulars. The information is provided and maintained by Moneyproperties, Wymondham. Please contact the selling agent or developer directly to obtain any information which may be available under the terms of The Energy Performance of Buildings (Certificates and Inspections) (England and Wales) Regulations 2007 or the Home Report if in relation to a residential property in Scotland.
*This is the average speed from the provider with the fastest broadband package available at this postcode. The average speed displayed is based on the download speeds of at least 50% of customers at peak time (8pm to 10pm). Fibre/cable services at the postcode are subject to availability and may differ between properties within a postcode. Speeds can be affected by a range of technical and environmental factors. The speed at the property may be lower than that listed above. You can check the estimated speed and confirm availability to a property prior to purchasing on the broadband provider's website. Providers may increase charges. The information is provided and maintained by Decision Technologies Limited. **This is indicative only and based on a 2-person household with multiple devices and simultaneous usage. Broadband performance is affected by multiple factors including number of occupants and devices, simultaneous usage, router range etc. For more information speak to your broadband provider.
Map data ©OpenStreetMap contributors.





