Plot for sale
New Road
- PROPERTY TYPE
Plot
- SIZE
Ask agent
Key features
- Full planning permission
- 5 residential units
- Range of property types
- Architecturally designed
- Site extends to 4.02 acres (1.62ha)
- Short distance from Wootton Creek
- Close to ferry links
- Situation in Wootton Bridge
- Close to coastal paths
Description
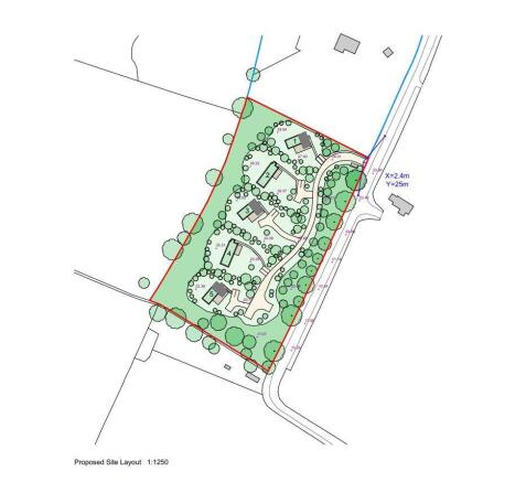
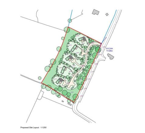
Description - An opportunity to purchase a development site with full planning consent comprising of 5 dwellings.
Full planning permission was granted, under reference APP/P2114/W/22/33123325 for 5 residential units. The proposed scheme includes a range of property types, including 3 x 3 bedroom bungalows (with extensive external decking) and 2 x 2 bedroom (with extensive external decking). The properties have all been sensitively architecturally designed, and each unit will enjoy a large plot with private garden and private parking area. The site extends to 4.02 acres (1.62ha) in total and is was previously used as a garden/grounds area for the adjacent property.
The site is located a short distance from Wootton Creek, on the edge of the attractive and popular town of Wootton Bridge with easy access to the Fishbourne-Portsmouth ferry (4 minute drive) a range of shops, eateries and a local school. The town of East Cowes is a 7 minute drive with further access to the ferry to Southampton.
General Remarks And Stipulations -
Method Of Sale - The property is offered for sale by private treaty.
Services - We are informed that there is a livestock water connection to the site, however, we are informed that other services may be available within close proximity of the plot - however purchasers to make their own investigations.
Local Authority - Isle of Wight Council
Tenure & Possession - The property is being sold freehold with vacant possession.
Planning & S106 - The Secretary of State granted full planning approval (at appeal) under planning reference APP/P2114/W/22/33123325. There are some pre-commencement conditions that will need to be discharged by the purchaser. The vendor has entered into a legal agreement (Section 106) with the Isle of Wight Council and the legal obligations and costs will be inherited by the buyer.
Post Code - PO33 4JW
Plans, Areas And Schedules - These are based on the Ordnance Survey and are for reference only. They have been checked and computed by BCM and the Purchaser(s) shall be deemed to have satisfied themselves as to the description of the property. Any error or mis-statement shall not annul a sale or entitle any party to compensation in respect thereof.
Access - Access into the site is via a 5-bar metal gate from the public highway at New Road. A new internal roadway has been constructed by the Seller to formally commence a previous planning permission for 5 tourism units under planning reference 20/00267/FUL . The Seller is to retain a right of way, over the area hatched orange and blue on the sale plan.
Wayleaves And Easements - The property is being sold subject to and with the benefit of all rights including; rights of way, whether public or private, light, support, drainage, water and electricity supplies and other rights and obligations, easements and quasi-easements and restrictive covenants and all existing and proposed wayleaves for masts, pylons, stays, cables, drains, water and gas and other pipes whether referred to in these particulars or not.
Covenant - In the event that the Purchaser materially alters the scheme as approved under APP/P2114/W/22/33123325, a covenant will be included in the sale that the Seller must be consulted and agree any change before a submission to the Local Authority.
Fencing/Boundary Improvements - The Purchaser will be required as a condition of the sale to erect and maintain thereafter a suitable boundary fence or similar on the Eastern boundary of the site between the site being sold and the adjoining property-this is annotated as A-B on the sale plan.
Epc/Council Tax - The property is exempt from EPC legislation due to its current use and there is not council tax applicable on the property.
Viewings - Viewings of the property are to be strictly with a member of BCM Wilson Hill. Please contact the Isle of Wight office on should you wish to arrange this.
Health And Safety - Given the potential hazards of the site, which is typical of an undeveloped development site, we ask for your own personal safety to be very vigilant whilst visiting in order to avoid the risk of accident when making your inspection. All viewings and site visits must be organised with BCM and should always be accompanied by a member of BCM Wilson Hill.
Fixtures And Fittings - BCM Wilson Hill will supply a list on request identifying clearly which items are included within the sale, which are excluded and which may be available by separate negotiation. This list is the sole arbiter of this regardless of whether items are referred to or photographed in these particulars.
Selling Agent - BCM Wilson Hill, Isle of Wight office, Red Barn, Cheeks Farm, Merstone Lane, Merstone, Isle of Wight, PO30 3DE t
What3words - //////kidney.skims.gently
Brochures
Dev Site off New Road, Wootton Final 240313.pdfNew Road
NEAREST STATIONS
Distances are straight line measurements from the centre of the postcode- Ryde Esplanade Station2.7 miles
- Ryde Pier Head Station2.7 miles
- Ryde St. Johns Road Station2.9 miles

Notes
Disclaimer - Property reference 32958609. The information displayed about this property comprises a property advertisement. Rightmove.co.uk makes no warranty as to the accuracy or completeness of the advertisement or any linked or associated information, and Rightmove has no control over the content. This property advertisement does not constitute property particulars. The information is provided and maintained by BCM Wilson Hill, Isle of Wight. Please contact the selling agent or developer directly to obtain any information which may be available under the terms of The Energy Performance of Buildings (Certificates and Inspections) (England and Wales) Regulations 2007 or the Home Report if in relation to a residential property in Scotland.
Map data ©OpenStreetMap contributors.




