1 bedroom flat for sale
5/53 Shrubhill Walk, Edinburgh, EH7 4FP

- PROPERTY TYPE
Flat
- BEDROOMS
1
- BATHROOMS
1
- SIZE
Ask agent
- TENUREDescribes how you own a property. There are different types of tenure - freehold, leasehold, and commonhold.Read more about tenure in our glossary page.
Freehold
Key features
- Stunning high-ceiling, loft style living/kitchen/dining area.
- One double bedroom apartment on 5th floor with lift.
- Close to Leith Walk and all amenities, McDonald Road tram stop just minutes away.
- Early viewing recommended. Call agent on .
- Underground, secure parking available for monthly fee.
Description
The property comprises a large spacious open plan living/dining/kitchen with high ceiling which allow light to flow throughout. The contemporary kitchen benefits from a modern, stylish fitted kitchen with integrated appliances which are included in sale, a bright hallway leading to double bedroom and bathroom. The spacious bedroom benefits from triple mirrored wardrobes and is carpeted. The family bathroom comprises low level W.C., sink and vanity unit, bath with shower and shower screen, tiled splashbacks, radiator and mirror. The property has district, gas central heating.
The property is within close walking distance of the cosmopolitan Leith Walk and the neighbourhood offers an excellent variety of restaurants, shops, bars, a local library, gyms, and amenities also include the open green spaces of Pilrig Park nearby. McDonald Road tram stop is minutes away.
There is secure parking at underground level car park available for a monthly fee. £100 per car, per month.
Buyer can benefit from residents, reduced gym membership at Places Gym on Leith Walk.
A factoring fee is payable for the upkeep of the communal areas and includes buildings insurance.
Viewing is recommended. Call agent on .
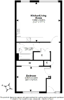
Open Plan Lounge/Kitchen/Dining
5.2m x 4.6m
Bedroom
3.9m x 2.9m
Bathroom
2.6m x 2m
Brochures
Brochure- COUNCIL TAXA payment made to your local authority in order to pay for local services like schools, libraries, and refuse collection. The amount you pay depends on the value of the property.Read more about council Tax in our glossary page.
- Band: C
- PARKINGDetails of how and where vehicles can be parked, and any associated costs.Read more about parking in our glossary page.
- Residents
- GARDENA property has access to an outdoor space, which could be private or shared.
- Communal garden
- ACCESSIBILITYHow a property has been adapted to meet the needs of vulnerable or disabled individuals.Read more about accessibility in our glossary page.
- Ask agent
Energy performance certificate - ask agent
5/53 Shrubhill Walk, Edinburgh, EH7 4FP
Add an important place to see how long it'd take to get there from our property listings.
__mins driving to your place
Get an instant, personalised result:
- Show sellers you’re serious
- Secure viewings faster with agents
- No impact on your credit score
Your mortgage
Notes
Staying secure when looking for property
Ensure you're up to date with our latest advice on how to avoid fraud or scams when looking for property online.
Visit our security centre to find out moreDisclaimer - Property reference 271836. The information displayed about this property comprises a property advertisement. Rightmove.co.uk makes no warranty as to the accuracy or completeness of the advertisement or any linked or associated information, and Rightmove has no control over the content. This property advertisement does not constitute property particulars. The information is provided and maintained by McDougall McQueen, Edinburgh. Please contact the selling agent or developer directly to obtain any information which may be available under the terms of The Energy Performance of Buildings (Certificates and Inspections) (England and Wales) Regulations 2007 or the Home Report if in relation to a residential property in Scotland.
*This is the average speed from the provider with the fastest broadband package available at this postcode. The average speed displayed is based on the download speeds of at least 50% of customers at peak time (8pm to 10pm). Fibre/cable services at the postcode are subject to availability and may differ between properties within a postcode. Speeds can be affected by a range of technical and environmental factors. The speed at the property may be lower than that listed above. You can check the estimated speed and confirm availability to a property prior to purchasing on the broadband provider's website. Providers may increase charges. The information is provided and maintained by Decision Technologies Limited. **This is indicative only and based on a 2-person household with multiple devices and simultaneous usage. Broadband performance is affected by multiple factors including number of occupants and devices, simultaneous usage, router range etc. For more information speak to your broadband provider.
Map data ©OpenStreetMap contributors.




