5 bedroom detached villa for sale
Cascais, Lisbon, Portugal
- PROPERTY TYPE
Detached Villa
- BEDROOMS
5
- BATHROOMS
4
- SIZE
2,476 sq ft
230 sq m
Key features
- Private Swimming Pool
- Excellent Sun Exposure
- Contemporary Architecture
- Fully equipped kitchen
- Air conditioning
- Photovoltaic panels
- Heat pump
- Electric shutters
- Video intercom
Description
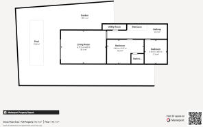
Main areas:
Floor 0
- Hall 10m2
- Living and dining room 39m2
- Fully equipped kitchen 15m2
- Suite 17m2 with wardrobe and bathroom
- Guest bathroom 2m2
Floor 1
- Master suite 21m2 with walk-in closet and bathroom
- Bedroom 14m2 with wardrobe and balcony
- Bedroom 12m2 with wardrobe
- Bathroom 4m2
- Hallway 8m2
- Balcony 8m2
Floor -1
- Living room 34m2
- Suite 18m2 with wardrobe and bathroom
- Office/gym 12m2
- Laundry room 2m2
- Hall 14m2
- Parking for 2 cars.
House equipped with air conditioning, photovoltaic panels, heat pump, electric shutters, and video intercom.
Located just a few minutes from the beaches of Cascais. Close to all amenities, such as Cascaishopping, schools (Salesianos do Estoril and Colégio Tassis), golf courses, hospitals, restaurants, and cafés.
Easy access to the A5, Marginal, IC19, and Lisbon Airport, about 25 minutes away.
INSIDE LIVING operates in the luxury housing and real estate investment market. Our team offers a diverse range of excellent services to our clients, such as investor support services, ensuring full assistance in the selection, purchase, sale, or rental of properties, architectural design, interior design, banking, and concierge services throughout the process.
Cascais, Lisbon, Portugal
NEAREST AIRPORTS
Distances are straight line measurements- Lisbon(International)15.2 miles
Advice on buying Portuguese property
Learn everything you need to know to successfully find and buy a property in Portugal.
Notes
This is a property advertisement provided and maintained by Inside Living - Luxury Estate, Cascais (reference L42164-1) and does not constitute property particulars. Whilst we require advertisers to act with best practice and provide accurate information, we can only publish advertisements in good faith and have not verified any claims or statements or inspected any of the properties, locations or opportunities promoted. Rightmove does not own or control and is not responsible for the properties, opportunities, website content, products or services provided or promoted by third parties and makes no warranties or representations as to the accuracy, completeness, legality, performance or suitability of any of the foregoing. We therefore accept no liability arising from any reliance made by any reader or person to whom this information is made available to. You must perform your own research and seek independent professional advice before making any decision to purchase or invest in overseas property.






