1 bedroom flat for rent
Kinnoull Street, Perth, Perthshire, PH1 5EN

Letting details
- Let available date:
- Ask agent
- Deposit:
- £726A deposit provides security for a landlord against damage, or unpaid rent by a tenant.Read more about deposit in our glossary page.
- Min. Tenancy:
- Ask agent How long the landlord offers to let the property for.Read more about tenancy length in our glossary page.
- Let type:
- Long term
- Furnish type:
- Unfurnished
- Council Tax:
- Ask agent
- PROPERTY TYPE
Flat
- BEDROOMS
1
- BATHROOMS
1
- SIZE
Ask agent
Key features
- Charming Second-Floor Flat in the Heart of Perth City Centre
- Storage cupboard
- Bright and spacious living room
- Well-appointed kitchen
- Comfortable double bedroom
- Modern bathroom
Description
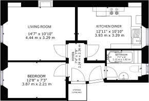
Well-positioned within a traditional mid-terraced tenement building, this one-bedroom second-floor flat offers a fantastic opportunity to acquire a centrally located property in the heart of Perth. The building is arranged over three storeys plus attic and contains six residential flats in total.
The flat itself benefits from double glazing throughout, gas central heating, and a secure entry system, ensuring year-round comfort and peace of mind. A storage cupboard is located immediately to the left upon entering the property, providing useful additional space.
Accommodation comprises a welcoming entrance hall leading to a bright and spacious living room , a well-appointed kitchen diner with ample space for a dining table, a comfortable double bedroom, and a modern bathroom.
Situated in Perth city centre, the property enjoys a convenient location with a wide range of local amenities nearby, including shopping, educational facilities, and excellent transport links. The surrounding neighbourhood features a mix of residential and commercial properties, creating a vibrant and accessible urban environment.
EPC Band C.
Landlord Registration Number Pending.
Clyde Property Scottish Letting Agent Registration No. LARN1902033.
- COUNCIL TAXA payment made to your local authority in order to pay for local services like schools, libraries, and refuse collection. The amount you pay depends on the value of the property.Read more about council Tax in our glossary page.
- Band: A
- PARKINGDetails of how and where vehicles can be parked, and any associated costs.Read more about parking in our glossary page.
- Ask agent
- GARDENA property has access to an outdoor space, which could be private or shared.
- Ask agent
- ACCESSIBILITYHow a property has been adapted to meet the needs of vulnerable or disabled individuals.Read more about accessibility in our glossary page.
- Ask agent
Energy performance certificate - ask agent
Kinnoull Street, Perth, Perthshire, PH1 5EN
Add an important place to see how long it'd take to get there from our property listings.
__mins driving to your place
Notes
Staying secure when looking for property
Ensure you're up to date with our latest advice on how to avoid fraud or scams when looking for property online.
Visit our security centre to find out moreDisclaimer - Property reference RLXS234. The information displayed about this property comprises a property advertisement. Rightmove.co.uk makes no warranty as to the accuracy or completeness of the advertisement or any linked or associated information, and Rightmove has no control over the content. This property advertisement does not constitute property particulars. The information is provided and maintained by Clyde Property, Perth - Lettings. Please contact the selling agent or developer directly to obtain any information which may be available under the terms of The Energy Performance of Buildings (Certificates and Inspections) (England and Wales) Regulations 2007 or the Home Report if in relation to a residential property in Scotland.
*This is the average speed from the provider with the fastest broadband package available at this postcode. The average speed displayed is based on the download speeds of at least 50% of customers at peak time (8pm to 10pm). Fibre/cable services at the postcode are subject to availability and may differ between properties within a postcode. Speeds can be affected by a range of technical and environmental factors. The speed at the property may be lower than that listed above. You can check the estimated speed and confirm availability to a property prior to purchasing on the broadband provider's website. Providers may increase charges. The information is provided and maintained by Decision Technologies Limited. **This is indicative only and based on a 2-person household with multiple devices and simultaneous usage. Broadband performance is affected by multiple factors including number of occupants and devices, simultaneous usage, router range etc. For more information speak to your broadband provider.
Map data ©OpenStreetMap contributors.




