High street retail property to lease
17 George Place, Bathgate, EH48 1NX
- SIZE AVAILABLE
5,044 sq ft
469 sq m
- SECTOR
High street retail property to lease
Lease details
- Lease available date:
- Now
- Lease type:
- Long term
Key features
- Former restaurant in town centre location
- Landlord may be willing to carry out refurbishment works prior to new tenant entry
- Flexible premises suitable for sub-division, dependent on requirement
- 469 sq m (5044 sq ft)
- Offers over £250,000 (exc. of VAT)
- Rent on application
Description
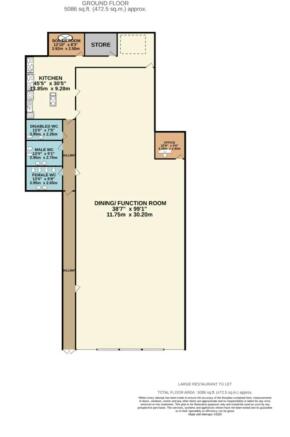
The subjects comprise a stone-built property surmounted by a pitched roof. The subjects benefit from a large, glazed frontage secured by roller shutters. Access is afforded through a recessed entrance and internally, the subjects are presently laid out to provide restaurant accommodation with a spacious open dining/function room, office, kitchen, male, female and disabled WC facilities, and storage.
Location
Bathgate is a commuter town in West Lothian, approximately 20 miles west of Edinburgh. It holds a population of approximately 21,000 people with excellent communication links via road and rail across the central belt. The subjects are situated on the southern side of George Street in Bathgate, benefitting from a prominent town centre location with high passing footfall and traffic
Brochures
17 George Place, Bathgate, EH48 1NX
NEAREST STATIONS
Distances are straight line measurements from the centre of the postcode- Bathgate Station0.2 miles
- Armadale Station2.3 miles
- Livingston North Station3.8 miles
Notes
Disclaimer - Property reference 348806-2. The information displayed about this property comprises a property advertisement. Rightmove.co.uk makes no warranty as to the accuracy or completeness of the advertisement or any linked or associated information, and Rightmove has no control over the content. This property advertisement does not constitute property particulars. The information is provided and maintained by DM Hall, Livingston. Please contact the selling agent or developer directly to obtain any information which may be available under the terms of The Energy Performance of Buildings (Certificates and Inspections) (England and Wales) Regulations 2007 or the Home Report if in relation to a residential property in Scotland.
Map data ©OpenStreetMap contributors.




