
2 bedroom terraced house for sale
Mcdonald Crescent, Falkirk, FK2

- PROPERTY TYPE
Terraced
- BEDROOMS
2
- BATHROOMS
2
- SIZE
753 sq ft
70 sq m
- TENUREDescribes how you own a property. There are different types of tenure - freehold, leasehold, and commonhold.Read more about tenure in our glossary page.
Freehold
Key features
- Lounge
- Lower level WC
- Dining Kitchen
- Two Bedrooms
- Shower room
- Front driveway parking and enclosed fenced rear garden
Description
Charming modern mid terraced villa, with the subjects enjoying the benefit of a private blocked paved front driveway and easily managed fully enclosed private rear garden. The property is situated conveniently for access to many excellent town centre amenities including Falkirk retail park and rail station.
Access to the property is through an entrance vestibule with gable window leading thereon to a bright front facing sitting room with twin window. The inner hallway has a useful storage cupboard off and access to a downstairs WC. The super dining kitchen has patio doors leading to the rear gardens and integrated appliances including oven, hob, extractor hood, fridge freezer and washing machine.
On the upper floor there are two bedrooms with fitted robes and a stylish refitted bathroom (2023) with walk in shower, chrome radiator, mains shower valve and storage. Particular attention is drawn to the master bedroom which has multiple front facing windows and outstanding storage. Practical features include gas central heating, double glazing and timber laminate flooring. Well maintained and presented throughout early viewing is highly recommended.
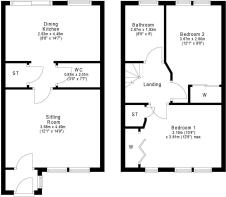
Sitting Room 14’9” x 12’1” 4.50m x 3.68m
Bedroom One 13’6” x 10’4” 4.11m x 3.15m (to robes)
Bedroom Two 12’1” x 8’6” 3.68m x 2.59m (to robes)
Dining Kitchen 14’7” x 8’8” 4.45m x 2.64m
Shower Room 8’9” x 6’ 2.67m x 1.83m
Downstairs WC 7’7 x 3’0 2.31m x 0.91m
- COUNCIL TAXA payment made to your local authority in order to pay for local services like schools, libraries, and refuse collection. The amount you pay depends on the value of the property.Read more about council Tax in our glossary page.
- Band: D
- PARKINGDetails of how and where vehicles can be parked, and any associated costs.Read more about parking in our glossary page.
- Yes
- GARDENA property has access to an outdoor space, which could be private or shared.
- Yes
- ACCESSIBILITYHow a property has been adapted to meet the needs of vulnerable or disabled individuals.Read more about accessibility in our glossary page.
- Ask agent
Energy performance certificate - ask agent
Mcdonald Crescent, Falkirk, FK2
Add an important place to see how long it'd take to get there from our property listings.
__mins driving to your place
Get an instant, personalised result:
- Show sellers you’re serious
- Secure viewings faster with agents
- No impact on your credit score
Your mortgage
Notes
Staying secure when looking for property
Ensure you're up to date with our latest advice on how to avoid fraud or scams when looking for property online.
Visit our security centre to find out moreDisclaimer - Property reference db6403d3-9aa8-4861-b9a2-1e6898abf0ec. The information displayed about this property comprises a property advertisement. Rightmove.co.uk makes no warranty as to the accuracy or completeness of the advertisement or any linked or associated information, and Rightmove has no control over the content. This property advertisement does not constitute property particulars. The information is provided and maintained by Clyde Property, Falkirk. Please contact the selling agent or developer directly to obtain any information which may be available under the terms of The Energy Performance of Buildings (Certificates and Inspections) (England and Wales) Regulations 2007 or the Home Report if in relation to a residential property in Scotland.
*This is the average speed from the provider with the fastest broadband package available at this postcode. The average speed displayed is based on the download speeds of at least 50% of customers at peak time (8pm to 10pm). Fibre/cable services at the postcode are subject to availability and may differ between properties within a postcode. Speeds can be affected by a range of technical and environmental factors. The speed at the property may be lower than that listed above. You can check the estimated speed and confirm availability to a property prior to purchasing on the broadband provider's website. Providers may increase charges. The information is provided and maintained by Decision Technologies Limited. **This is indicative only and based on a 2-person household with multiple devices and simultaneous usage. Broadband performance is affected by multiple factors including number of occupants and devices, simultaneous usage, router range etc. For more information speak to your broadband provider.
Map data ©OpenStreetMap contributors.








