Land for sale
Robert Street, Milford Haven, Pembrokeshire, SA73
- PROPERTY TYPE
Land
- SIZE
Ask agent
Key features
- Building opportunity for sale in Milford Haven town centre
- Planning permission conditionally approved: April 2025
- Application reference: 24/1188/PA
- Development plot with permission for a newly built, single-storey, one-bedroom dwelling
- Bungalow-style design
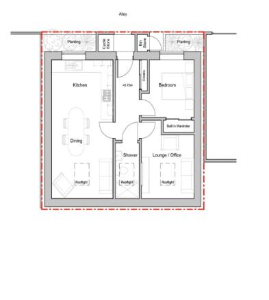
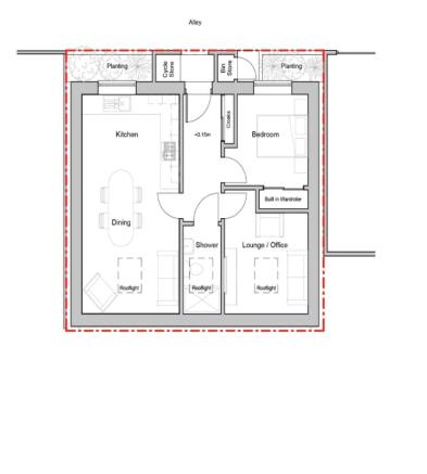
- Proposed accommodation includes:
- Spacious open-plan kitchen and dining area
- Separate lounge (can be used as a second reception room or study)
- Family shower room
- Generous internal and external storage (as shown on plans)
Description
Application Reference Number : 24/1188/PA
We are pleased to offer an excellent opportunity to purchase a development plot with condition planning permission for a newly built single-storey, one-bedroom dwelling, ideally located in Milford Haven town centre. Planning permission was approved in April 2025.
The approved plans propose a well-designed bungalow-style home comprising a spacious open-plan kitchen and dining area, along with a separate lounge that could also be utilised as a second reception room or study. The property also benefits from a family shower room, generous internal and external storage as shown on the plans, and off-road parking spaces to the front. With planning there is a large roof space which has been designed to allow for a further two bedrooms.
This is an ideal town-centre opportunity for anyone seeking a low-maintenance, single-level home in a convenient and accessible location.
For further information or to arrange a viewing, please contact us today on .
Brochures
ParticularsRobert Street, Milford Haven, Pembrokeshire, SA73
NEAREST STATIONS
Distances are straight line measurements from the centre of the postcode- Milford Haven Station0.3 miles
- Johnston Station3.4 miles
- Pembroke Dock Station4.4 miles
Notes
Disclaimer - Property reference MIL250182. The information displayed about this property comprises a property advertisement. Rightmove.co.uk makes no warranty as to the accuracy or completeness of the advertisement or any linked or associated information, and Rightmove has no control over the content. This property advertisement does not constitute property particulars. The information is provided and maintained by FBM, Milford Haven. Please contact the selling agent or developer directly to obtain any information which may be available under the terms of The Energy Performance of Buildings (Certificates and Inspections) (England and Wales) Regulations 2007 or the Home Report if in relation to a residential property in Scotland.
Map data ©OpenStreetMap contributors.








