Brimpenny Road, Exmouth

- PROPERTY TYPE
End of Terrace
- BEDROOMS
3
- BATHROOMS
1
- SIZE
753 sq ft
70 sq m
- TENUREDescribes how you own a property. There are different types of tenure - freehold, leasehold, and commonhold.Read more about tenure in our glossary page.
Freehold
Key features
- Deceptively Spacious End Terrace House
- Gas Central Heating & Double Glazing
- Dual Aspect Living Room With Log Burner
- Kitchen, Double Glazed Conservatory
- Modern Fitted Ground Floor Bathroom
- 3 First Floor Double Bedrooms
- Driveway For 2 Vehicles, Good Sized Rear Garden
- Cul-De-Sac, Handy For Shops, Schools & Bus Stops
Description
The property benefits from driveway parking for 2 vehicles, gas central heating via a combi boiler and uPVC double glazing throughout.
The ground floor accommodation comprises a dual aspect living room featuring a log burner, a fitted kitchen, a good sized uPVC double glazed conservatory and a modern fitted bathroom.
To the first floor are 3 generous double bedrooms, 2 of which include built-in wardrobes.
Externally, the property enjoys driveway parking to the front and a good sized enclosed rear garden, making it ideal for families and outdoor entertaining.
This property would make a lovely family home and viewing is highly recommended.
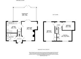
Accommodation
Ground Floor
Step up to uPVC double glazed front entrance door leading to:
Entrance Hall
Staircase rising to first floor. Tiled flooring. Smoke Alarm. Doors leading to bathroom and:
Living Room - 15'5" (4.7m) x 12'9" (3.89m)
Dual aspect having windows to front and side. Focal point of fireplace with fitted log burner and wooden mantle over. Radiator. Laminate flooring. Double doors to conservatory and door leading to:
Kitchen - 12'0" (3.66m) x 9'2" (2.79m)
Window to rear and obscure glazed door leading to conservatory. Range of cupboard and drawer storage units with roll edged work surfaces and tiled splash backs. Stainless steel one and a half bowl sink with single drainer unit and mixer tap. Electric cooker point. Space and plumbing for dishwasher and washing machine. Further space for freestanding fridge / freezer etc. Useful under stairs storage cupboard. Wall mounted gas fired Combi boiler that supplies the central heating and domestic hot water. High level electric trip switch fuse box. Wooden flooring.
Conservatory - 18'4" (5.59m) x 11'1" (3.38m)
uPVC double glazed French doors leading to rear garden and u PVC double glazed windows to rear and either side on dwarf brick walls. 2 Radiators. Electric meter box. Wooden flooring.
Bathroom
Obscure uPVC double glazed window to front. Modern fitted white suite of panelled bath with mixer tap and shower attachment over. Concealed cistern WC and vanity wash hand basin. Fully tiled walls and floor. Heated towel rail. Extractor fan.
First Floor
Landing
Window to rear. Access to insulated and boarded loft space via trap door with ladder. Radiator Smoke alarm. Doors leading to:
Bedroom 1 - 15'4" (4.67m) x 8'11" (2.72m)
Dual aspect having windows to front and rear. Useful built - in wardrobe. Radiator.
Bedroom 2 - 11'0" (3.35m) x 8'1" (2.46m) Plus Recess
Window to front. Useful built in wardrobe and storage cupboard. Radiator.
Bedroom 3 - 9'10" (3m) x 6'10" (2.08m)
Window to rear. Radiator.
Externally
To the front of the property is a driveway that provides off road parking for 2 motor vehicles side by side. The remainder is then easy to maintain including wall and timber boundaries. Outside gas meter box.
Rear Garden
There is an enclosed rear garden which consists of a brick paved patio area immediately adjacent to property being ideal for outdoor dining and sitting during the fine weather with steps and leading up to remainder of the Gardens are later alone with timber panel fence boundaries, outside water tap. Timber lock store. Good size timber garden shed with power connected. Front pedestrian access to side of property via timber garden gate.
Tenure
The property is FREEHOLD
Services
All mains services are connected. The property is on a water meter. Council Tax Band C
Mortgage Assistance
We are pleased to recommend Meredith Morgan Taylor, who would be pleased to help no matter which estate agent you finally buy through. For a free initial chat please contact us on to arrange an appointment
Your home may be repossessed if you do not keep up repayments on your mortgage
Meredith Morgan Taylor Ltd is an appointed representative of The Openwork Partnership, a trading style of Openwork Ltd which is authorised and regulated by the Financial Conduct Authority (FCA).
Agents Note
These are draft particulars and are awaiting vendors verification.
Directions
From our prominent town centre office, proceed onto Rolle Street, into Rolle Road turning left at the roundabout onto Salterton Road. At the second set of traffic lights, turn left onto Bradham Lane. Proceed down the hill and then take a left, then right at the roundabouts onto Pound Lane. Turn immediately right onto Forton Road and then next left onto Broadpark Road. Turn right onto Brimpenny Road where the property will be found on the left, clearly identified by our For Sale board.
what3words /// spits.rise.origin
Notice
Please note we have not tested any apparatus, fixtures, fittings, or services. Interested parties must undertake their own investigation into the working order of these items. All measurements are approximate and photographs provided for guidance only.
Brochures
Brochure 1Web Details- COUNCIL TAXA payment made to your local authority in order to pay for local services like schools, libraries, and refuse collection. The amount you pay depends on the value of the property.Read more about council Tax in our glossary page.
- Band: C
- PARKINGDetails of how and where vehicles can be parked, and any associated costs.Read more about parking in our glossary page.
- Off street
- GARDENA property has access to an outdoor space, which could be private or shared.
- Private garden
- ACCESSIBILITYHow a property has been adapted to meet the needs of vulnerable or disabled individuals.Read more about accessibility in our glossary page.
- Ask agent
Brimpenny Road, Exmouth
Add an important place to see how long it'd take to get there from our property listings.
__mins driving to your place
Get an instant, personalised result:
- Show sellers you’re serious
- Secure viewings faster with agents
- No impact on your credit score



Your mortgage
Notes
Staying secure when looking for property
Ensure you're up to date with our latest advice on how to avoid fraud or scams when looking for property online.
Visit our security centre to find out moreDisclaimer - Property reference 5950_LINK. The information displayed about this property comprises a property advertisement. Rightmove.co.uk makes no warranty as to the accuracy or completeness of the advertisement or any linked or associated information, and Rightmove has no control over the content. This property advertisement does not constitute property particulars. The information is provided and maintained by Links Estate Agents, Exmouth. Please contact the selling agent or developer directly to obtain any information which may be available under the terms of The Energy Performance of Buildings (Certificates and Inspections) (England and Wales) Regulations 2007 or the Home Report if in relation to a residential property in Scotland.
*This is the average speed from the provider with the fastest broadband package available at this postcode. The average speed displayed is based on the download speeds of at least 50% of customers at peak time (8pm to 10pm). Fibre/cable services at the postcode are subject to availability and may differ between properties within a postcode. Speeds can be affected by a range of technical and environmental factors. The speed at the property may be lower than that listed above. You can check the estimated speed and confirm availability to a property prior to purchasing on the broadband provider's website. Providers may increase charges. The information is provided and maintained by Decision Technologies Limited. **This is indicative only and based on a 2-person household with multiple devices and simultaneous usage. Broadband performance is affected by multiple factors including number of occupants and devices, simultaneous usage, router range etc. For more information speak to your broadband provider.
Map data ©OpenStreetMap contributors.




