
3 bedroom detached house for sale
Shortcroft, Kelvedon Hatch, Brentwood

- PROPERTY TYPE
Detached
- BEDROOMS
3
- BATHROOMS
1
- SIZE
1,221 sq ft
113 sq m
- TENUREDescribes how you own a property. There are different types of tenure - freehold, leasehold, and commonhold.Read more about tenure in our glossary page.
Freehold
Key features
- THREE GOOD-SIZED BEDROOMS
- DETACHED HOUSE WITH POTENTIAL
- OPEN PLAN KITCHEN / DINER
- SEPARATE LIVING ROOM
- VACANT POSSESSION
- DRIVEWAY PARKING & INTEGRAL GARAGE
- EASY TO MAINTAIN REAR GARDEN
- QUIET, SOUGHT-AFTER TURNING
Description
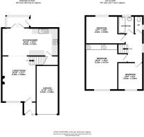
A central porch at the front of the property gives access into a spacious living room, where there are stairs rising to the first-floor level and a wide archway through the kitchen/diner. The kitchen/diner is a good space with ample room for a family sized dining table, and there are French doors which open into the conservatory/lean to. The kitchen, which is open plan to the dining room, is fitted in a range of wall and base units and provides plenty of space for appliances; there is also a large under stairs larder/storage cupboard providing further storage options. Including in the kitchen is an integrated oven with microwave above. At the rear of the property is a UPVC conservatory with doors opening onto the garden.
Rising to the first floor a spacious landing has doors to all rooms. There is a bathroom fitted with a white suite, which includes a panelled bath with shower over, and a wash hand basin set into a vanity unit. Adjacent to the bathroom is a separate w.c. These two rooms could easily be converted into one room. There are three good-sized bedrooms on this level, with the master bedroom having fitted wardrobes to one wall.
Externally, you will find that there is an easy to maintain rear garden which is mainly laid to lawn. There is a paved pathway which leads to the bottom of the garden where there is a paved patio/seating area, along with a useful storage shed. Pedestrian access to the side leads to the front of the property. There are excellent parking options with a good-sized, block paved driveway to the front allowing parking for up to three vehicles, in addition to an integral garage.
Entrance Porch - Door into :
Living Room - 5.13m x 3.84m (16'10 x 12'7) - Window to front aspect. Stairs to first floor. Open plan to :
Kitchen / Diner - 3.30m x 3.10m (10'10 x 10'2) - Ample space for family sized dining table. Bi-folding doors opening on to the conservatory. Wall and base units with space for appliances. Large under stairs larder/storage cupboard Integrated oven with microwave above
Conservatory / Lean To - Door into the garden.
First Floor Landing - Doors to all rooms.
Master Bedroom - 5.13m x 4.67m (16'10 x 15'4) - Fitted wardrobes. Window to front aspect.
Bedroom - 4.45m x 3.10m (14'7 x 10'2) - Window to rear aspect.
Bedroom - 3.05m x 2.79m (10' x 9'2) - Window to front aspect.
Exterior - Rear Garden - Side access through to the front garden. The rear garden is predominantly laid to lawn with a pathway leading to the bottom of the garden where there is a seating/patio area. Storage shed.
Exterior - Front Garden - Block paved driveway allowing off street parking for three vehicles.
Integral Garage. - 5.44m x 3.10m (17'10 x 10'2) -
Agents Note - Fee Disclosure - As part of the service we offer we may recommend ancillary services to you which we believe may help you with your property transaction. We wish to make you aware, that should you decide to use these services we will receive a referral fee. For full and detailed information please visit 'terms and conditions' on our website
Brochures
Shortcroft, Kelvedon Hatch, Brentwood- COUNCIL TAXA payment made to your local authority in order to pay for local services like schools, libraries, and refuse collection. The amount you pay depends on the value of the property.Read more about council Tax in our glossary page.
- Band: E
- PARKINGDetails of how and where vehicles can be parked, and any associated costs.Read more about parking in our glossary page.
- Garage
- GARDENA property has access to an outdoor space, which could be private or shared.
- Yes
- ACCESSIBILITYHow a property has been adapted to meet the needs of vulnerable or disabled individuals.Read more about accessibility in our glossary page.
- Ask agent
Shortcroft, Kelvedon Hatch, Brentwood
Add an important place to see how long it'd take to get there from our property listings.
__mins driving to your place
Get an instant, personalised result:
- Show sellers you’re serious
- Secure viewings faster with agents
- No impact on your credit score


Your mortgage
Notes
Staying secure when looking for property
Ensure you're up to date with our latest advice on how to avoid fraud or scams when looking for property online.
Visit our security centre to find out moreDisclaimer - Property reference 34425529. The information displayed about this property comprises a property advertisement. Rightmove.co.uk makes no warranty as to the accuracy or completeness of the advertisement or any linked or associated information, and Rightmove has no control over the content. This property advertisement does not constitute property particulars. The information is provided and maintained by Keith Ashton, Kelvedon Hatch. Please contact the selling agent or developer directly to obtain any information which may be available under the terms of The Energy Performance of Buildings (Certificates and Inspections) (England and Wales) Regulations 2007 or the Home Report if in relation to a residential property in Scotland.
*This is the average speed from the provider with the fastest broadband package available at this postcode. The average speed displayed is based on the download speeds of at least 50% of customers at peak time (8pm to 10pm). Fibre/cable services at the postcode are subject to availability and may differ between properties within a postcode. Speeds can be affected by a range of technical and environmental factors. The speed at the property may be lower than that listed above. You can check the estimated speed and confirm availability to a property prior to purchasing on the broadband provider's website. Providers may increase charges. The information is provided and maintained by Decision Technologies Limited. **This is indicative only and based on a 2-person household with multiple devices and simultaneous usage. Broadband performance is affected by multiple factors including number of occupants and devices, simultaneous usage, router range etc. For more information speak to your broadband provider.
Map data ©OpenStreetMap contributors.





