Land North of Leys Hills, Bishopswood, Ross-on-Wye, Herefordshire, HR9
- PROPERTY TYPE
Plot
- SIZE
1,969 sq ft
183 sq m
Key features
- A Rare Opportunity To Acquire A Prime Development Plot
- Elevated Rural Setting
- Planning Granted For Two Detached Four Bedroom Houses
- Each 1969sq ft
- Planning ref:
- Planning reference P240309/F
Description
Front Cover
Location
Leys Hill is a particularly desirable location, positioned on the edge of the village of Walford, and enjoying an elevated setting with attractive views across rolling countryside. The area lies close to the Wye Valley Area of Outstanding Natural Beauty, making it popular with those seeking a peaceful rural environment without sacrificing accessibility.
The nearby market town of Ross-on-Wye offers an excellent range of amenities including independent shops, cafés, restaurants and well-regarded schools, along with a strong community atmosphere and regular markets.
Transport links are a notable benefit of the location. The A40 provides convenient access towards Hereford, Monmouth and Gloucester, with onward connections to the M50 and M5, allowing easy travel to the Midlands, Bristol and South Wales. Rail services are also available from nearby stations, offering further regional connectivity.
Leys Hill combines countryside living with excellent access to services and transport links, making it an ideal setting for a high-quality residential development.
Description
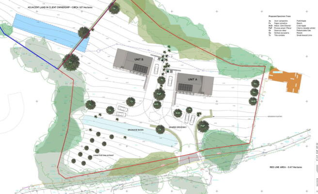
A rare opportunity to acquire a prime development plot in an elevated and highly regarded rural setting, with planning permission granted for the construction of two detached dwellings.
The site occupies a prominent position on Leys Hill and benefits from carefully considered, architect-designed proposals that respond sensitively to the landscape. The approved scheme provides for two substantial modern four bedroomed homes, each designed to enjoy the setting, generous internal accommodation and far-reaching views across the surrounding countryside.
The consented plans illustrate well-balanced dwellings arranged over two floors, with open-plan kitchen, dining and living spaces forming the heart of each home. Extensive glazing is proposed to maximise natural light and to create a strong connection between internal spaces and the outdoor environment. The layouts also allow for flexible accommodation, suitable for family living and home working.
Externally, the proposals include private parking, landscaped gardens and defined plot boundaries, ensuring a strong sense of separation between the two dwellings while maintaining an open, spacious feel across the site.
The plot presents an excellent opportunity for developers or private purchasers seeking to build two high-quality homes in a sought-after location, subject to the approved plans and any pre-planning conditions.
Planning Permission:
Planning permission has been granted under Herefordshire Council planning reference (P240309/F).
Land
There is an additional 1.3 acres of land available for £100,000. Further information is available from the agents’ office.
Services
We have been advised that mains electric services and water are available to be connected to the site with heating/hot water being connected via air source heat pumps on each plot. Drainage is to be connected to a private system. This information has not been checked with the respective service providers and interested parties may wish to make their own enquiries with the relevant local authority. No statement relating to services or appliances should be taken to imply that such items are in satisfactory working order and intending occupiers are advised to satisfy themselves where necessary.
Directions
Council Tax
This information may have been obtained from the local council website only and applicants are advised to consider obtaining written confirmation.
Energy Performance Certificate
Viewing
General
Intending purchasers will be required to produce identification documentation and proof of funding in order to comply with The Money Laundering, Terrorist Financing and Transfer of Funds Regulations 2017. More information can be made available upon request.
John Goodwin FRICS has made every effort to ensure that measurements and particulars are accurate however prospective purchasers/tenants must satisfy themselves by inspection or otherwise as to the accuracy of the information provided. No information with regard to planning use, structural integrity, tenure, availability/operation, business rates, services or appliances has been formally verified and therefore prospective purchasers/tenants are requested to seek validation of all such matters prior to submitting a formal or informal intention to purchase/lease the property or enter into any contract.
Tenure
Land North of Leys Hills, Bishopswood, Ross-on-Wye, Herefordshire, HR9
NEAREST STATIONS
Distances are straight line measurements from the centre of the postcode- Lydney Station11.0 miles
Notes
Disclaimer - Property reference S1577691. The information displayed about this property comprises a property advertisement. Rightmove.co.uk makes no warranty as to the accuracy or completeness of the advertisement or any linked or associated information, and Rightmove has no control over the content. This property advertisement does not constitute property particulars. The information is provided and maintained by John Goodwin FRICS, Ross on wye. Please contact the selling agent or developer directly to obtain any information which may be available under the terms of The Energy Performance of Buildings (Certificates and Inspections) (England and Wales) Regulations 2007 or the Home Report if in relation to a residential property in Scotland.
Map data ©OpenStreetMap contributors.




