
2 bedroom ground floor flat for rent
Bampfield Street, Portslade, Brighton

Letting details
- Let available date:
- Now
- Deposit:
- £1,730A deposit provides security for a landlord against damage, or unpaid rent by a tenant.Read more about deposit in our glossary page.
- Min. Tenancy:
- Ask agent How long the landlord offers to let the property for.Read more about tenancy length in our glossary page.
- Let type:
- Long term
- Furnish type:
- Unfurnished
- Council Tax:
- Ask agent
- PROPERTY TYPE
Ground Flat
- BEDROOMS
2
- BATHROOMS
1
- SIZE
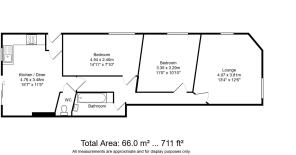
711 sq ft
66 sq m
Key features
- Newly refurbished ground floor flat
- Two bedrooms
- South facing patio garden
- Spacious kitchen/breakfast room
- White bathroom suite
- Neutrally presented interior with new carpets
- Private street entrance
- Available immediately, unfurnished
- Gas fired central heating and double glazed windows
- Early viewing recommended
Description
Entrance Hall -
Kitchen/Diner - 4.76 x 3.48 (15'7" x 11'5") -
Lounge - 4.07 x 3.81 (13'4" x 12'5") -
Bedroom 1 - 4.54 x 2.40 (14'10" x 7'10") -
Bedroom 2 - 3.35 x 3.29 (10'11" x 10'9") -
Bathroom -
Property Information - Council Tax Band A: £1,637.19 2025/2026
Utilities: Mains Gas and Electric. Mains water and sewerage
Parking: Free on-street parking
Broadband: Standard 15 Mbps, Superfast 80 Mbps, Ultrafast 1800 Mbps
Mobile: Good coverage (OFCOM checker)
Brochures
Bampfield Street, Portslade, BrightonBrochure- COUNCIL TAXA payment made to your local authority in order to pay for local services like schools, libraries, and refuse collection. The amount you pay depends on the value of the property.Read more about council Tax in our glossary page.
- Band: A
- PARKINGDetails of how and where vehicles can be parked, and any associated costs.Read more about parking in our glossary page.
- Ask agent
- GARDENA property has access to an outdoor space, which could be private or shared.
- Yes
- ACCESSIBILITYHow a property has been adapted to meet the needs of vulnerable or disabled individuals.Read more about accessibility in our glossary page.
- Ask agent
Bampfield Street, Portslade, Brighton
Add an important place to see how long it'd take to get there from our property listings.
__mins driving to your place



Notes
Staying secure when looking for property
Ensure you're up to date with our latest advice on how to avoid fraud or scams when looking for property online.
Visit our security centre to find out moreDisclaimer - Property reference 34425448. The information displayed about this property comprises a property advertisement. Rightmove.co.uk makes no warranty as to the accuracy or completeness of the advertisement or any linked or associated information, and Rightmove has no control over the content. This property advertisement does not constitute property particulars. The information is provided and maintained by Spencer & Leigh, Brighton. Please contact the selling agent or developer directly to obtain any information which may be available under the terms of The Energy Performance of Buildings (Certificates and Inspections) (England and Wales) Regulations 2007 or the Home Report if in relation to a residential property in Scotland.
*This is the average speed from the provider with the fastest broadband package available at this postcode. The average speed displayed is based on the download speeds of at least 50% of customers at peak time (8pm to 10pm). Fibre/cable services at the postcode are subject to availability and may differ between properties within a postcode. Speeds can be affected by a range of technical and environmental factors. The speed at the property may be lower than that listed above. You can check the estimated speed and confirm availability to a property prior to purchasing on the broadband provider's website. Providers may increase charges. The information is provided and maintained by Decision Technologies Limited. **This is indicative only and based on a 2-person household with multiple devices and simultaneous usage. Broadband performance is affected by multiple factors including number of occupants and devices, simultaneous usage, router range etc. For more information speak to your broadband provider.
Map data ©OpenStreetMap contributors.





