
3 bedroom apartment for sale
Oaklands Park, 2 Littleworth Road, Esher, KT10

- PROPERTY TYPE
Apartment
- BEDROOMS
3
- BATHROOMS
2
- SIZE
1,171 sq ft
109 sq m
Key features
- Brand new development built by award winning Shanly Homes
- Extensive Private Terrace
- Built in wardrobes to bedrooms 1 & 2
- Study/Bedroom 3
- A-rated boiler
- Underfloor heating
- Smart Heating & Zoned Controls
- 2 Parking Spaces
- Car charging point
- 10 Year New Home Warranty
Description
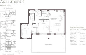
Apartment 4 is a brand-new three-bedroom, ground floor apartment of 1,171 sq ft, with a bright open-plan living & dining area that flows effortlessly onto an expansive private terrace. Two of the three bedrooms are doubles with built-in wardrobes and the principal also featuring a stylish en-suite. A strategically positioned study / third bedroom, offers added versatility.
A luxury new development of stylish one, two and three-bedroom apartments ideally situated just over a mile from the centre of this lovely town, with its shops, cafés, restaurants and amenities. Oaklands Park is surrounded by lush green spaces and perfectly placed to make the most of the glorious Surrey countryside, with picturesque towns such as Hinchley Wood, Cobham and Kingston upon Thames all close by. When you want to travel for work or leisure, Esher has excellent transport connections. The many cultural, culinary and sporting delights of London are 23 minutes by train from the town’s station, a mile away. The M25 is 5 miles via the A3, opening up the motorway network to the capital and beyond. While Heathrow Airport is located within 30 minutes.
Tenure: Leasehold with 999 year lease
Service Charge: Approximately £2,150 per annum.
Marketing Suite open 7 days a week 10am to 5pm with evening appointments available upon request.
N.B. External image is of the development with internal images being digitally produced for illustrative purposes only.
**Subject to T's C's - Please speak with our sales consultants on site for full information.
Brochures
Particulars- COUNCIL TAXA payment made to your local authority in order to pay for local services like schools, libraries, and refuse collection. The amount you pay depends on the value of the property.Read more about council Tax in our glossary page.
- Band: F
- PARKINGDetails of how and where vehicles can be parked, and any associated costs.Read more about parking in our glossary page.
- Yes
- GARDENA property has access to an outdoor space, which could be private or shared.
- Ask agent
- ACCESSIBILITYHow a property has been adapted to meet the needs of vulnerable or disabled individuals.Read more about accessibility in our glossary page.
- Ask agent
Oaklands Park, 2 Littleworth Road, Esher, KT10
Add an important place to see how long it'd take to get there from our property listings.
__mins driving to your place
Get an instant, personalised result:
- Show sellers you’re serious
- Secure viewings faster with agents
- No impact on your credit score


Your mortgage
Notes
Staying secure when looking for property
Ensure you're up to date with our latest advice on how to avoid fraud or scams when looking for property online.
Visit our security centre to find out moreDisclaimer - Property reference NEH230110. The information displayed about this property comprises a property advertisement. Rightmove.co.uk makes no warranty as to the accuracy or completeness of the advertisement or any linked or associated information, and Rightmove has no control over the content. This property advertisement does not constitute property particulars. The information is provided and maintained by Curchods Estate Agents, Esher. Please contact the selling agent or developer directly to obtain any information which may be available under the terms of The Energy Performance of Buildings (Certificates and Inspections) (England and Wales) Regulations 2007 or the Home Report if in relation to a residential property in Scotland.
*This is the average speed from the provider with the fastest broadband package available at this postcode. The average speed displayed is based on the download speeds of at least 50% of customers at peak time (8pm to 10pm). Fibre/cable services at the postcode are subject to availability and may differ between properties within a postcode. Speeds can be affected by a range of technical and environmental factors. The speed at the property may be lower than that listed above. You can check the estimated speed and confirm availability to a property prior to purchasing on the broadband provider's website. Providers may increase charges. The information is provided and maintained by Decision Technologies Limited. **This is indicative only and based on a 2-person household with multiple devices and simultaneous usage. Broadband performance is affected by multiple factors including number of occupants and devices, simultaneous usage, router range etc. For more information speak to your broadband provider.
Map data ©OpenStreetMap contributors.






