
Park Road, Duffield, Belper, Derbyshire

- PROPERTY TYPE
Detached
- BEDROOMS
5
- BATHROOMS
2
- SIZE
2,007 sq ft
186 sq m
- TENUREDescribes how you own a property. There are different types of tenure - freehold, leasehold, and commonhold.Read more about tenure in our glossary page.
Freehold
Key features
- Extended Family Detached Home - NO UPWARD CHAIN
- Ecclesbourne School Catchment Area
- Lounge, Family Room & Study/Bedroom 6
- Living Kitchen/Dining Room
- Utility & Cloakroom
- Five Bedrooms & Two Bathrooms
- Sunny Private Garden with Sun Patio & Shed
- Driveway For Three/Four Cars
- Integral Garage
- Viewing Absolutely Essential
Description
The Location - The village of Duffield is extremely sought after with an excellent range of amenities including a varied selection of shops and schools including The Meadows and William Gilbert Primary Schools and the noted Ecclesbourne Secondary School. There is a regular train service to Derby City Centre which lies some five miles to the south of the village. The thriving market town of Belper is situated three miles north of the village and provides a more comprehensive range of shops and leisure facilities. Local recreational facilities within the village include squash, tennis, football, cricket and Chevin golf course. A further point to note is that the Derwent Valley in which the village of Duffield nestles is one of the few World Heritage Sites.
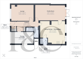
Accommodation -
Ground Floor -
Porch - 1.49 x 0.95 (4'10" x 3'1") - With fitted coats cupboard, tiled flooring, half glazed entrance door and open square archway leading into hallway.
Hallway - 4.65 x 1.17 (15'3" x 3'10") - With radiator, staircase leading to first floor and integral door giving access to garage.
Cloakroom - 2.66 x 0.86 (8'8" x 2'9") - With low level WC, washbasin, tiled flooring, coats storage space and internal pine panelled door.
Lounge - 4.87 x 3.45 (15'11" x 11'3") - With fireplace with surrounds with inset living flame gas fire and raised hearth, wall lights, radiator, double glazed window and internal pine panelled door.
Family Room - 6.40 x 3.24 (20'11" x 10'7") - With tiled flooring, two radiators and double glazed French doors opening onto sun patio and private rear garden.
Living Kitchen/Dining Room - 5.40 x 4.91 (17'8" x 16'1") - With one and a half sink unit, base units with drawer and cupboard fronts, tiled splash-backs, wall and base fitted units with attractive matching Quartz worktops, built-in AEG induction hob with extractor hood over, built-in double AEG electric fan assisted oven, integrated AEG fridge and AEG freezer, integrated dishwasher, tiled flooring, spotlights to ceiling, kickboard heaters, two double glazed windows overlooking private rear garden and concealed worktop lights.
Utility/Laundry - 1.58 x 1.26 (5'2" x 4'1") - With plumbing for automatic washing machine, space for tumble dryer, fitted shelving and double glazed side access door.
First Floor -
Landing - 4.65 x 2.09 (15'3" x 6'10") - With two radiators, double glazed window and staircase leading to second floor.
Bedroom Three - 3.61 x 3.41 (11'10" x 11'2") - With radiator, double glazed window to front and internal pine panelled door.
Bedroom Four - 3.31 x 3.12 (10'10" x 10'2") - With radiator, double glazed window to rear and internal pine panelled door.
Bedroom Five - 3.12 x 2.40 (10'2" x 7'10") - With radiator, double glazed window to rear and internal pine panelled door.
Bedroom Six/Study - 3.42 x 2.36 (11'2" x 7'8") - With radiator, double glazed window to front and internal pine panelled door.
Family Bathroom - 2.44 x 2.08 (8'0" x 6'9") - With bath with shower over, pedestal wash handbasin, low level WC, fully tiled walls, tiled flooring, built-in storage cupboard, shaver point, inset mirror, heated chrome towel rail/radiator, double glazed obscure window and internal pine panelled door.
Second Floor -
Landing - 1.87 x 1.00 (6'1" x 3'3") -
Bedroom One - 6.07 x 4.60 (19'10" x 15'1") - With fitted wardrobes with matching base cupboards and dressing table, two radiators, double glazed window to front, two double glazed windows to rear and internal pine panelled door.
Bedroom Two/Dressing Room - 3.20 x 2.56 (10'5" x 8'4") - With radiator, double glazed window to front, double glazed window to side and internal pine panelled door.
Family Shower Room - 3.23 x 1.60 (10'7" x 5'2") - With walk-in shower cubicle with chrome shower, twin wash basins, low level WC, fully tiled walls, tiled flooring, two mirrors, heated chrome towel rail/radiator, shaver point, extractor fan, double glazed obscure window and internal pine panelled door.
Garden - To the rear of the property is a private west-facing enclosed rear garden laid to lawn with a varied selection of plants with sun patio and fencing.
Driveway - A tarmac driveway with block paved edge provides car standing spaces for three/four cars.
Garage - 4.81 x 2.47 (15'9" x 8'1") - With concrete floor, power and lighting, side window, up and over front door and integral door giving access to property.
Boiler Room - With central heating boiler and hi-efficiency hot water cylinder.
Council Tax - E - Amber Valley
Brochures
Park Road, Duffield, Belper, DerbyshireBrochure- COUNCIL TAXA payment made to your local authority in order to pay for local services like schools, libraries, and refuse collection. The amount you pay depends on the value of the property.Read more about council Tax in our glossary page.
- Band: E
- PARKINGDetails of how and where vehicles can be parked, and any associated costs.Read more about parking in our glossary page.
- Yes
- GARDENA property has access to an outdoor space, which could be private or shared.
- Yes
- ACCESSIBILITYHow a property has been adapted to meet the needs of vulnerable or disabled individuals.Read more about accessibility in our glossary page.
- Ask agent
Park Road, Duffield, Belper, Derbyshire
Add an important place to see how long it'd take to get there from our property listings.
__mins driving to your place
Get an instant, personalised result:
- Show sellers you’re serious
- Secure viewings faster with agents
- No impact on your credit score



Affordability
Notes
Staying secure when looking for property
Ensure you're up to date with our latest advice on how to avoid fraud or scams when looking for property online.
Visit our security centre to find out moreDisclaimer - Property reference 34427595. The information displayed about this property comprises a property advertisement. Rightmove.co.uk makes no warranty as to the accuracy or completeness of the advertisement or any linked or associated information, and Rightmove has no control over the content. This property advertisement does not constitute property particulars. The information is provided and maintained by Fletcher & Company, Duffield. Please contact the selling agent or developer directly to obtain any information which may be available under the terms of The Energy Performance of Buildings (Certificates and Inspections) (England and Wales) Regulations 2007 or the Home Report if in relation to a residential property in Scotland.
*This is the average speed from the provider with the fastest broadband package available at this postcode. The average speed displayed is based on the download speeds of at least 50% of customers at peak time (8pm to 10pm). Fibre/cable services at the postcode are subject to availability and may differ between properties within a postcode. Speeds can be affected by a range of technical and environmental factors. The speed at the property may be lower than that listed above. You can check the estimated speed and confirm availability to a property prior to purchasing on the broadband provider's website. Providers may increase charges. The information is provided and maintained by Decision Technologies Limited. **This is indicative only and based on a 2-person household with multiple devices and simultaneous usage. Broadband performance is affected by multiple factors including number of occupants and devices, simultaneous usage, router range etc. For more information speak to your broadband provider.
Map data ©OpenStreetMap contributors.






