
High Street, Merchant City, Glasgow City

- PROPERTY TYPE
Penthouse
- BEDROOMS
4
- BATHROOMS
4
- SIZE
1,873 sq ft
174 sq m
- TENUREDescribes how you own a property. There are different types of tenure - freehold, leasehold, and commonhold.Read more about tenure in our glossary page.
Freehold
Description
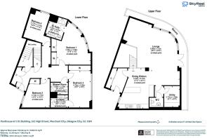
With secure parking and a private wraparound terrace there are striking views east, south and west over the city skyline and beyond, this spacious duplex penthouse apartment extends to circa 1,887 sq ft. The flexible accommodation spans over two floors and provides four bedrooms, an extensive open plan living dining kitchen space with feature curved walls, there are three bathrooms, a cloakroom W.C., a spacious utility room and well considered storage. The property has fresh décor, double glazing, gas central heating and an excellent EPC Band C.
Rarely available, this style of apartment represents a true Premier Penthouse within a landmark Merchant City building. Completed in 2005–2006, the development played a key role in the ongoing regeneration of the area. Centred around residents’ courtyard gardens, the development offers a stylish and contemporary living environment, of which this exceptional apartment is a standout example.
Viewing is highly recommended to fully appreciate the quality and modern contemporary appeal of this impressive property
Situation:
Situated on the corner of High Street and Ingram Street at the start of the Merchant City, this address enjoys one of Glasgow’s most sought after and vibrant social locations. The area offers an exceptional range of amenities, including boutique and specialist shopping, stylish wine bars, and numerous highly acclaimed restaurants. Over recent decades, the Merchant City has undergone extensive regeneration, evolving into a dynamic destination neighbourhood with a blend of residential, commercial and cultural developments. The property is ideally placed for Glasgow’s Style Mile and the International Financial Services District, both only a short walk away. Transport connections are excellent, with frequent services and easy access to Queen Street and Central Stations, as well as Buchanan Street and St Enoch subway stations. Road links are strong, and parking spaces are available to rent nearby.
Travel Directions:
Walking from George Square continue South onto South Frederick Street. At the lights turn left onto Ingram Street passing by the Italian Centre on the left. Crossing at the pedestrian lights on the Glassford Street Junction, continue heading east on Ingram Street and on to the junction with High Street, turning left into High Street, you will find the entrance to G1 161 High Street almost immediately on the left-hand side. Once inside the building, take the lift to the seventh floor.
EPC Rating: C
Council Tax Band: G
- COUNCIL TAXA payment made to your local authority in order to pay for local services like schools, libraries, and refuse collection. The amount you pay depends on the value of the property.Read more about council Tax in our glossary page.
- Band: G
- PARKINGDetails of how and where vehicles can be parked, and any associated costs.Read more about parking in our glossary page.
- Yes
- GARDENA property has access to an outdoor space, which could be private or shared.
- Yes
- ACCESSIBILITYHow a property has been adapted to meet the needs of vulnerable or disabled individuals.Read more about accessibility in our glossary page.
- Ask agent
High Street, Merchant City, Glasgow City
Add an important place to see how long it'd take to get there from our property listings.
__mins driving to your place
Get an instant, personalised result:
- Show sellers you’re serious
- Secure viewings faster with agents
- No impact on your credit score
Your mortgage
Notes
Staying secure when looking for property
Ensure you're up to date with our latest advice on how to avoid fraud or scams when looking for property online.
Visit our security centre to find out moreDisclaimer - Property reference GCY250183. The information displayed about this property comprises a property advertisement. Rightmove.co.uk makes no warranty as to the accuracy or completeness of the advertisement or any linked or associated information, and Rightmove has no control over the content. This property advertisement does not constitute property particulars. The information is provided and maintained by Rettie, Glasgow City. Please contact the selling agent or developer directly to obtain any information which may be available under the terms of The Energy Performance of Buildings (Certificates and Inspections) (England and Wales) Regulations 2007 or the Home Report if in relation to a residential property in Scotland.
*This is the average speed from the provider with the fastest broadband package available at this postcode. The average speed displayed is based on the download speeds of at least 50% of customers at peak time (8pm to 10pm). Fibre/cable services at the postcode are subject to availability and may differ between properties within a postcode. Speeds can be affected by a range of technical and environmental factors. The speed at the property may be lower than that listed above. You can check the estimated speed and confirm availability to a property prior to purchasing on the broadband provider's website. Providers may increase charges. The information is provided and maintained by Decision Technologies Limited. **This is indicative only and based on a 2-person household with multiple devices and simultaneous usage. Broadband performance is affected by multiple factors including number of occupants and devices, simultaneous usage, router range etc. For more information speak to your broadband provider.
Map data ©OpenStreetMap contributors.






