
1 bedroom apartment for sale
Homebank House, Bidston Road, Oxton

- PROPERTY TYPE
Apartment
- BEDROOMS
1
- BATHROOMS
1
- SIZE
Ask agent
Key features
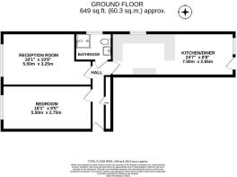
- EXTRA LARGE ONE BEDROOMED GROUND FLOOR APARTMENT
- warden assisted
- A one off within the development for floor area
Description
SERIOUS ATTENTION PLEASE to appreciate this ONE OFF apartment within Oxton. That's because SIZE does matter. This is the only apartment in this development of its size - it's very impressive XXL size; competing favourably with any warden or non warden local two bedroomed purpose built apartments costing nearly twice the amount - except, of course, this is one bedroomed, not two.
But a grand bedroom it is; so too the kitchen with dining room, the living room (compared to the living room floor area generally within Homebank House) and the storage too...
More than this, this apartment basically has its own front door - so if you didn't feel like socialising with your neighbours at the communal entrance and preferred to get straight 'home'; then there's a door directly from the car park to the apartment. In fact your parked car is less than a hope, skip and a jump away - so much easier to transport your Sainsbury's bags to the kitchen.
Also take note please of the open aspect view from both bedroom and living room. An aspect that looks down upon some communal garden boundaries - a view which is south westerly and private..
Homebank House stands opposite St Saviour's Church and The Caernarfon public house with restaurant. The village and all its shops is two minutes by car. A bus service runs along Bidston Rad whilst for visitors, the motorway is certainly no more than 10 mins. For directions please Sat Nav: CH43 2GB
Tenure
Homebank House offers leasehold apartments for sale. This apartment has 58 years to run on a 99 year lease. Current service charges are £3,600 per annum. This includes a Warden, (manager is on call 8.30am - 4.00pm Mon - Friday), a pull chord emergency service, lift, laundry facilities, communal living room and building insurance. The development is age restricted to 60 years and above please. (if a joint purchase the second owner can be over 55 years old). There is a ground rent of £550 per annum
- COUNCIL TAXA payment made to your local authority in order to pay for local services like schools, libraries, and refuse collection. The amount you pay depends on the value of the property.Read more about council Tax in our glossary page.
- Ask agent
- PARKINGDetails of how and where vehicles can be parked, and any associated costs.Read more about parking in our glossary page.
- On street
- GARDENA property has access to an outdoor space, which could be private or shared.
- Ask agent
- ACCESSIBILITYHow a property has been adapted to meet the needs of vulnerable or disabled individuals.Read more about accessibility in our glossary page.
- Ask agent
Homebank House, Bidston Road, Oxton
Add an important place to see how long it'd take to get there from our property listings.
__mins driving to your place
Get an instant, personalised result:
- Show sellers you’re serious
- Secure viewings faster with agents
- No impact on your credit score
Your mortgage
Notes
Staying secure when looking for property
Ensure you're up to date with our latest advice on how to avoid fraud or scams when looking for property online.
Visit our security centre to find out moreDisclaimer - Property reference S1579137. The information displayed about this property comprises a property advertisement. Rightmove.co.uk makes no warranty as to the accuracy or completeness of the advertisement or any linked or associated information, and Rightmove has no control over the content. This property advertisement does not constitute property particulars. The information is provided and maintained by Brennan Ayre O'Neill, Prenton. Please contact the selling agent or developer directly to obtain any information which may be available under the terms of The Energy Performance of Buildings (Certificates and Inspections) (England and Wales) Regulations 2007 or the Home Report if in relation to a residential property in Scotland.
*This is the average speed from the provider with the fastest broadband package available at this postcode. The average speed displayed is based on the download speeds of at least 50% of customers at peak time (8pm to 10pm). Fibre/cable services at the postcode are subject to availability and may differ between properties within a postcode. Speeds can be affected by a range of technical and environmental factors. The speed at the property may be lower than that listed above. You can check the estimated speed and confirm availability to a property prior to purchasing on the broadband provider's website. Providers may increase charges. The information is provided and maintained by Decision Technologies Limited. **This is indicative only and based on a 2-person household with multiple devices and simultaneous usage. Broadband performance is affected by multiple factors including number of occupants and devices, simultaneous usage, router range etc. For more information speak to your broadband provider.
Map data ©OpenStreetMap contributors.








