
4 bedroom detached house for sale
Botley, Oxford, OX2

- PROPERTY TYPE
Detached
- BEDROOMS
4
- BATHROOMS
2
- SIZE
1,236 sq ft
115 sq m
- TENUREDescribes how you own a property. There are different types of tenure - freehold, leasehold, and commonhold.Read more about tenure in our glossary page.
Freehold
Key features
- Modern Detached Family Home
- Four Bedrooms
- Spacious Reception Room
- Fitted Kitchen/Dining Room
- Utility Room
- Cloakroom
- Modern Family Bathroom
- Modern Ensuite Shower Room
- Garage & Ample Off Street Parking
- South West Facing Rear Garden
Description
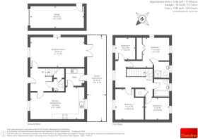
An opportunity to purchase a modern four bedroom detached family home offering approximately 1,250 sq ft of accommodation over two floors. The property benefits from a south west facing garden and is offered with no forward chain.
Property Details
The ground floor accommodation consists of an entrance hall with a staircase leading to the first floor landing, a spacious triple aspect reception room with double glazed French doors leading to the south west facing rear garden, an L-shaped fitted kitchen/dining room, a utility room with a double glazed door leading to the south west facing rear garden and a separate cloakroom with an understairs storage cupboard.
The first floor accommodation consists of a landing with an airing cupboard, a principal double aspect double bedroom with a built-in wardrobe and a modern ensuite shower room, two further double bedrooms, a single bedroom and a modern family bathroom.
Outside to the front is a block brick hardstanding providing off street parking for two vehicles with a flower and shrub border. To the side is a hardstanding driveway providing 'nose-to-tail' off street parking for two vehicles with direct access to a single garage with a door leading to the rear garden. To the rear is a south west facing mainly walled garden which is mostly laid to lawn, rest laid to patio.
Botley is a residential suburb to the West of Oxford. Communication links are excellent, with the A34 providing access to M4 (J13) and M40 (J9). Oxford Railway station is only circa 1 mile away and offers a frequent service into London Paddington. There is also easy access to the new Parkway railway station and a cycle path providing direct access to Oxford City through the meadows. The Seacourt Park and Ride is close by situated on the Botley Road.
The Westway Shopping Centre has undergone a major redevelopment offering a variety of shops and restaurants including a Co-op Welcome and Post Office, a Tesco Express, a MediPill Pharmacy and an independent gym. A number of larger stores are found on the Botley Road including a Waitrose, an Aldi and a Home Bargains as well at the Botley Road Retail Park. There is a broad selection of pubs and restaurants in the area including The Fishes in nearby North Hinksey village and The Vine in Cumnor.
Brochures
More details from Chancellors- COUNCIL TAXA payment made to your local authority in order to pay for local services like schools, libraries, and refuse collection. The amount you pay depends on the value of the property.Read more about council Tax in our glossary page.
- Band: E
- PARKINGDetails of how and where vehicles can be parked, and any associated costs.Read more about parking in our glossary page.
- Garage,Off street
- GARDENA property has access to an outdoor space, which could be private or shared.
- Private garden
- ACCESSIBILITYHow a property has been adapted to meet the needs of vulnerable or disabled individuals.Read more about accessibility in our glossary page.
- Ask agent
Botley, Oxford, OX2
Add an important place to see how long it'd take to get there from our property listings.
__mins driving to your place
Get an instant, personalised result:
- Show sellers you’re serious
- Secure viewings faster with agents
- No impact on your credit score



Your mortgage
Notes
Staying secure when looking for property
Ensure you're up to date with our latest advice on how to avoid fraud or scams when looking for property online.
Visit our security centre to find out moreDisclaimer - Property reference 6075252. The information displayed about this property comprises a property advertisement. Rightmove.co.uk makes no warranty as to the accuracy or completeness of the advertisement or any linked or associated information, and Rightmove has no control over the content. This property advertisement does not constitute property particulars. The information is provided and maintained by Chancellors, Botley. Please contact the selling agent or developer directly to obtain any information which may be available under the terms of The Energy Performance of Buildings (Certificates and Inspections) (England and Wales) Regulations 2007 or the Home Report if in relation to a residential property in Scotland.
*This is the average speed from the provider with the fastest broadband package available at this postcode. The average speed displayed is based on the download speeds of at least 50% of customers at peak time (8pm to 10pm). Fibre/cable services at the postcode are subject to availability and may differ between properties within a postcode. Speeds can be affected by a range of technical and environmental factors. The speed at the property may be lower than that listed above. You can check the estimated speed and confirm availability to a property prior to purchasing on the broadband provider's website. Providers may increase charges. The information is provided and maintained by Decision Technologies Limited. **This is indicative only and based on a 2-person household with multiple devices and simultaneous usage. Broadband performance is affected by multiple factors including number of occupants and devices, simultaneous usage, router range etc. For more information speak to your broadband provider.
Map data ©OpenStreetMap contributors.





