
Ellesmere Avenue, Hull, HU8

- PROPERTY TYPE
Detached
- BEDROOMS
3
- BATHROOMS
2
- SIZE
Ask agent
- TENUREDescribes how you own a property. There are different types of tenure - freehold, leasehold, and commonhold.Read more about tenure in our glossary page.
Freehold
Key features
- Downstairs WC
- Master Bedroom with En-Suite
- Immediate Viewing is Essential to Fully Appreciate all this Property has to Offer!!!!
- Sought After East Hull Location
- A Spacious Dining Kitchen
- A useable loft Space
- A 3 Bedroom Detached House
- A Driveway offering ample off road parking
- Contemporary Bathroom
- Close Proximity to well regarded Primary and Secondary Schools.
Description
Zest are delighted to offer to the sales market this unique 3-bedroom detached house located on Ellesmere Avenue, East Hull.
This stunning property presents a fantastic opportunity for the discerning buyer offering spacious accommodation both inside and out. The property briefly comprises: a spacious fitted dining kitchen, Cloakroom/WC, a lovely lounge overlooking the rear garden. To the first floor are three generous bedrooms and a use able loft space, perfect for a growing family or those seeking extra room. The contemporary bathroom and en-suite to the master bedroom offer luxurious comfort and convenience.
Step outside to discover a spacious rear garden with a decked seating area adorned with a covered pergola, creating an idyllic space for outdoor relaxation and entertainment. The sought-after East Hull location provides an enviable lifestyle with close proximity to well-regarded primary and secondary schools.
For everyday convenience, this property is just a short distance from Tesco Express ensuring easy access to amenities. Additionally, the property is ideally located near public transport, with the nearest bus stop just a stones throw away, providing seamless connectivity.
Embrace the vibrant community and leisure opportunities with the propertys proximity to local attractions, parks, and a plethora of dining options. Whether its shopping at nearby centres, accessing healthcare facilities, or enjoying a night out, this location offers it all.
Dont miss the chance to own this remarkable property. Immediate viewing is essential to fully appreciate all this home has to offer. Make this exceptional opportunity yours and experience the epitome of comfortable living in a prosperous and vibrant area.
Mains Gas, Water, Electricity, Drainage and Sewerage
EPC-D
Council Tax Band- C
Flood Risk-LOW-
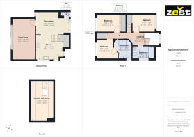
Dining Kitchen
A spacious fitted dining kitchen with a uPVC entrance door, laminate flooring, a uPVC window to the side elevation, a radiator, an under stairs cupboard, a uPVC window to the front elevation, a range of wall, base and drawer cabinets with contrasting work surfaces over, a stainless steel sink with mixer tap over, plumbing for an automtic washing washing, an intergrated double oven, '5' Ring Gas Hob, spotlights to the ceiling, a further window to the front eleavtion, a radiator and carpeted stairs leading to the first floor.
Cloakroom/WC
With laminate flooring, a low-level WC, a wall mounted hand wash basin and a uPVC window to the front elevation.
Lounge
A spacious lounge with laminate flooring, a radaitor an uPVC patio doors overlooking and leading to the enclosed rear garden.
Landing
With carpeted flooring, a uPVC window to the front eleavtion and carpeted stairs leading to the usable loft space.
Contemporary Bathroom
With tiled flooring, a back-to-wall WC, a hand-wash basin set on a vanity unit, a panelled 'P' Shaped Bath with shower over and shower screen, , a uPVC window to the side eleavtion, a heated towel rail and tiling to the walls.
Bedroom One
With carpeted flooring, a radiator, a uPVC window to the rear eleavtion and a wardrobe area with hanging rails.
En-Suite
With tiled flooring, a back-to-wall WC, a hand wash basin set on a vanity unit, a shower enclosure, a uPVC window to the side eleavtion, a radaitor and tiling to the walls.
Bedroom Two
With carpeted flooring, a radiator and a uPVC window to the rear eleavtion and fitted wardrobes.
Bedroom Three
With carpeted flooring, a radaitor, and a uPVC window to the front eleavtion and a built-in cupboard.
Useable Loft Space
With carpeted flooring, a radiator, a Velux window and eaves storage.
Rear of Property
To the rear of the property is a generous enclosed rear garden with a decked seating area with a covered pergola, electricity points making an idea space for entertaining family and friends and alfesco dining. The garden also has a recently fitted paved seating area, a large lawned area and a timber fence forms the rear boundary.
Front of the Property
To the front of the property is a driveway offering off-road parking, and a gravelled area to the front offers additional parking.
- COUNCIL TAXA payment made to your local authority in order to pay for local services like schools, libraries, and refuse collection. The amount you pay depends on the value of the property.Read more about council Tax in our glossary page.
- Ask agent
- PARKINGDetails of how and where vehicles can be parked, and any associated costs.Read more about parking in our glossary page.
- Yes
- GARDENA property has access to an outdoor space, which could be private or shared.
- Yes
- ACCESSIBILITYHow a property has been adapted to meet the needs of vulnerable or disabled individuals.Read more about accessibility in our glossary page.
- Ask agent
Energy performance certificate - ask agent
Ellesmere Avenue, Hull, HU8
Add an important place to see how long it'd take to get there from our property listings.
__mins driving to your place
Get an instant, personalised result:
- Show sellers you’re serious
- Secure viewings faster with agents
- No impact on your credit score
Your mortgage
Notes
Staying secure when looking for property
Ensure you're up to date with our latest advice on how to avoid fraud or scams when looking for property online.
Visit our security centre to find out moreDisclaimer - Property reference 2391. The information displayed about this property comprises a property advertisement. Rightmove.co.uk makes no warranty as to the accuracy or completeness of the advertisement or any linked or associated information, and Rightmove has no control over the content. This property advertisement does not constitute property particulars. The information is provided and maintained by Zest, Hull. Please contact the selling agent or developer directly to obtain any information which may be available under the terms of The Energy Performance of Buildings (Certificates and Inspections) (England and Wales) Regulations 2007 or the Home Report if in relation to a residential property in Scotland.
*This is the average speed from the provider with the fastest broadband package available at this postcode. The average speed displayed is based on the download speeds of at least 50% of customers at peak time (8pm to 10pm). Fibre/cable services at the postcode are subject to availability and may differ between properties within a postcode. Speeds can be affected by a range of technical and environmental factors. The speed at the property may be lower than that listed above. You can check the estimated speed and confirm availability to a property prior to purchasing on the broadband provider's website. Providers may increase charges. The information is provided and maintained by Decision Technologies Limited. **This is indicative only and based on a 2-person household with multiple devices and simultaneous usage. Broadband performance is affected by multiple factors including number of occupants and devices, simultaneous usage, router range etc. For more information speak to your broadband provider.
Map data ©OpenStreetMap contributors.






