
2 bedroom semi-detached bungalow for sale
Walnut Gardens, Kington, Hereford, HR5

- PROPERTY TYPE
Semi-Detached Bungalow
- BEDROOMS
2
- BATHROOMS
1
- SIZE
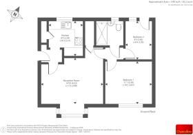
540 sq ft
50 sq m
Key features
- Leasehold Term 999 years from 25/10/1988
- No onward chain
- Leasehold home on managed scheme
- For age 60+ or 55+ with disability
- Two bedrooms
- Living room with bay window
- Kitchen with pantry
- Shower room
- Loft access from second bedroom
- Private low-maintenance rear garden
Description
A two-bedroom leasehold bungalow on a managed scheme for over 60s (or 55+ with a disability), offered with no onward chain and a private, low-maintenance rear garden.
Property Details
This two-bedroom leasehold home is set on a managed scheme run by Midland Heart Ltd, providing a secure and well-maintained community for residents aged 60 or over, or 55+ with a disability. The property is offered with no onward chain.
The accommodation comprises an entrance hall leading to a practical kitchen fitted with wall and floor units, roll-fronted worktops, stainless steel sink and drainer, space for a fridge and freezer, plumbing for a washing machine, and a pantry cupboard.
The living room benefits from a front-facing bay window, electric radiator and an airing cupboard with insulated tank and shelving. An inner hallway provides access to the shower room, fitted with a large tray, screen, pedestal wash basin, WC and Mira electric shower.
The home offers two bedrooms, including a front-facing principal bedroom and a second bedroom with access to the rear garden and loft space. Both bedrooms feature electric heating.
Externally, the property has a private rear garden, landscaped for easy maintenance with stone, slate and paving, plus a timber and felt garden shed.
This property represents an opportunity for low-maintenance, secure living in a well-managed community, with the convenience of a private garden and no onward chain.
Agent Note:
As part of the scheme, potential purchasers are required to meet the residency criteria and submit an application and interview prior to an offer being accepted. A monthly service charge is payable to cover site management and maintenance.
Brochures
More details from Chancellors- COUNCIL TAXA payment made to your local authority in order to pay for local services like schools, libraries, and refuse collection. The amount you pay depends on the value of the property.Read more about council Tax in our glossary page.
- Band: C
- PARKINGDetails of how and where vehicles can be parked, and any associated costs.Read more about parking in our glossary page.
- Off street
- GARDENA property has access to an outdoor space, which could be private or shared.
- Private garden
- ACCESSIBILITYHow a property has been adapted to meet the needs of vulnerable or disabled individuals.Read more about accessibility in our glossary page.
- Ask agent
Walnut Gardens, Kington, Hereford, HR5
Add an important place to see how long it'd take to get there from our property listings.
__mins driving to your place
Get an instant, personalised result:
- Show sellers you’re serious
- Secure viewings faster with agents
- No impact on your credit score
Your mortgage
Notes
Staying secure when looking for property
Ensure you're up to date with our latest advice on how to avoid fraud or scams when looking for property online.
Visit our security centre to find out moreDisclaimer - Property reference 6090523. The information displayed about this property comprises a property advertisement. Rightmove.co.uk makes no warranty as to the accuracy or completeness of the advertisement or any linked or associated information, and Rightmove has no control over the content. This property advertisement does not constitute property particulars. The information is provided and maintained by Chancellors, Kington. Please contact the selling agent or developer directly to obtain any information which may be available under the terms of The Energy Performance of Buildings (Certificates and Inspections) (England and Wales) Regulations 2007 or the Home Report if in relation to a residential property in Scotland.
*This is the average speed from the provider with the fastest broadband package available at this postcode. The average speed displayed is based on the download speeds of at least 50% of customers at peak time (8pm to 10pm). Fibre/cable services at the postcode are subject to availability and may differ between properties within a postcode. Speeds can be affected by a range of technical and environmental factors. The speed at the property may be lower than that listed above. You can check the estimated speed and confirm availability to a property prior to purchasing on the broadband provider's website. Providers may increase charges. The information is provided and maintained by Decision Technologies Limited. **This is indicative only and based on a 2-person household with multiple devices and simultaneous usage. Broadband performance is affected by multiple factors including number of occupants and devices, simultaneous usage, router range etc. For more information speak to your broadband provider.
Map data ©OpenStreetMap contributors.








