3 bedroom semi-detached house for rent
Regent Street, Willenhall, West Midlands, WV13

Letting details
- Let available date:
- 13/02/2026
- Deposit:
- £1,269A deposit provides security for a landlord against damage, or unpaid rent by a tenant.Read more about deposit in our glossary page.
- Min. Tenancy:
- Ask agent How long the landlord offers to let the property for.Read more about tenancy length in our glossary page.
- Let type:
- Long term
- Furnish type:
- Unfurnished
- Council Tax:
- Ask agent
- PROPERTY TYPE
Semi-Detached
- BEDROOMS
3
- BATHROOMS
1
- SIZE
Ask agent
Key features
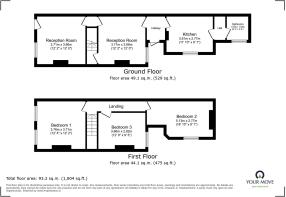
- Well-presented three-bedroom semi-detached
- Two versatile reception rooms
- Fitted practical family kitchen
- Bathroom with defined living layout
- Popular Willenhall residential location
- Close to local shops and supermarkets
- Near schools for all age groups
- Good bus links to Wolverhampton, Walsall
- Easy access to A454, A463, M6
- Near Willenhall Memorial Park green space
Description
To let: a well-presented three-bedroom semi-detached house in the popular Willenhall area, offering practical space for everyday living.
Inside, the property provides two reception rooms, giving flexibility for a living room and separate dining or family space, plus a fitted kitchen and a bathroom. The layout suits both couples and families looking for defined living areas. The EPC rating is D and the property falls within Council Tax Band A.
Willenhall offers a good range of local amenities, including supermarkets, independent shops and everyday services in and around the town centre. There are several nearby schools serving different age groups, making this location convenient for households with children.
Public transport links are close by, with regular bus services connecting Willenhall to Wolverhampton and Walsall. Wolverhampton city centre can typically be reached in around 15–20 minutes by bus, providing further shopping, leisure and rail connections to Birmingham, London and beyond. Road links are also strong, with easy access to the A454 and A463, linking to the M6 for wider regional travel.
Local green spaces such as Willenhall Memorial Park offer opportunities for walking, play areas and community events, while cafés, takeaways and pubs in the town provide a choice of places to eat and meet friends.
Overall, this three-bedroom semi-detached house to let in Willenhall combines practical accommodation with convenient access to transport, schools and local amenities.
IMPORTANT NOTE TO POTENTIAL PURCHASERS & TENANTS:
We endeavour to make our particulars accurate and reliable, however, they do not constitute or form part of an offer or any contract and none is to be relied upon as statements of representation or fact. The services, systems and appliances listed in this specification have not been tested by us and no guarantee as to their operating ability or efficiency is given. All photographs and measurements have been taken as a guide only and are not precise. Floor plans where included are not to scale and accuracy is not guaranteed. If you require clarification or further information on any points, please contact us, especially if you are traveling some distance to view. POTENTIAL PURCHASERS: Fixtures and fittings other than those mentioned are to be agreed with the seller. POTENTIAL TENANTS: All properties are available for a minimum length of time, with the exception of short term accommodation. Please contact the branch for details. A security deposit of at least one month’s rent is required. Rent is to be paid one month in advance. It is the tenant’s responsibility to insure any personal possessions. Payment of all utilities including water rates or metered supply and Council Tax is the responsibility of the tenant in most cases.
WED250330/2
Brochures
Web Details- COUNCIL TAXA payment made to your local authority in order to pay for local services like schools, libraries, and refuse collection. The amount you pay depends on the value of the property.Read more about council Tax in our glossary page.
- Band: A
- PARKINGDetails of how and where vehicles can be parked, and any associated costs.Read more about parking in our glossary page.
- Ask agent
- GARDENA property has access to an outdoor space, which could be private or shared.
- Ask agent
- ACCESSIBILITYHow a property has been adapted to meet the needs of vulnerable or disabled individuals.Read more about accessibility in our glossary page.
- Ask agent
Regent Street, Willenhall, West Midlands, WV13
Add an important place to see how long it'd take to get there from our property listings.
__mins driving to your place
Notes
Staying secure when looking for property
Ensure you're up to date with our latest advice on how to avoid fraud or scams when looking for property online.
Visit our security centre to find out moreDisclaimer - Property reference WED250330_L. The information displayed about this property comprises a property advertisement. Rightmove.co.uk makes no warranty as to the accuracy or completeness of the advertisement or any linked or associated information, and Rightmove has no control over the content. This property advertisement does not constitute property particulars. The information is provided and maintained by Your Move, Wednesfield. Please contact the selling agent or developer directly to obtain any information which may be available under the terms of The Energy Performance of Buildings (Certificates and Inspections) (England and Wales) Regulations 2007 or the Home Report if in relation to a residential property in Scotland.
*This is the average speed from the provider with the fastest broadband package available at this postcode. The average speed displayed is based on the download speeds of at least 50% of customers at peak time (8pm to 10pm). Fibre/cable services at the postcode are subject to availability and may differ between properties within a postcode. Speeds can be affected by a range of technical and environmental factors. The speed at the property may be lower than that listed above. You can check the estimated speed and confirm availability to a property prior to purchasing on the broadband provider's website. Providers may increase charges. The information is provided and maintained by Decision Technologies Limited. **This is indicative only and based on a 2-person household with multiple devices and simultaneous usage. Broadband performance is affected by multiple factors including number of occupants and devices, simultaneous usage, router range etc. For more information speak to your broadband provider.
Map data ©OpenStreetMap contributors.




