Oxford Road, Kidlington, OX5

Letting details
- Let available date:
- Now
- Deposit:
- £1,933A deposit provides security for a landlord against damage, or unpaid rent by a tenant.Read more about deposit in our glossary page.
- Min. Tenancy:
- Ask agent How long the landlord offers to let the property for.Read more about tenancy length in our glossary page.
- Let type:
- Long term
- Furnish type:
- Furnished
- Council Tax:
- Ask agent
- PROPERTY TYPE
Maisonette
- BEDROOMS
3
- BATHROOMS
1
- SIZE
Ask agent
Key features
- No Agent Fees
- Property Reference Number: 2774689
Description
Spacious 3 bedroom family maisonette available to rent on Oxford Road, Kidlington.
The property is ideally suited to a single family household and is not suitable for sharers, company lets or HMO use.
This well-presented part furnished home offers generous living space throughout and is located in a popular residential area with excellent access to Oxford, local schools, transport links and amenities.
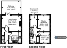
The property comprises of a bright and spacious living room, separate fitted kitchen, three good sized bedrooms and a family bathroom. The property also benefits from gas central heating, double glazing, private balcony / outside space and parking (if applicable).
Kidlington is a highly sought after location for families due to its strong local schooling, easy access into Oxford City Centre and excellent transport connections including Oxford Parkway train station and the A34 / A44 road links. Local shops, supermarkets and bus routes are all within easy reach.
Key Property Information
• Rent: £1,675 per calendar month
• Deposit: 5 weeks rent
• Furnishing: Part Furnished
• Council Tax Band: C
• EPC Rating: D
• Minimum Tenancy: 12 months preferred
• Bills: Not included
Tenant Suitability
This property is available to families only and must be let to a single household.
Not suitable for:
Sharers
• HMO use
• Company lets
Availability
Available now
Viewings available in person or via video viewing on request.
Summary & Exclusions:
- Rent Amount: £1,675.00 per month (£386.54 per week)
- Deposit / Bond: £1,932.69
- 3 Bedrooms
- 1 Bathrooms
- Property comes furnished
- Available to move in from 15 February 2026
- Minimum tenancy term is 12 months
- Maximum number of tenants is 4
- No Students
- No Pets, sorry
- No Smokers
- Family Friendly
- Bills not included
- Property has parking
- Property has garden access
- EPC Rating: D
If calling, please quote reference: 2774689
Fees:
You will not be charged any admin fees.
** Contact today to book a viewing and have the landlord show you round! **
Request Details form responded to 24/7, with phone bookings available 9am-9pm, 7 days a week.
- COUNCIL TAXA payment made to your local authority in order to pay for local services like schools, libraries, and refuse collection. The amount you pay depends on the value of the property.Read more about council Tax in our glossary page.
- Ask agent
- PARKINGDetails of how and where vehicles can be parked, and any associated costs.Read more about parking in our glossary page.
- Private
- GARDENA property has access to an outdoor space, which could be private or shared.
- Private garden
- ACCESSIBILITYHow a property has been adapted to meet the needs of vulnerable or disabled individuals.Read more about accessibility in our glossary page.
- Ask agent
Energy performance certificate - ask agent
Oxford Road, Kidlington, OX5
Add an important place to see how long it'd take to get there from our property listings.
__mins driving to your place
Notes
Staying secure when looking for property
Ensure you're up to date with our latest advice on how to avoid fraud or scams when looking for property online.
Visit our security centre to find out moreDisclaimer - Property reference 277468929012026. The information displayed about this property comprises a property advertisement. Rightmove.co.uk makes no warranty as to the accuracy or completeness of the advertisement or any linked or associated information, and Rightmove has no control over the content. This property advertisement does not constitute property particulars. The information is provided and maintained by OpenRent, London. Please contact the selling agent or developer directly to obtain any information which may be available under the terms of The Energy Performance of Buildings (Certificates and Inspections) (England and Wales) Regulations 2007 or the Home Report if in relation to a residential property in Scotland.
*This is the average speed from the provider with the fastest broadband package available at this postcode. The average speed displayed is based on the download speeds of at least 50% of customers at peak time (8pm to 10pm). Fibre/cable services at the postcode are subject to availability and may differ between properties within a postcode. Speeds can be affected by a range of technical and environmental factors. The speed at the property may be lower than that listed above. You can check the estimated speed and confirm availability to a property prior to purchasing on the broadband provider's website. Providers may increase charges. The information is provided and maintained by Decision Technologies Limited. **This is indicative only and based on a 2-person household with multiple devices and simultaneous usage. Broadband performance is affected by multiple factors including number of occupants and devices, simultaneous usage, router range etc. For more information speak to your broadband provider.
Map data ©OpenStreetMap contributors.




