
Downside Gardens, Potton, Sandy

- PROPERTY TYPE
Semi-Detached
- BEDROOMS
3
- BATHROOMS
1
- SIZE
Ask agent
- TENUREDescribes how you own a property. There are different types of tenure - freehold, leasehold, and commonhold.Read more about tenure in our glossary page.
Freehold
Key features
- Three bedrooms with fitted wardrobes
- Two reception rooms
- Downstairs cloakroom
- Conservatory
- Re-fitted kitchen
- Gas central heating
- Double glazing
- Rear garden
- Off road parking
- Gated access to the front
Description
Potton is a lovely quaint market town with all day to day amenities within. The mainline rail network is just a 3 miles at Sandy or Biggleswade along with the A1(M)
Beautiful countryside walks are a moments walk away as is the RSPB located toward Sandy.
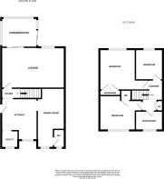
PARTICULARS Half glazed door with lead light to:
KITCHEN 10' 5" x 12' 2" (3.18m x 3.71m) Range of fitted base and wall mounted units with work top surfaces, stainless steel sink and drainer with splash guard surround. Bosch oven, grill, hob and extractor over. Two double glazed windows to the front. Plumbing for washing machine. recessed lighting. Cupboard housing the gas boiler. Radiator. Tiled flooring. Archway through to:
DINING ROOM 17' 9" x 8' 2" (5.41m x 2.49m) (A garage conversion). Storage cupboards and shelving. Radiator. Double glazed window to the front. Understairs storage cupboard. Door to:
CLOAKROOM Wash hand basin, W.C. Double glazed obscure window to the front.
INNER HALLWAY Stairs rising to the first floor. Door to:
LOUNGE 18' 9" x 11' 8" (5.72m x 3.56m) Electric coal effect fireplace with marble and timber surround. Radiator. Double glazed window to the rear. Double glazed patio doors through to:
CONSERVATORY 9' 7" x 7' 7" (2.92m x 2.31m) UPVC and double glazed with double glazed patio doors to the rear garden.
LANDING Access to the loft space. Storage cupboard. Radiator.
BEDROOM ONE 12' 4" x 11' 6" (3.76m x 3.51m) Fitted wardrobes. Radiator. Double glazed window to the rear.
BEDROOM TWO 11' x 10' 3" (3.35m x 3.12m) Fitted wardrobes. Radiator. Over stairs storage cupboard. Double glazed window to the front.
BEDROOM THREE 8' 9" x 7' 1" (2.67m x 2.16m) Double glazed window to the rear. Radiator. Built in storage cupboard.
BATHROOM A four piece fully tiled suite comprising: bath with hand held shower. Walk in shower unit. pedestal wash hand basin, W.C. Heated towel rail. Obscure double glazed windows to the front.
EXTERNALLY From the conservatory there is a good size patio providing seating and dining area. Steps leading down to the lawned garden with trees, shrubbery and a good size timber shed.
Gated access to the front of the property.
To the front of the property is off road parking for two vehicles and shrubbery.
AGENTS NOTE Please note:- Downside Gardens is having work carried out at the moment by Anglian Water. This is expected to finish February 2026.
Brochures
(S5) Brochure - L...- COUNCIL TAXA payment made to your local authority in order to pay for local services like schools, libraries, and refuse collection. The amount you pay depends on the value of the property.Read more about council Tax in our glossary page.
- Band: C
- PARKINGDetails of how and where vehicles can be parked, and any associated costs.Read more about parking in our glossary page.
- Yes
- GARDENA property has access to an outdoor space, which could be private or shared.
- Yes
- ACCESSIBILITYHow a property has been adapted to meet the needs of vulnerable or disabled individuals.Read more about accessibility in our glossary page.
- Ask agent
Downside Gardens, Potton, Sandy
Add an important place to see how long it'd take to get there from our property listings.
__mins driving to your place
Get an instant, personalised result:
- Show sellers you’re serious
- Secure viewings faster with agents
- No impact on your credit score



Your mortgage
Notes
Staying secure when looking for property
Ensure you're up to date with our latest advice on how to avoid fraud or scams when looking for property online.
Visit our security centre to find out moreDisclaimer - Property reference 103515003753. The information displayed about this property comprises a property advertisement. Rightmove.co.uk makes no warranty as to the accuracy or completeness of the advertisement or any linked or associated information, and Rightmove has no control over the content. This property advertisement does not constitute property particulars. The information is provided and maintained by Kennedy & Co Sales and Lettings, Potton. Please contact the selling agent or developer directly to obtain any information which may be available under the terms of The Energy Performance of Buildings (Certificates and Inspections) (England and Wales) Regulations 2007 or the Home Report if in relation to a residential property in Scotland.
*This is the average speed from the provider with the fastest broadband package available at this postcode. The average speed displayed is based on the download speeds of at least 50% of customers at peak time (8pm to 10pm). Fibre/cable services at the postcode are subject to availability and may differ between properties within a postcode. Speeds can be affected by a range of technical and environmental factors. The speed at the property may be lower than that listed above. You can check the estimated speed and confirm availability to a property prior to purchasing on the broadband provider's website. Providers may increase charges. The information is provided and maintained by Decision Technologies Limited. **This is indicative only and based on a 2-person household with multiple devices and simultaneous usage. Broadband performance is affected by multiple factors including number of occupants and devices, simultaneous usage, router range etc. For more information speak to your broadband provider.
Map data ©OpenStreetMap contributors.





