
Cedarcroft Road, Beacon Park, Plymouth

- PROPERTY TYPE
Semi-Detached
- BEDROOMS
3
- BATHROOMS
2
- SIZE
Ask agent
- TENUREDescribes how you own a property. There are different types of tenure - freehold, leasehold, and commonhold.Read more about tenure in our glossary page.
Freehold
Key features
- No Onward Chain
- Close To Good Schools & Parkland
- Extended Semi-Detached House
- Beautifully Presented
- Bay Fronted Lounge
- Well Appointed Modern Kitchen
- 3 Bedrooms
- 4 Piece Bathroom
- Low Maintenance Garden
- Early Viewing Recommended
Description
Lang Town and Country are pleased to offer to the market with no onward chain, this 3 bedroom semi-detached home situated in Beacon Park, within walking distance to the highly regarded Montpelier Primary School, Plymouth Life Centre and Central Park.
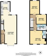
Step inside this beautifully arranged three-bedroom family home, ready for its next owners to move straight in. The property welcomes you through a handy porch that leads into a bright hallway, opening into a generous lounge at the front of the home. With its large bay-style window and well-proportioned layout, this room provides an inviting space for relaxing or entertaining.
Moving through the ground floor, the home flows into a spacious dining room, perfectly positioned at the heart of the property. Its size and shape lend themselves effortlessly to family meals or dinner gatherings, with direct access through to the kitchen. The kitchen stretches the depth of the property, offering ample worktop space and plenty of storage.
Upstairs, the landing connects three comfortable bedrooms and the family bathroom. The master bedroom sits at the front and enjoys generous proportions with an ensuite shower room, while the second bedroom at the rear also offers excellent space and natural light. A well-designed third bedroom provides additional flexibility, ideal as a child’s room, guest room, or dedicated home office. The family bathroom, complete with a bath, separate shower cubicle, wash hand basin and WC complete this level.
Outside, there is a private low maintenance, enclosed rear garden which is laid with decking, patio and artificial grass.
Throughout, the home feels well-balanced and thoughtfully arranged, with every room benefiting from practical proportions. With its chain-free status, this property allows for a smooth and straightforward purchase, perfect for first-time buyers, families, or anyone seeking a hassle-free move.
Brochures
Brochure 1Brochure 2- COUNCIL TAXA payment made to your local authority in order to pay for local services like schools, libraries, and refuse collection. The amount you pay depends on the value of the property.Read more about council Tax in our glossary page.
- Band: B
- PARKINGDetails of how and where vehicles can be parked, and any associated costs.Read more about parking in our glossary page.
- On street
- GARDENA property has access to an outdoor space, which could be private or shared.
- Private garden
- ACCESSIBILITYHow a property has been adapted to meet the needs of vulnerable or disabled individuals.Read more about accessibility in our glossary page.
- Ask agent
Cedarcroft Road, Beacon Park, Plymouth
Add an important place to see how long it'd take to get there from our property listings.
__mins driving to your place
Get an instant, personalised result:
- Show sellers you’re serious
- Secure viewings faster with agents
- No impact on your credit score
Your mortgage
Notes
Staying secure when looking for property
Ensure you're up to date with our latest advice on how to avoid fraud or scams when looking for property online.
Visit our security centre to find out moreDisclaimer - Property reference S1581089. The information displayed about this property comprises a property advertisement. Rightmove.co.uk makes no warranty as to the accuracy or completeness of the advertisement or any linked or associated information, and Rightmove has no control over the content. This property advertisement does not constitute property particulars. The information is provided and maintained by Lang Town & Country, Plymouth. Please contact the selling agent or developer directly to obtain any information which may be available under the terms of The Energy Performance of Buildings (Certificates and Inspections) (England and Wales) Regulations 2007 or the Home Report if in relation to a residential property in Scotland.
*This is the average speed from the provider with the fastest broadband package available at this postcode. The average speed displayed is based on the download speeds of at least 50% of customers at peak time (8pm to 10pm). Fibre/cable services at the postcode are subject to availability and may differ between properties within a postcode. Speeds can be affected by a range of technical and environmental factors. The speed at the property may be lower than that listed above. You can check the estimated speed and confirm availability to a property prior to purchasing on the broadband provider's website. Providers may increase charges. The information is provided and maintained by Decision Technologies Limited. **This is indicative only and based on a 2-person household with multiple devices and simultaneous usage. Broadband performance is affected by multiple factors including number of occupants and devices, simultaneous usage, router range etc. For more information speak to your broadband provider.
Map data ©OpenStreetMap contributors.








