
2 bedroom terraced house for sale
Lower Buckland Road, Lymington, Hampshire, SO41

- PROPERTY TYPE
Terraced
- BEDROOMS
2
- BATHROOMS
2
- SIZE
Ask agent
- TENUREDescribes how you own a property. There are different types of tenure - freehold, leasehold, and commonhold.Read more about tenure in our glossary page.
Freehold
Description
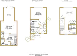
The front door opens to the entrance hall with stairs to the first floor and lower ground floor.
The first floor master bedroom suite has a mirrored wardrobe and further dressing area, with a pleasant aspect overlooking rooftops towards Walhampton and door to the en suite shower room which comprises a shower cubicle, WC and wash basin.
Ground floor bedroom two has a dressing area and door to the en suite with shower cubicle, WC and wash basin.
On the lower ground floor is the open-plan kitchen/living/dining room. The kitchen area is fitted with a range of cabinets with a breakfast bar, a four ring gas hob with extractor over and oven below, appliances include dishwasher, fridge freezer, washing machine and a cupboard housing the gas fired boiler.
The living area has a timber display unit with space for television and shelving. The dining area has a glazed roof and French double doors to outside.
Outside:
To the front of the property there is off-road parking.
The garden comprises an area of decking adjacent to the property with lawn beyond, mature shrubs and fencing to the boundaries.
Lymington offers an extensive range of shops from large household names such as M&S Simply Food and WH Smiths to independent boutiques, coffee shops, restaurants, pubs and tea rooms. There are also a variety of hair salons and beauticians to choose from. Saturdays provide a vibrant atmosphere throughout the town as the market attracts many locals and visitors from throughout the forest and beyond. Lymington is the ideal location for those who enjoy water sports with two marinas and sailing clubs holding access to the Solent and a short drive away from beaches.
- COUNCIL TAXA payment made to your local authority in order to pay for local services like schools, libraries, and refuse collection. The amount you pay depends on the value of the property.Read more about council Tax in our glossary page.
- Band: C
- PARKINGDetails of how and where vehicles can be parked, and any associated costs.Read more about parking in our glossary page.
- Yes
- GARDENA property has access to an outdoor space, which could be private or shared.
- Yes
- ACCESSIBILITYHow a property has been adapted to meet the needs of vulnerable or disabled individuals.Read more about accessibility in our glossary page.
- Ask agent
Energy performance certificate - ask agent
Lower Buckland Road, Lymington, Hampshire, SO41
Add an important place to see how long it'd take to get there from our property listings.
__mins driving to your place
Get an instant, personalised result:
- Show sellers you’re serious
- Secure viewings faster with agents
- No impact on your credit score



Your mortgage
Notes
Staying secure when looking for property
Ensure you're up to date with our latest advice on how to avoid fraud or scams when looking for property online.
Visit our security centre to find out moreDisclaimer - Property reference BEA260018. The information displayed about this property comprises a property advertisement. Rightmove.co.uk makes no warranty as to the accuracy or completeness of the advertisement or any linked or associated information, and Rightmove has no control over the content. This property advertisement does not constitute property particulars. The information is provided and maintained by Burkmars Estate Agents, Lymington. Please contact the selling agent or developer directly to obtain any information which may be available under the terms of The Energy Performance of Buildings (Certificates and Inspections) (England and Wales) Regulations 2007 or the Home Report if in relation to a residential property in Scotland.
*This is the average speed from the provider with the fastest broadband package available at this postcode. The average speed displayed is based on the download speeds of at least 50% of customers at peak time (8pm to 10pm). Fibre/cable services at the postcode are subject to availability and may differ between properties within a postcode. Speeds can be affected by a range of technical and environmental factors. The speed at the property may be lower than that listed above. You can check the estimated speed and confirm availability to a property prior to purchasing on the broadband provider's website. Providers may increase charges. The information is provided and maintained by Decision Technologies Limited. **This is indicative only and based on a 2-person household with multiple devices and simultaneous usage. Broadband performance is affected by multiple factors including number of occupants and devices, simultaneous usage, router range etc. For more information speak to your broadband provider.
Map data ©OpenStreetMap contributors.





