
Whiteside Way, Cleveleys, FY5

- PROPERTY TYPE
Semi-Detached
- BEDROOMS
3
- BATHROOMS
1
- SIZE
Ask agent
- TENUREDescribes how you own a property. There are different types of tenure - freehold, leasehold, and commonhold.Read more about tenure in our glossary page.
Freehold
Description
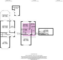
HALLWAY
Characteristic wooden glazed door to front aspect, radiator, stairs to first floor, meter cupboard, original feature window, under stairs storage cupboard.
KITCHEN
16`0 x 6`8 (4.87m x 2.03m)
UPVC double glazed window to side aspect, UPVC double glazed door to the rear aspect, complimentary work tops, fitted wall and base units, integrated oven and hob with extractor fan over, stainless steel sink and drainer with mixer tap, integrated dish washer, plumber for washer and dryer, space for fridge freezer, boiler. Cupboard housing Worcester combi boiler.
LOUNGE
14`9 x 10`10 (4.50m x 3.29m)
UPVC triple glazed bay window to front aspect, open coal effect fire, feature radiator.
SECOND RECEPTION ROOM
16`11 x 10`10 (5.16m x 3.30m)
Double doors into conservatory, radiator, open coal effect fire.
CONSERVATORY
11`3 x 8`8 (3.43m x 2.65m)
UPVC double glazed door to side aspect, UPVC double glazed windows to side and rear aspect, radiator, power.
LANDING
Access to loft room.
BEDROOM ONE
12`0 x 10`10 (3.66m x 3.30m)
UPVC triple glazed window to the front aspect, radiator.
BEDROOM TWO
12`2 x 10`2 (3.72m x 3.11m)
UPVC double glazed window to the rear aspect, radiator.
BEDROOM THREE
9`0 x 7`2 (2.75m x 2.18m)
UPVC double glazed window to the rear aspect, radiator.
BATHROOM
6`11 x 4`3 (2.12m x 1.29m)
Triple glazed opaque window to the front aspect, panelled bath with shower over, low flush w.c, pedestal wash hand basin, extractor fan.
LOFT ROOM
17’11 x 8’11 (5.47m x 2.72m)
Velux window, access to eve storage.
EXTERNAL
FRONT
Block paved driveway, ample amount of off road parking, mature shrubs to border.
REAR
Private enclosed south facing rear garden mainly laid to lawn, patio area, access into home office/outbuilding.
OUTBUILDING/HOME OFFICE
Used as home studio with light and power, has potential for many other uses.
TENURE
We have been informed that the property is Freehold; prospective purchasers should seek clarification of this from their solicitors.
VIEWINGS
Viewings are strictly by appointment through the agents’ office.
All measurements are approximate and for illustrative purposes only. Digital images are reproduced for general information only and must not be inferred that any item shown is included for sale with the property. We have been unable to confirm if services / items in the property are in full working order. The property is offered for sale on this basis. Prospective purchasers are advised to seek expert advice where appropriate.
- COUNCIL TAXA payment made to your local authority in order to pay for local services like schools, libraries, and refuse collection. The amount you pay depends on the value of the property.Read more about council Tax in our glossary page.
- Ask agent
- PARKINGDetails of how and where vehicles can be parked, and any associated costs.Read more about parking in our glossary page.
- Yes
- GARDENA property has access to an outdoor space, which could be private or shared.
- Yes
- ACCESSIBILITYHow a property has been adapted to meet the needs of vulnerable or disabled individuals.Read more about accessibility in our glossary page.
- Ask agent
Whiteside Way, Cleveleys, FY5
Add an important place to see how long it'd take to get there from our property listings.
__mins driving to your place
Get an instant, personalised result:
- Show sellers you’re serious
- Secure viewings faster with agents
- No impact on your credit score
Your mortgage
Notes
Staying secure when looking for property
Ensure you're up to date with our latest advice on how to avoid fraud or scams when looking for property online.
Visit our security centre to find out moreDisclaimer - Property reference 10901. The information displayed about this property comprises a property advertisement. Rightmove.co.uk makes no warranty as to the accuracy or completeness of the advertisement or any linked or associated information, and Rightmove has no control over the content. This property advertisement does not constitute property particulars. The information is provided and maintained by The Square Room, Fylde Coast. Please contact the selling agent or developer directly to obtain any information which may be available under the terms of The Energy Performance of Buildings (Certificates and Inspections) (England and Wales) Regulations 2007 or the Home Report if in relation to a residential property in Scotland.
*This is the average speed from the provider with the fastest broadband package available at this postcode. The average speed displayed is based on the download speeds of at least 50% of customers at peak time (8pm to 10pm). Fibre/cable services at the postcode are subject to availability and may differ between properties within a postcode. Speeds can be affected by a range of technical and environmental factors. The speed at the property may be lower than that listed above. You can check the estimated speed and confirm availability to a property prior to purchasing on the broadband provider's website. Providers may increase charges. The information is provided and maintained by Decision Technologies Limited. **This is indicative only and based on a 2-person household with multiple devices and simultaneous usage. Broadband performance is affected by multiple factors including number of occupants and devices, simultaneous usage, router range etc. For more information speak to your broadband provider.
Map data ©OpenStreetMap contributors.





