Cheney Way, Cambridge, Cambridgeshire, CB4

Letting details
- Let available date:
- 01/03/2026
- Deposit:
- Ask agentA deposit provides security for a landlord against damage, or unpaid rent by a tenant.Read more about deposit in our glossary page.
- Min. Tenancy:
- Ask agent How long the landlord offers to let the property for.Read more about tenancy length in our glossary page.
- Let type:
- Long term
- Furnish type:
- Furnished
- Council Tax:
- Ask agent
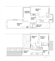
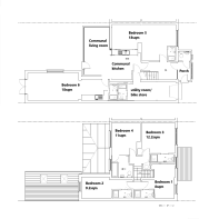
- PROPERTY TYPE
Studio
- SIZE
194 sq ft
18 sq m
Key features
- Recently refurbished to a high standard
- Communal garden for tenants
- Close to River Cam and open meadow land
- Close to local shops
- Large internal bike storage
- 2 minute cycle to Cambridge North Station
- 7 minute cycle to Science Park
Description
This is a large modern house that has recently been refurbished to a high standard throughout.
This studio is located on the ground floor of the property, offering bright and spacious L-shaped living space.
The studio is furnished with a double bed, wardrobe, bedside unit, desk and chair.
The internal en-suite has heated towel rail, WC, basin and shower.
The kitchen is fitted with a good selection of kitchen units, washer/dryer, sink, oven, hob, fridge/freezer, extractor, dining table and chair.
There is a communal rear garden for tenants use, internal bike storage and a driveway for two to three cars.
The house is located a short distance from Cambridge North Train Station and Cambridge Science Park.
Close to local amenities, shops, river cam and meadows.
Rent is inclusive of all bills and Wi-Fi.
- COUNCIL TAXA payment made to your local authority in order to pay for local services like schools, libraries, and refuse collection. The amount you pay depends on the value of the property.Read more about council Tax in our glossary page.
- Ask agent
- PARKINGDetails of how and where vehicles can be parked, and any associated costs.Read more about parking in our glossary page.
- Yes
- GARDENA property has access to an outdoor space, which could be private or shared.
- Ask agent
- ACCESSIBILITYHow a property has been adapted to meet the needs of vulnerable or disabled individuals.Read more about accessibility in our glossary page.
- Ask agent
Energy performance certificate - ask agent
Cheney Way, Cambridge, Cambridgeshire, CB4
Add an important place to see how long it'd take to get there from our property listings.
__mins driving to your place

Notes
Staying secure when looking for property
Ensure you're up to date with our latest advice on how to avoid fraud or scams when looking for property online.
Visit our security centre to find out moreDisclaimer - Property reference 15CheneyWayRm5. The information displayed about this property comprises a property advertisement. Rightmove.co.uk makes no warranty as to the accuracy or completeness of the advertisement or any linked or associated information, and Rightmove has no control over the content. This property advertisement does not constitute property particulars. The information is provided and maintained by Xixi Lets, Cambridge. Please contact the selling agent or developer directly to obtain any information which may be available under the terms of The Energy Performance of Buildings (Certificates and Inspections) (England and Wales) Regulations 2007 or the Home Report if in relation to a residential property in Scotland.
*This is the average speed from the provider with the fastest broadband package available at this postcode. The average speed displayed is based on the download speeds of at least 50% of customers at peak time (8pm to 10pm). Fibre/cable services at the postcode are subject to availability and may differ between properties within a postcode. Speeds can be affected by a range of technical and environmental factors. The speed at the property may be lower than that listed above. You can check the estimated speed and confirm availability to a property prior to purchasing on the broadband provider's website. Providers may increase charges. The information is provided and maintained by Decision Technologies Limited. **This is indicative only and based on a 2-person household with multiple devices and simultaneous usage. Broadband performance is affected by multiple factors including number of occupants and devices, simultaneous usage, router range etc. For more information speak to your broadband provider.
Map data ©OpenStreetMap contributors.




